Россия, Москва, ул. Василия Ланового, 7с1
500 000 Р 6 440 $ или 5 480

Информация об помещении

1
Этаж

Состояние и оснащение

Количество этажей
32
Развернуть
Агент
+7 (985) 823-24-07
Начать чат с агентом

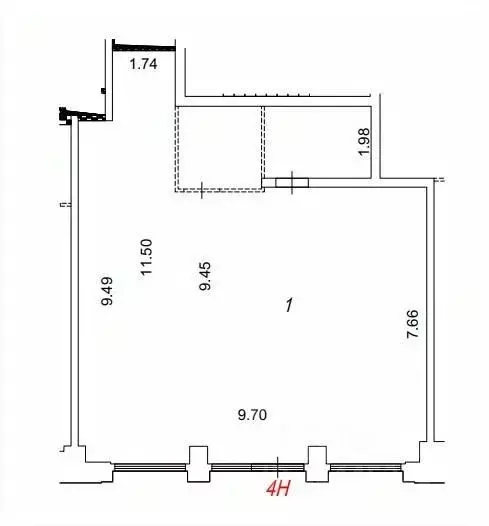
Помещение свободного назначения в Москва ул. Василия Ланового, 7с1 (94 ...

Помещение свободного назначения, расположенное на 1 этаже дома в составе ЖК премиум класса СОБЫТИЕ-5 с видом на дорогу и Событийную площадь.Площадь 93,8 кв.м. Панорамное остекление. Отдельный вход. Возможность получения мед. лицензии ( отсутствует паркинг под помещением). Электрическая мощность 16,8 кВт. Высота потолка 5,4 кв.м. Без отделки. На время ремонта предоставляются арендные каникулы. Инженерные коммуникации: приточно-вытяжная общеобменная вентиляция и кондиционирование, смонтированы пожарная сигнализация, дымоудаление. В шаговой доступности от станции метро Аминьевская и Мичуринский проспект. Рядом с помещением будет располагаться Событийная площадь - место притяжения жителей района.Коммерческие условия:Арендная плата : в месяц, коммунальные и эксплуатационные услуги оплачиваются дополнительно. Предоставляются арендные каникулы. Возможность размещения вывески на фасаде, круглосуточный доступ.

Читать полностью
    Позвонить Написать
    500 000 Р6 440 $ или 5 480
    Агент
    +7 (985) 823-24-07
    Начать чат с агентом
    Похожие предложения
    Помещение свободного назначения в Москва Долгоруковская ул., 27С1 (130 ... - Фото 1
    Помещение свободного назначения в Москва Долгоруковская ул., 27С1 (130 ... - Фото 2
    ==ЛОТ 223381 == ОТ СОБСТВЕННИКА, БЕЗ КОМИССИИ. Помещение свободного назначения. Этаж: 1.Общая площадь: 130.7. (94, 1 кв м + 36, 6 кв м теpраса на 1-м этажe) . Возмещение коммунальных услуг отдельно по показаниям пу. В непосредственной близости расположены...
    • 1/5 эт.
    507 100 Р
    Агент
    +7 (923) Показать номер
    Посмотреть контакты
    Помещение свободного назначения в Москва Садовническая ул., 80 (86 м) - Фото 1
    Помещение свободного назначения в Москва Садовническая ул., 80 (86 м) - Фото 2
    Показ в удобное время. С АГЕНТАМИ РАБОТАЕМ И ПЛАТИМ. Здание расположено в районе Замоскворечье ЦАО Москвы. Рядом проходят Садовое кольцо, Садовническая и Космодамианская набережные. В шаговой доступности находятся станции метро Павелецкая и Таганская.Налоговая:...
    • 1/7 эт.
    500 000 Р
    Агент
    +7 (933) Показать номер
    Посмотреть контакты
    Помещение свободного назначения в Москва Садовническая ул., 80 (86 м) - Фото 1
    Помещение свободного назначения в Москва Садовническая ул., 80 (86 м) - Фото 2
    АРЕНДА ОТ СОБСТВЕННИКАМосква, ул Садовническая, 80Звоните и пишите прямо сейчас — не упустите возможность арендовать коммерческое помещение в отличном месте Сотрудничаем с агентами.- Удобная транспортная доступность — всего несколько минут от метро.-...
    • 1/6 эт.
    500 004 Р
    Агент
    +7 (916) Показать номер
    Посмотреть контакты
    Помещение свободного назначения в Москва Хлебозаводский проезд, 7С5 ... - Фото 1
    Помещение свободного назначения в Москва Хлебозаводский проезд, 7С5 ... - Фото 2
    ЛотПредложение от Собственника Сдается целиком этаж под офис площадью 252 кв.м. в БЦ класса Б+, с хорошей мебелью (если не нужна уберут), поделен на ресепшен, 6 кабинетов, кухню, серверную, архив и 2 с.у., выполнен качественный евроремонт, установлено...
    • 5/5 эт.
    499 989 Р
    Агент
    +7 (986) Показать номер
    Посмотреть контакты
    Помещение свободного назначения в Москва Дорожная ул., 46к3 (124 м) - Фото 1
    Помещение свободного назначения в Москва Дорожная ул., 46к3 (124 м) - Фото 2
    ==ЛОТ 223779 == ОТ СОБСТВЕННИКА, БЕЗ КОМИССИИ. Предлагаем в аренду помещение с новым ремонтом по адресу: Дорожная улица, 46к3 в Москве. Развитая инфраструктура.Помещение находится у главного въезда в жк, напротив детский сад и большая парковка для всех...
    • 1/33 эт.
    500 000 Р
    Агент
    +7 (923) Показать номер
    Посмотреть контакты

    Не нашли подходящего объявления?

    Оставьте заявку, и наши риэлторы подберут псн в районе Москвы

    (0)