300 000 Р 3 850 $ или 3 260

Состояние и оснащение

Количество этажей
4
Развернуть
Агент
+7 (984) 267-86-69
Начать чат с агентом

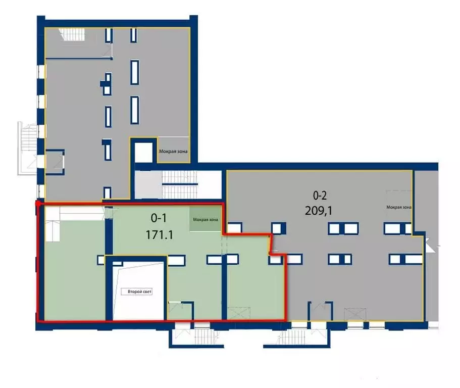
Помещение свободного назначения (171 м)

Лот № 418994. БЕЗ КОМИССИИ Сдается в аренду ПСН площадью 171,1 м2 на -1 этаже в офисном здании класса B Air-Space , расположенном в 2 минутах пешком от метро Аэропорт. Планировка: 4 зала (есть зона с мокрыми точками и вторым светом). Состояние помещения: под чистовую отделку. Несколько залов со скошенным потолком, часть помещения с перепадом высоты и низким потолком — 1,9 м. Установлено центральное кондиционирование и вентиляция. В помещение вход с Ленинградского проспекта и спуском по лестнице в цоколь. Здание бизнес центра 1964 года постройки сейчас полностью реновировано. Инфраструктура здания включает в себя: презентабельное лобби, зону отдыха и букшеринга с мягкими диванами, столиками и кофе-зоной; коворкинг, в который можно прийти поработать с ноутбуком, а также зону хранения и кладовые в цокольном этаже. В комплексе обеспечена охрана и видеонаблюдение 24/7. Условия аренды: в арендную ставку не входит НДС, эксплуатация и коммунальные платежи. Эксплуатация рассчитывается, исходя из ставкиуб / м2 / месяц = 37.уб в месяц. Коммунальные платежи (свет по счетчикам и вода) оплачиваются дополнительно. Залог — 1 месяц.

Читать полностью
    Позвонить Написать
    300 000 Р3 850 $ или 3 260
    Агент
    +7 (984) 267-86-69
    Начать чат с агентом
    Похожие предложения
    Помещение свободного назначения в Москва Ленинградский просп., 47С2 ... - Фото 1
    Помещение свободного назначения в Москва Ленинградский просп., 47С2 ... - Фото 2
    Лот: 418994, бизнес-центр Air-Space. БЕЗ КОМИССИИ Сдается в аренду ПСН площадью 171,1 м2 на -1 этаже в офисном здании класса B Air-Space, расположенном в 2 минутах пешком от метро Аэропорт. Планировка: 4 зала (есть зона с мокрыми точками и вторым светом)....
    • -1/4 эт.
    300 000 Р
    Агент
    +7 (923) Показать номер
    Посмотреть контакты
    Помещение свободного назначения в Москва ул. Коминтерна, 10к1 (190 м) - Фото 1
    Помещение свободного назначения в Москва ул. Коминтерна, 10к1 (190 м) - Фото 2
    Здание представляет собой жилой комплекс бизнес класса. Объект расположен в центре Бабушкинского района. Пешая доступность от станций метро Бабушкинская - составляет 15 минут, от станции Лосиноостровская - 8 минут. В радиусе 500 метров проживает более...
    • 1/16 эт.
    290 000 Р
    Агент
    +7 (933) Показать номер
    Посмотреть контакты
    Помещение свободного назначения в Москва Ломоносовский просп., 15 (130 ... - Фото 1
    Помещение свободного назначения в Москва Ломоносовский просп., 15 (130 ... - Фото 2
    БЕЗ КОМИССИИ Жилой дом. Сдаётся блок с санузлом на первом этаже площадью 130 кв.м с отдельным входом с улицы. Стандартная отделка. Электрическая мощность 30 кВт.УСН. Ломоносовский проспект, 15, 5 минут пешком от метро Университет. ЛОТ 168928
    • 1/9 эт.
    299 986 Р
    Агент
    +7 (992) Показать номер
    Посмотреть контакты
    Помещение свободного назначения в Москва Электрозаводская ул., 37/4с5 ... - Фото 1
    Помещение свободного назначения в Москва Электрозаводская ул., 37/4с5 ... - Фото 2
    БЕЗ КОМИССИИ Особняк класса C. Сдаётся блок (3 комнаты, с/у) на первом этаже площадью 127 кв.м с отдельным входом с улицы. Стандартная отделка. Кондиционер (сплит), вентиляция.УСН. Электрозаводская улица, 37/4с5, 7 минут пешком от метро Преображенская...
    • 1/1 эт.
    299 996 Р
    Агент
    +7 (992) Показать номер
    Посмотреть контакты
    Добрый день Предлагаю в аренду помещение в премиальном ЖК Наследие .Комплексу 8 лет, заселён 100 .Весь пешеходный трафик через наш ЖК, потому что рядом остановки транспорта и метро.Рядом Мосгорсуд, районный Суд и Префектура ЮВАО, что обеспечивает дополнительный...
    • 1/5 эт.
    300 000 Р
    Агент
    +7 (917) Показать номер
    Посмотреть контакты

    Не нашли подходящего объявления?

    Оставьте заявку, и наши риэлторы подберут псн в районе Москвы

    (0)