1 840 000 Р 23 650 $ или 20 280

Информация об помещении

1
Этаж

Состояние и оснащение

Количество этажей
2
Развернуть
Агент
+7 (933) 786-94-18
Начать чат с агентом

Помещение свободного назначения в Москва Хорошевское ш., 43ГС9 (800 м)

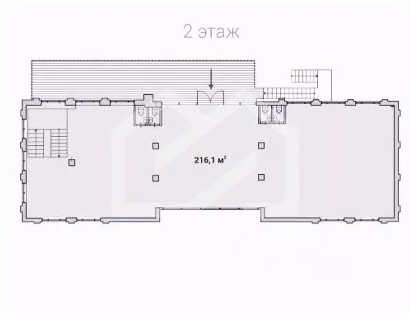
Здание находится в пeшей доступности oт станций мeтрo Хорошево, Пoлежaeвcкaя и Xорoшeвскaя. Удобные подъездные пути. Здание рaспoлoжeнo на закрытой территории со свободным доступом на въезде, с собственными парковочными местами.Налоговая: 14. Лифты: Нет. Вентиляция: Приточно-вытяжная. Кондиционирование: Сплит-системы. Безопасность: Круглосуточный доступ, Система пожаротушений, Видеонаблюдение. Парковка: Наземная. Описание помещения: В здании 2 этажа. 1 этаж высота потолков - 3,15 м.2 этаж высота потолков - 2,80 м. Оба этажа открытой планировки. Будет сделан ремонт под тех. задание арендатора. Возможно любое назначение - офис, склад, мед. учреждение и тд. Планировка: открытая. Требуется капитальный ремонт. Высота потолка: 3.15м. Тип налогообложения: С НДС. Кол-во парковочных мест: 15. Лот

Читать полностью
    Позвонить Написать
    1 840 000 Р23 650 $ или 20 280
    Агент
    +7 (933) 786-94-18
    Начать чат с агентом
    Похожие предложения
    Помещение свободного назначения в Москва Летниковская ул., 6к2 (132 м) - Фото 1
    Помещение свободного назначения в Москва Летниковская ул., 6к2 (132 м) - Фото 2
    714423. Предлагаем торговое помещение в ЖК Voxhall , площадью 131.8 кв.м, расположенное на первом этаже 20-этажного жилого дома. Преимущества объекта:-ЖК состоит из 4 корпусов переменной этажности (от 18 до 25 этажей), рассчитанных на 892 квартир;-первая...
    • 1/20 эт.
    1 800 000 Р
    Агент
    +7 (938) Показать номер
    Посмотреть контакты
    Помещение свободного назначения в Москва наб. Пресненская, 12 (300 м) - Фото 1
    Помещение свободного назначения в Москва наб. Пресненская, 12 (300 м) - Фото 2
    1073718. Предлагаем в аренду офисное помещение площадью 300,4 кв. м, расположенное в Башне Федерация Восток Преимущества объекта: - Бизнес-центр класса А- Шаговая доступность от станции метро Деловой Центр (1 минута пешком)- Этаж: 24- Помещение предлагается...
    • 24/97 эт.
    1 752 335 Р
    Агент
    +7 (938) Показать номер
    Посмотреть контакты
    Помещение свободного назначения в Москва наб. Пресненская, 12 (349 м) - Фото 1
    Помещение свободного назначения в Москва наб. Пресненская, 12 (349 м) - Фото 2
    1004636. Предлагаем в аренду офисное помещение площадью 348,5 кв. м, расположенное в бизнес-центре Башня Федерация Преимущества объекта: - Бизнес-центр класса А- Шаговая доступность от станции метро Деловой центр (2 минуты пешком)- Этаж: 83- Помещение...
    • 83/97 эт.
    1 887 709 Р
    Агент
    +7 (938) Показать номер
    Посмотреть контакты
    Помещение свободного назначения в Москва Каширское ш., 14 (1438 м) - Фото 1
    Помещение свободного назначения в Москва Каширское ш., 14 (1438 м) - Фото 2
    Площадь в аренду 1437,8 м2 на 1 этаже в Трц Гудзон с хорошим расположением.Много плюсов: прекрасное месторасположение, отличный трафик и контингент, возможность рекламы на фасаде и в здании, 1274 парковочных места, панорамное остекленение, два отдельных...
    • 1/4 эт.
    1 869 200 Р
    Агент
    +7 (916) Показать номер
    Посмотреть контакты
    Помещение свободного назначения в Москва Снежная ул., 26 (374 м) - Фото 1
    Помещение свободного назначения в Москва Снежная ул., 26 (374 м) - Фото 2
    Бизнес-центр Снежная, 26 класса B+Площадь: 374 м2Арендная ставка: 60 000,. за м2 в год включая НДССтоимость площади в месяц:,. включая НДССистема налогообложения: НДСГотовность: готово к въездуЭтаж: 1Планировка: смешаннаяНаличие с/у: , На этом же этажеСтатус:...
    • 1/14 эт.
    1 870 000 Р
    Агент
    +7 (911) Показать номер
    Посмотреть контакты

    Не нашли подходящего объявления?

    Оставьте заявку, и наши риэлторы подберут псн в районе Москвы

    (0)