150 000 Р 1 930 $ или 1 630

Информация об помещении

1
Этаж

Состояние и оснащение

Количество этажей
34
Развернуть
Агент
+7 (923) 078-41-50
Начать чат с агентом

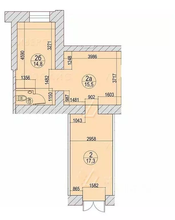
Помещение свободного назначения в Москва Ленинский просп., 111к1 (38 ...

Сдается в аренду помещение в ЖК бизнес класса Веллхаус на Ленинком. Ленинский проспект д 111 к 1. Общей площадью 38 кв.м. 1 этаж свой отдельный вход. Большие панорамные окна.Потолки 3,5 метра.Ранее был фермерский магазин. В помещении есть подсобная комната с санузлом.Рассмотрим арендаторов на долгий срок.

Читать полностью
    Позвонить Написать
    150 000 Р1 930 $ или 1 630
    Агент
    +7 (923) 078-41-50
    Начать чат с агентом
    Похожие предложения
    Помещение свободного назначения (38 м) - Фото 1
    Помещение свободного назначения (38 м) - Фото 2
    АРЕНДА ОТ 11 МЕС. Жилой дом. Сдаётся комната на первом этаже площадью 38 кв.м. Высота потолка 4 м. Новое помещение под чистовую отделку (Shell Core). Электрическая мощность 15 кВт.УСН. Лот № 245162. С риелторами не сотрудничаем
    • 1/23 эт.
    152 000 Р
    Агент
    +7 (985) Показать номер
    Посмотреть контакты
    Помещение свободного назначения в Москва ул. Марии Ульяновой, 3К1 (48 ... - Фото 1
    Помещение свободного назначения в Москва ул. Марии Ульяновой, 3К1 (48 ... - Фото 2
    БЕЗ КОМИССИИ Жилой дом. Сдаётся блок на первом этаже площадью 48 кв.м. Стандартная отделка.УСН. Улица Марии Ульяновой, 3к1, метро Университет. ЛОТ 237104
    • 1/9 эт.
    150 000 Р
    Агент
    +7 (992) Показать номер
    Посмотреть контакты
    Помещение свободного назначения в Москва Малая Почтовая ул., 12 (53 м) - Фото 1
    Помещение свободного назначения в Москва Малая Почтовая ул., 12 (53 м) - Фото 2
    Сдаётся в аренду коммерческое помещение на 1-м этаже 19-этажного жилого дома в ЖК MYPRIORITY Басманный . Основные преимущества: 01. Отдельный вход;02. Место под вывеску;03. Витринное остекление;04. Помещение без ремонта, что позволяет обустроить его...
    • 1/19 эт.
    142 290 Р
    Агент
    +7 (938) Показать номер
    Посмотреть контакты
    Помещение свободного назначения в Москва пос. Коммунарка, ул. ... - Фото 1
    Помещение свободного назначения в Москва пос. Коммунарка, ул. ... - Фото 2
    Аренда от собственника, без комиссии. Залог 1 месяц. Помещение на первом этаже жилого дома, отдельный вход оборудованный пандусом, вход напротив сквера в центре районе, оживленный трафик. Соседние помещения востребованная локация. Площадь правильная,...
    • 1/17 эт.
    150 000 Р
    Агент
    +7 (985) Показать номер
    Посмотреть контакты
    Помещение свободного назначения в Москва Мясницкая ул., 22С1 (81 м) - Фото 1
    Помещение свободного назначения в Москва Мясницкая ул., 22С1 (81 м) - Фото 2
    Арт.. Предлагается в аренду с 15 декабря 2025 года помещение, общей площадью 81,2 кв.м., расположенное на 4-м этаже старинного здания, в престижном районе г. Москвы. В 5-и минутах от 3-х станций метро: Сретенский бульвар, Тургеневская и Чистые Пруды....
    • 4/5 эт.
    147 000 Р
    Агент
    +7 (915) Показать номер
    Посмотреть контакты

    Не нашли подходящего объявления?

    Оставьте заявку, и наши риэлторы подберут псн в районе Москвы

    (0)