4 500 000 Р 57 920 $ или 49 340

Информация об помещении

1
Этаж

Состояние и оснащение

Количество этажей
3
Развернуть
Агент
+7 (923) 072-03-94
Начать чат с агентом

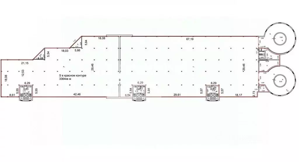
Помещение свободного назначения в Москва Рябиновая ул., 44А (2500 м)

Аренда производственно-складского помещения площадью 2500м в МосквеНагрузка на пол: 0,72 т/кв.мРабочая высота 3,9мОсновное ВРИ: пищевое производство (6.4)ВАЖНО- прямая аренда от собственникаОСНОВНЫЕ ХАРАКТЕРИСТИКИ- Общая площадь - 2500м- Антресоль: 540 кв.м- Температура: Сухой- Шаг колонн: 8 x 8- Возможность высотного хранения- Тип пола: Бетонный пол с антипылевым покрытиемПРЕИМУЩЕСТВА- Возможность высотного хранения- Круглосуточный доступ и охраняемая территория- Парковочные места для грузовых и легковых автомобилей- Современные инженерные системы- Оснащены всеми коммуникациями: отопление, водоснабжение, водоотведение, электроснабжение и интернет- В каждом блоке - собственный офис- Собственная управляющая компания- Планировка позволяет увеличивать площадь, объединяя боксы- В каждом блоке - собственный офисПочему стоит обратиться к нам?- Самая большая и актуальная база складской недвижимости- Подбор оптимального предложения с учетом задач вашей компании- Консультация и сопровождение на всех этапах сделки- Организация просмотров в любое удобное время- Возможность виртуального тураЗвоните и мы оперативно организуем показ и ответим на все интересующие Вас вопросы Номер объекта: 1/538548/20317

Читать полностью
    Позвонить Написать
    4 500 000 Р57 920 $ или 49 340
    Агент
    +7 (923) 072-03-94
    Начать чат с агентом
    Похожие предложения
    Помещение свободного назначения в Ленинградская область, Всеволожский ... - Фото 1
    Помещение свободного назначения в Ленинградская область, Всеволожский ... - Фото 2
    341043 В непосредственной близости от г.Санкт-Петербурга сдaетcя в apeнду новое производствeнноe здание площадью 5180 кв.м. (два этажа). Коммуникации: электричество 300 кВт, при необходимости имеется возможность предоставить 450 кВт:, отопление радиаторное...
    • 1/2 эт.
    4 403 000 Р
    Агент
    +7 (981) Показать номер
    Посмотреть контакты
    Помещение свободного назначения в Московская область, Красногорск бул. ... - Фото 1
    Помещение свободного назначения в Московская область, Красногорск бул. ... - Фото 2
    Арт.сдается в аренду помещение свободного назначения на 7 этаже в крупном ТЦНесколько этажей в тц полностью заполнены арендаторамиАктивный пешеходный трафикВсе коммуникации подведеныСвободная планировка с возможностью индивидуального проектаВозможно разбить...
    • 3/7 эт.
    4 460 000 Р
    Агент
    +7 (916) Показать номер
    Посмотреть контакты
    Помещение свободного назначения в Краснодарский край, Геленджик ... - Фото 1
    Помещение свободного назначения в Краснодарский край, Геленджик ... - Фото 2
    Сдам помещение общественного питания, 320 мОт собственника. Без комиссии.- Сдам кафе в Кабардинке на летний период, так же можно и на круглый год- Цену уточняйте - Частично оборудовано- Мангал- Летний навес- Оплата по договоренностиОт собственника. Без...
    • 1/2 эт.
    4 500 000 Р
    Агент
    +7 (918) Показать номер
    Посмотреть контакты
    Помещение свободного назначения (3716 м) - Фото 1
    Помещение свободного назначения (3716 м) - Фото 2
    Арт.сдается в аренду помещение свободного назначения на 7 этаже в крупном ТЦ Несколько этажей в тц полностью заполнены арендаторами Активный пешеходный трафик Все коммуникации подведены Свободная планировка с возможностью индивидуального проекта Возможно...
    • 3/7 эт.
    4 460 000 Р
    Агент
    +7 (966) Показать номер
    Посмотреть контакты
    Помещение свободного назначения в Московская область, Мытищи ш. ... - Фото 1
    Помещение свободного назначения в Московская область, Мытищи ш. ... - Фото 2
    Лот 967419 Предложение от Собственника В строящемся многофункциональном комплексе в городе Мытищи открыта возможность аренды. Сдача объекта в эксплуатацию запланирована на конец 2025 года.В настоящее время строительные работы близятся к завершению, ведутся...
    • 1/2 эт.
    4 400 000 Р
    Агент
    +7 (986) Показать номер
    Посмотреть контакты

    Не нашли подходящего объявления?

    Оставьте заявку, и наши риэлторы подберут псн в районе Москвы

    (0)