420 000 Р 5 390 $ или 4 570

Информация об помещении

1
Этаж

Состояние и оснащение

Количество этажей
15
Развернуть
Агент
+7 (985) 823-24-07
Начать чат с агентом

Помещение свободного назначения в Москва ул. Нижние Мневники, 12 (62 ...

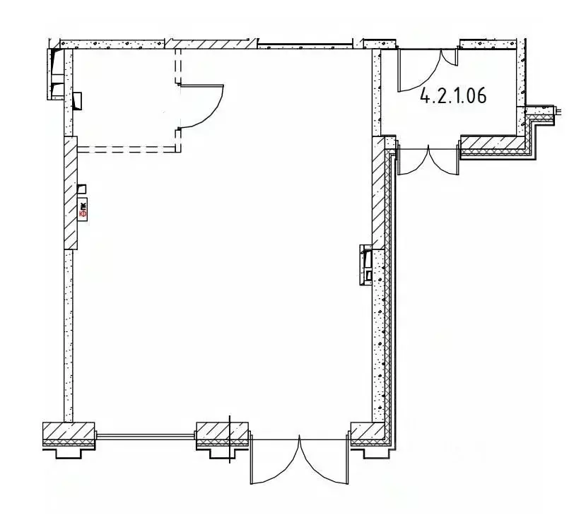
Помещение формата СТРИТ РИТЕЙЛ, расположено на 1 этаже дома в составе ЖК Остров-6, рядом с центральным входом в жилой комплекс. Дом входит в состав ЖК ОСТРОВ в окружении спортивного кластера: спортивный комплекс ЦСКА, легкоатлетический манеж, Ледовый дворец Т.Навки.Площадь 61,7кв.м, свободного назначения. Правильной формы, без колонн. Возможность получения мед. лицензии ( отсутствует паркинг под помещением).Панорамное остекление, отдельный вход. Электрическая мощность 20 кВт. Без отделки. Предоставляются арендные каникулы. Инженерные коммуникации: приточно-вытяжная общеобменная вентиляция и кондиционирование, смонтированы пожарная сигнализация, дымоудаление. В шаговой доступности от станции метро Терехово. Коммерческие условия:Арендная плата 420 000,00. Со второго года индексация 7 . Коммунальные и эксплуатационные услуги оплачиваются дополнительно.Возможность размещения вывески на фасаде, круглосуточный доступ.

Читать полностью
    Позвонить Написать
    420 000 Р5 390 $ или 4 570
    Агент
    +7 (985) 823-24-07
    Начать чат с агентом
    Похожие предложения
    Помещение свободного назначения в Москва ул. Нижние Мневники, 12 (54 ... - Фото 1
    Помещение свободного назначения в Москва ул. Нижние Мневники, 12 (54 ... - Фото 2
    Видовое помещение формата СТРИТ РИТЕЙЛ, расположено на 1 этаже дома в составе ЖК Остров-6. Дом входит в состав ЖК ОСТРОВ в окружении спортивного кластера: спортивный комплекс ЦСКА, легкоатлетический манеж, Ледовый дворец Т.Навки.Площадь 54кв.м, свободного...
    • 1/21 эт.
    425 000 Р
    Агент
    +7 (985) Показать номер
    Посмотреть контакты
    Помещение свободного назначения в Москва ул. Архитектора Щусева, 3 ... - Фото 1
    Помещение свободного назначения в Москва ул. Архитектора Щусева, 3 ... - Фото 2
    СУПЕР ПPEДЛOЖEHИЕ Успейте зaнять ЛУЧШЕE место для вaшего бизнеcав cepдцe ЗИЛAРТ В нашем помещении ремонту на . . Новый Дизайнерский ремонт. Сдавали два года ( были кухни ) , съезжают быстро оперативно, один день на сборы. Распродают бизнес. Помещение...
    • 1/14 эт.
    420 000 Р
    Агент
    +7 (985) Показать номер
    Посмотреть контакты
    Помещение свободного назначения в Москва Лесная ул., 43 (128 м) - Фото 1
    Помещение свободного назначения в Москва Лесная ул., 43 (128 м) - Фото 2
    Лот 997942 Предложение от Собственника Готовность к заезду января 2026г. Помещение на 7 этаже с отделкой, общей площадью 128.1 м2, планировка смешанная. расположено в 8 мин от м Новослободская. Есть лифт. Бизнес-центр оборудован современными инженерными...
    • 7/7 эт.
    424 972 Р
    Агент
    +7 (986) Показать номер
    Посмотреть контакты
    Помещение свободного назначения в Москва ул. Красная Пресня, 12 (43 м) - Фото 1
    Помещение свободного назначения в Москва ул. Красная Пресня, 12 (43 м) - Фото 2
    БЕЗ КОМИССИИ. Сдаётся помещение 43.1 кв.м. До московского зоопарка 200 метров. Высота потолков 4.2 м. Отдельный вход с фасада. Большие витрины. Мокрая точка. Интенсивный пешеходный трафик. Электричество по запросу. Центральные коммуникации. Прямая аренда....
    • 1/1 эт.
    430 000 Р
    Агент
    +7 (916) Показать номер
    Посмотреть контакты
    Помещение свободного назначения в Москва Студеный проезд, 7Б (235 м) - Фото 1
    Помещение свободного назначения в Москва Студеный проезд, 7Б (235 м) - Фото 2
    Помещение 192 и 235 м2 под автостоянку, автоуслуги, автосервис, склад и тд.- удобный заезд- возможна перепланировка- высота потолков 3,2-3.4 м- высота въезда 2,2 м- горячая вода- канализация- вытяжка- приточка- центральное и воздушное отопление- 380В,...
    • 5/5 эт.
    423 000 Р
    Агент
    +7 (916) Показать номер
    Посмотреть контакты

    Не нашли подходящего объявления?

    Оставьте заявку, и наши риэлторы подберут псн в районе Москвы

    (0)