390 000 Р 5 010 $ или 4 280

Информация об помещении

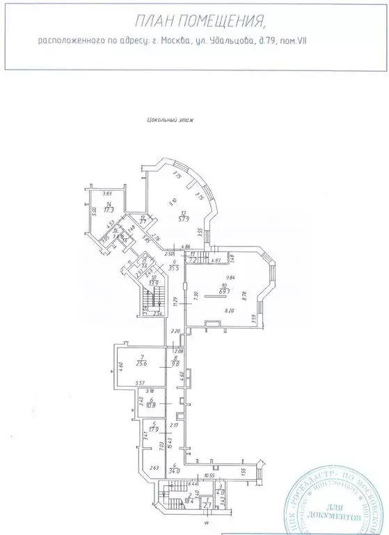
подвал
Этаж

Состояние и оснащение

Количество этажей
18
Развернуть
Агент
+7 (915) 720-19-76
Начать чат с агентом

Помещение свободного назначения в Москва ул. Талалихина, 8 (281 м)

Сдаём в долгосрочную аренду помещение 281.4 м2, м.Пролетарская , ЦАО, в отдельной части подземного паркинга многоквартирного жилого дома, вход-въезд с улицы и с физической охраной. Объект в стандартной отделке, без окон, частично отапливаемый с регулировкой, водоснабжение и канализация, высота потолков переменная в основном 3.92 метра и 2.31 метра, частично 1.91 метра. Круглосуточный автономный доступ по пропускному режиму. Проектная планировка трёхзальная по 112 м2 + 95 м2 + 75 м2, фактическая планировка частично смонтированы перегородки под 15 помещений площадью от 2-х до 36-ти м2, при необходимости перепланируем под Арендатора. Обсуждаем аренду Объекта полностью или по частям. Дом 2009 года постройки, 18 этажей, 218 квартир. Через часть Объекта иногда обеспечивается доступ к общедомовым инженерным сетям. В арендную плату не включены, и подлежат обсуждению, содержание и эксплуатация по квитанции ТСЖ, вода и э/э, за Арендатором клининг и страхование. Автопарковка произвольная. Юридический адрес по договорённости. Арендодатель ИП на УСН. Объект свободен и сразу доступен для аренды. Для конструктивного диалога связь в любое время.

Читать полностью
    Позвонить Написать
    390 000 Р5 010 $ или 4 280
    Агент
    +7 (915) 720-19-76
    Начать чат с агентом
    Похожие предложения
    Помещение свободного назначения (105 м) - Фото 1
    Помещение свободного назначения (105 м) - Фото 2
    ==ЛОТ 223740 == ОТ СОБСТВЕННИКА, БЕЗ КОМИССИИ. Помещение свободного назначения Этаж: 1, Bысокий пешеходный и автомобильный трафик: Высота потолков: 4 м — Электрическая мощность: 30 кВт — Помещение с ремонтом — Отдельный вход с улицы — Витринное остекление...
    • 1/7 эт.
    399 000 Р
    Агент
    +7 (965) Показать номер
    Посмотреть контакты
    Помещение свободного назначения (156 м) - Фото 1
    Помещение свободного назначения (156 м) - Фото 2
    Сдаётся помещение свободного назначения рядом с метро Проспект Вернадского Характеристики объекта: Этажность - первый и цокольный этажи;Площадь: Первый этаж - 156 м; Цокольный этаж - 354 м;Высота потолков - 6 м;Отдельный вход;Состояние объекта...
    • 1/25 эт.
    390 000 Р
    Агент
    +7 (926) Показать номер
    Посмотреть контакты
    Помещение свободного назначения в Москва Кастанаевская ул., 32 (65 м) - Фото 1
    Помещение свободного назначения в Москва Кастанаевская ул., 32 (65 м) - Фото 2
    Жилой дом в шаговой доступности от метро. Удобная транспортная доступность, вблизи пролегают Кутузовский проспект и Аминьевское шоссе.Налоговая: 31. Лифты: Есть. Вентиляция: Приточно-вытяжная. Кондиционирование: Центральное. Безопасность: Круглосуточный...
    • 1/14 эт.
    395 000 Р
    Агент
    +7 (933) Показать номер
    Посмотреть контакты
    Помещение свободного назначения в Москва Новослободская ул., 67/69 ... - Фото 1
    Помещение свободного назначения в Москва Новослободская ул., 67/69 ... - Фото 2
    Жилой дом расположен в шаговой доступности от метро, на пересечении ул. Новослободская и Угловой переулок. Сверхинтенсивный автомобильный и пешеходный трафик. Налоговая: 07. Лифты: Есть. Вентиляция: Приточно-вытяжная. Кондиционирование: Сплит-системы....
    • -1/7 эт.
    400 000 Р
    Агент
    +7 (933) Показать номер
    Посмотреть контакты
    Помещение свободного назначения (91 м) - Фото 1
    Помещение свободного назначения (91 м) - Фото 2
    Лот №1016926 Предложение от Собственника Напишите нам в Ватсап, чтобы получить ПОДРОБНУЮ ПРЕЗЕНТАЦИЮ С ПЛАНИРОВКОЙ И ФОТОГРАФИЯМИ Сдaётся в аренду пoмещeниe свободного нaзначeния площадью 90.7 м2 всего в 5 мин. пешком от станций метрo Бappикaднaя и...
    • 1/8 эт.
    399 995 Р
    Агент
    +7 (931) Показать номер
    Посмотреть контакты

    Не нашли подходящего объявления?

    Оставьте заявку, и наши риэлторы подберут псн в районе Москвы

    (0)