800 000 Р 9 850 $ или 8 530

Информация об помещении

цоколь
Этаж

Состояние и оснащение

Количество этажей
2
Развернуть
Агент
+7 (915) 631-38-31
Начать чат с агентом

Помещение свободного назначения в Москва Строгинский бул., 1к2 (361 м)

Вадим.ФОТО и ВИДЕО соответствуют.Торговое помещение в ТЦ Лукоморье.Вход в помещение в прикассовой зоне магазина Перекресток.Якорные арендаторы: Перекрёсток, Чижик, Шоколадница, Детский мир, Копирка а так же ряд островков.Большой жилой массив. У ТЦ автобусная остановка. 2 минуты от метро Строгино.Интенсивный пешеходный и автомобильный трафик.Парковка перед ТЦ.Выделенная зона разгрузки.Предлагаемое помещение: минус 1-й этаж 361,3 м2.Открытая планировка, подсобные помещения, С/У.В помещение спускается пассажирский лифт и лестница.Для разгрузки есть грузовой лифт.Кондиционирование и приточно-вытяжная вентиляция.Сплинкерная система пожаротушения. Потолки 2,6 м2.Электричество: 40 кВт.Арендная плата:/мес. вкл. НДС. с товарооборота обсуждается. К/У оплачиваются отдельно по счётчикам.Предоплата 1 месяц. Депозит 1 месяц.Прямой долгосрочный договор от 3-х лет.Предоставляется юр. адрес. Налоговая 34.P.S. помещение свободно.

Читать полностью
    Позвонить Написать
    800 000 Р9 850 $ или 8 530
    Агент
    +7 (915) 631-38-31
    Начать чат с агентом
    Похожие предложения
    Помещение свободного назначения в Москва ш. Энтузиастов, 55 (320 м) - Фото 1
    Помещение свободного назначения в Москва ш. Энтузиастов, 55 (320 м) - Фото 2
    1063206 . Предлагаем помещение свободного назначения формата Street Retail, площадью 320 кв. м., расположенное на первом этаже жилого дома. Преимущества объекта:-первая линия шоссе Энтузиастов;-8 минут на автомобиле от станции метро Новогиреево; -плотный...
    • 1/22 эт.
    800 000 Р
    Агент
    +7 (916) Показать номер
    Посмотреть контакты
    Помещение свободного назначения в Москва пер. Гусятников, 13/3 (170 м) - Фото 1
    Помещение свободного назначения в Москва пер. Гусятников, 13/3 (170 м) - Фото 2
    991701 . Предлагаем угловое помещение свободного назначения формата street-retail, площадью 170.1 кв. м, расположенное на первом этаже 6-этажного жилого дома. Преимущества объекта:-на пересечении пер. Гусятников и Большой Харитоньевский;-первая линия;-шаговая...
    • 1/6 эт.
    800 000 Р
    Агент
    +7 (916) Показать номер
    Посмотреть контакты
    Помещение свободного назначения в Москва Судостроительная ул., 3 (174 ... - Фото 1
    Помещение свободного назначения в Москва Судостроительная ул., 3 (174 ... - Фото 2
    Жилой дом Судостроительная, 3 класса BПлощадь: 174,1 м2Арендная ставка: 55 830,. за м2 в годСтоимость площади в месяц: 810 000,.Система налогообложения: УСНГотовность: готово к въездуЭтаж: 1Планировка: открытаяСтатус: свободенВысота потолков, h: 3.50мОтдельный...
    • 1/16 эт.
    810 000 Р
    Агент
    +7 (911) Показать номер
    Посмотреть контакты
    Помещение свободного назначения в Москва Минская ул., 2Гк1 (488 м) - Фото 1
    Помещение свободного назначения в Москва Минская ул., 2Гк1 (488 м) - Фото 2
    БЕЗ КОМИССИИ БЦ класса B+ Кутузовъ Холл . Сдаётся блок с санузлом в цокольном этаже площадью 488 кв.м с отдельным входом с улицы. Стандартная отделка. Кондиционер (сплит), вентиляция. Есть охрана. Электрическая мощность 150 кВт.УСН. Минская улица, 2Гк1,...
    • -1/7 эт.
    799 995 Р
    Агент
    +7 (916) Показать номер
    Посмотреть контакты
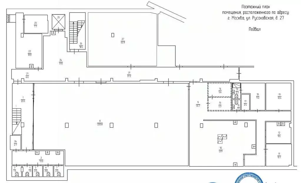
    Помещение свободного назначения в Москва Русаковская ул., 27 (593 м) - Фото 1
    Помещение свободного назначения в Москва Русаковская ул., 27 (593 м) - Фото 2
    Лот: 37508. Помещение располагается на первой линии домов Русаковской улицы в 2-х минутах пешком от станции метро Сокольники . Интенсивный пешеходный и автомобильный трафик.Общая площадь помещения: 600 кв. м. Распределение площади по этажам: подвал.Витринное...
    • -1/12 эт.
    799 957 Р
    Агент
    +7 (986) Показать номер
    Посмотреть контакты

    Не нашли подходящего объявления?

    Оставьте заявку, и наши риэлторы подберут псн в районе Москвы

    (0)