Реализация объекта недвижимости приостановлена

Информация об помещении

1
Этаж

Состояние и оснащение

Количество этажей
15
Развернуть

Помещение свободного назначения в Москва Ленинградское ш., 228к1 (127 ...

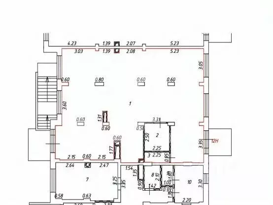
1071774 . Предлагаем помещение свободного назначения формата Street Retail, площадью 127,4 кв. м., расположенное на первом этаже жилого дома в ЖК 1-й Ленинградский . Преимущества объекта:-комплекс состоит из 6 корпусов переменной этажности (от 12 до 15 этажей);-14 минут пешком от станции МЦД-3 Молжаниново; -плотный жилой массив;-рядом расположена школа;-интенсивный пешеходный и автомобильный трафик;-объект отлично просматривается, находится в легком доступе для потенциальных клиентов;-просторное и функциональное - это помещение подходит для различных видов бизнеса: от магазина до офиса;-витринное остекление;-место для вывески; -мокрая точка;-наземная парковка;-рядом остановки общественного транспорта. Технические параметры объекта:-2 входные группы;-электрическая мощность: 28 кВт. Свяжитесь с нами для получения дополнительной информации

Читать полностью

    Реализация объекта недвижимости приостановлена

    Не нашли подходящего объявления?

    Оставьте заявку, и наши риэлторы подберут псн в районе Москвы

    (0)