Россия, Москва, 3-я Парковая ул., 26/2
170 000 Р 2 100 $ или 1 810

Информация об помещении

цоколь
Этаж

Состояние и оснащение

Количество этажей
5
Развернуть
Агент
+7 (986) 253-91-75
Начать чат с агентом

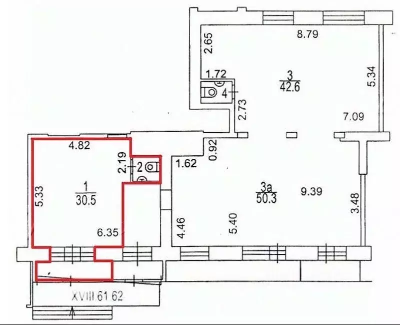
Помещение свободного назначения в Москва 3-я Парковая ул., 26/2 (70 м)

КН- 117. ПРЯМАЯ АРЕНДА. НА ДЛИТЕЛЬНЫЙ СРОК. ДЛЯ ВАШЕГО БИЗНЕСА, 2 СТАНЦИИ МЕТРО В 10 МИНУТАХ ХОДЬБЫ. ПЕРВАЯ ЛИНИЯ ДОМОВ. В аренду предлагается помещение на -1 этаже 5-этажного кирпичного жилого дома, в пешей доступности метро. Выгодная локация - пешеходный и автомобильный трафик делают помещение максимально рентабельным. Отдельный вход с улицы, возможность повесить вывеску, познакомить всех со своим бизнесом. Помещение в хорошем состоянии, стандартная отделка, после ремонта, 2 больших зала, служебное помещение, санузел см. фото. Возможно использование под аптеку, шоурум, торговую площадь, офис и пр., одним словом, все, КРОМЕ АЛКОГОЛЯ И ПВЗ. Оперативный показ, подробности на фото и по телефону. Всегда рады ответить на вопросы.

Читать полностью
    Позвонить Написать
    170 000 Р2 100 $ или 1 810
    Агент
    +7 (986) 253-91-75
    Начать чат с агентом
    Похожие предложения
    Помещение свободного назначения в Москва Нахимовский просп., 22 (32 м) - Фото 1
    Помещение свободного назначения в Москва Нахимовский просп., 22 (32 м) - Фото 2
    БЕЗ КОМИССИИ Жилой дом. Сдаётся комната на первом этаже площадью 32 кв.м с отдельным входом с улицы. Высококачественная отделка. Электрическая мощность 15 кВт.УСН. Нахимовский проспект, 22, 15 минут пешком от метро Нахимовский проспект. ЛОТ 242999
    • 1/12 эт.
    160 000 Р
    Агент
    +7 (916) Показать номер
    Посмотреть контакты
    Помещение свободного назначения в Москва 1-й Новокузнецкий пер., 5-7 ... - Фото 1
    Помещение свободного назначения в Москва 1-й Новокузнецкий пер., 5-7 ... - Фото 2
    Арт.Сдаётся помещение в центре города от собственника рядом с метро с удобным расположением. Располагается рядом с Новокузнецкой улицей. Арендные каникулы. Помещение свободного назначения по разные виды деятельности, а именно, салон красоты, услуги, маркетплейс,...
    • -1/14 эт.
    160 000 Р
    Агент
    +7 (916) Показать номер
    Посмотреть контакты
    Помещение свободного назначения в Москва бул. Веласкеса, 6 (87 м) - Фото 1
    Помещение свободного назначения в Москва бул. Веласкеса, 6 (87 м) - Фото 2
    Арт.Уважаемые предприниматели Предлагаем в субаренду современное торговое помещение 87 кв.м с качественным ремонтом, идеально подходящее для открытия вашего бизнеса. ПРЕИМУЩЕСТВА НАШЕГО ПРЕДЛОЖЕНИЯ: • Удобное расположение в ЖК испанские кварталы с высокой...
    • 1/7 эт.
    180 000 Р
    Агент
    +7 (910) Показать номер
    Посмотреть контакты
    Помещение свободного назначения в Москва ул. Гончарова, 17А (70 м) - Фото 1
    Помещение свободного назначения в Москва ул. Гончарова, 17А (70 м) - Фото 2
    БЕЗ КОМИССИИ Офисное здание. Сдаётся блок с санузлом на первом этаже площадью 70 кв.м с отдельным входом с улицы. Новое помещение под чистовую отделку (Shell Core). Электрическая мощность 20 кВт.УСН. Улица Гончарова, 17А, 10 минут пешком от метро Фонвизинская....
    • 1/1 эт.
    164 996 Р
    Агент
    +7 (916) Показать номер
    Посмотреть контакты
    Помещение свободного назначения в Москва Загородное ш., 4 (70 м) - Фото 1
    Помещение свободного назначения в Москва Загородное ш., 4 (70 м) - Фото 2
    Прямая аренда от собственника.Планировка: 3 изолированных помещения. Ремонт: Качественный чистовой ремонт. Вход: Отдельный вход Санузел: Свой 1, в помещении.Описание:Уникальное предложение по аренде коммерческого помещения в престижном районе Крылатское....
    • 1/17 эт.
    160 000 Р
    Агент
    +7 (980) Показать номер
    Посмотреть контакты

    Не нашли подходящего объявления?

    Оставьте заявку, и наши риэлторы подберут псн в районе Москвы

    (0)