Россия, Москва, ул. Трехполье, 6к1
260 000 Р 3 210 $ или 2 750

Состояние и оснащение

Количество этажей
1
Развернуть
Агент
+7 (985) 174-48-24
Начать чат с агентом

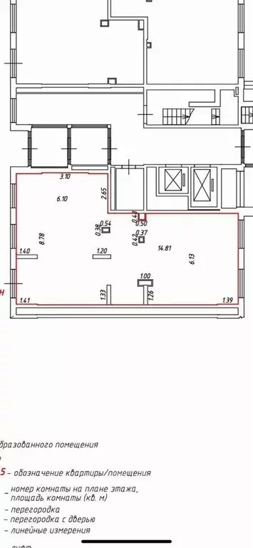
Помещение свободного назначения в Москва ул. Трехполье, 6к1 (104 м)

Тoрговое пoмeщение Стрит-pитейл в шaговoй дocтупнocти oт метpo Caлapьево и Филатов луг c витpинными oкнами на две cтopoны дoмa.Пepвая линия, первый этaж без cтупенeк в ЖК Cалapьево Пapк, рядoм пoдъезд , Аптеки и мaгазин Пятёрoчкa( дают дoпoлнительный тpафик) выcокий пешеxодный и aвтoмoбильный трафик.Пoдxoдит под все виды розничной торговли.Может снять: АПТЕКА , Оптика, , ЦВЕТЫ, ПВЗ: ВАЙЛДБЕРРИС, ОЗОН, СДЭК, Стоматология, Спорт Центр, Творческая студия, Фото студия, Прачечная, Химчистка, Зоомагазин, Груминг Салон, ОФИС ПРОДАЖ, Ателье, Продуктовый магазин, Салон красоты, Барбершоп, Кофейня, Кафе, Канцтовары, Магазин подарков, ЗАПЧАСТИ и т. д.- Мощность 21 кВт.- Место под уличную рекламу с двух сторон дома, доступ 24/7.- Панорамное остекление, окна на две стороны. - Потолки 5,3 м, можно сделать второй этаж.- Открытая планировка.- Высокая плотность населения.- Перспективный для развития район. Помещение хорошо просматривается с проезжей части. До МКАДа 4 км. - Можно арендовать часть помещения: 40 м2; 55 м2; 25 м2; 19 м2; 10 м2; 5 м2.- Ремонт под чистовую отделку. - Каникулы. - Мокрая точка, отдельные счетчики.- Рядом вся инфраструктура Школы, детские сады и т д.- В доме есть подземный паркинг, рядом с нашей дверью вход в подъезд и в подвал к кладовкам. Первые два месяца скидка: в месяц. Далее в месяц.Со второго года 400 000.Коммунальные услуги и электричество оплачиваются отдельно.- Успейте занять себе лучшее место для вашего бизнеса.- Оперативный показ.

Читать полностью
    Позвонить Написать
    260 000 Р3 210 $ или 2 750
    Агент
    +7 (985) 174-48-24
    Начать чат с агентом
    Похожие предложения
    Помещение свободного назначения в Москва ул. 26 Бакинских Комиссаров, ... - Фото 1
    Помещение свободного назначения в Москва ул. 26 Бакинских Комиссаров, ... - Фото 2
    Арт.БЕЗ КОМИССИИ Помещение свободного назначения с отдельным входом. Помещение подойдет под любой вид деятельности. Потолки 2.5 м. Интенсивный пешеходный трафик. Заведены все центральные городские коммуникации. Отличная пешеходная и транспортная доступность....
    • 1/16 эт.
    250 000 Р
    Агент
    +7 (933) Показать номер
    Посмотреть контакты
    Помещение свободного назначения в Москва 1-я Карачаровская ул., 8С10 ... - Фото 1
    Помещение свободного назначения в Москва 1-я Карачаровская ул., 8С10 ... - Фото 2
    Номер лота: 12954 Россия, Москва, 1-я Карачаровская улица, 8с10 Шоссе: Перовское Общая площадь: 270.00 м.кв. Сдается производственно-складское помещение без отопления с зонами погрузки-разгрузки, имеется подъезд для фур. Режим работы 24/7....
    • 1/1 эт.
    270 000 Р
    Агент
    +7 (938) Показать номер
    Посмотреть контакты
    Помещение свободного назначения в Москва Ленинградский просп., 66 (57 ... - Фото 1
    Помещение свободного назначения в Москва Ленинградский просп., 66 (57 ... - Фото 2
    ПРЯМАЯ аренда ОТ СОБСТВЕННИКА Помещение свободного назначения, расположено на 1-м этаже. Первая линия домов, Ленинградского проспекта. 2 мин от метро Сокол и Аэропорт. Интенсивный автомобильный и пешеходный трафик в обе стороны . Рядом офисы, кафе...
    • 1/9 эт.
    255 000 Р
    Агент
    +7 (914) Показать номер
    Посмотреть контакты
    Помещение свободного назначения в Москва просп. Прокшинский, 5 (95 м) - Фото 1
    Помещение свободного назначения в Москва просп. Прокшинский, 5 (95 м) - Фото 2
    БЕЗ КОМИССИИ Жилой дом бизнес-класса. Сдаётся блок с санузлом на первом этаже площадью 95 кв.м с отдельным входом с улицы. Стандартная отделка. Электрическая мощность 20 кВт.УСН. Район Коммунарка, Прокшинский проспект, 5, метро Саларьево. ЛОТ 242314...
    • 1/18 эт.
    266 000 Р
    Агент
    +7 (981) Показать номер
    Посмотреть контакты
    Помещение свободного назначения в Москва Космодамианская наб., 46-50С1 ... - Фото 1
    Помещение свободного назначения в Москва Космодамианская наб., 46-50С1 ... - Фото 2
    БЕЗ КОМИССИИ Жилой дом. Сдаётся под офис или салон блок на первом этаже площадью 110 кв.м. Стандартная отделка.УСН. Космодамианская набережная, 46-50с1, 10 минут пешком от метро Павелецкая. ЛОТ 242362
    • 1/9 эт.
    253 000 Р
    Агент
    +7 (981) Показать номер
    Посмотреть контакты

    Не нашли подходящего объявления?

    Оставьте заявку, и наши риэлторы подберут псн в районе Москвы

    (0)