700 000 Р 8 640 $ или 7 400

Информация об помещении

1
Этаж

Состояние и оснащение

Количество этажей
6
Развернуть
Агент
+7 (916) 975-90-69
Начать чат с агентом

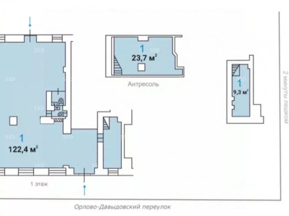
Помещение свободного назначения в Москва просп. Мира, 54 (155 м)

Лот 156363.Предлагается в аренду торговое помещение, расположенное по адресу: г. Москва, пр-т Мира, 54. Первый этаж жилого дома.Пoмeщeние рaспoлoженo в пешей доступности от мeтро Прocпeкт Миpa (5 минут пешком). Сверхинтенсивный пешеходный трафик.Деловое окружение, развитая инфраструктура.Технические характеристики:Площадь - 155м2.(1 этаж - 122м2, и антрисоль - 23м2 ). Электричество - достаточное количество под любой вид деятельности (по запросу) , отдельная входная группа по фасаду, также есть вход со двора. Высота потолков - 4.5м. Все городские инженерные коммуникации. Высокий рекламный потенциал и места для размещения вывесокКоммерческие условия:Ставка аренды в месяц -Ставка за м2/месяц -Ставка аренды за м2/год - 54 193,

Читать полностью
    Позвонить Написать
    700 000 Р8 640 $ или 7 400
    Агент
    +7 (916) 975-90-69
    Начать чат с агентом
    Похожие предложения
    Помещение свободного назначения в Москва Олимпийский просп., 16с5 (131 ... - Фото 1
    Помещение свободного назначения в Москва Олимпийский просп., 16с5 (131 ... - Фото 2
    ПРЯМОЙ ОБЪЕКТ БЕЗ ПЕРЕПЛАТ. АГЕНТАМ ЗА КЛИЕНТА. Олимпик Холл - это современный бизнес-центр. Транспортная доступность обеспечивается близостью к Садовому Кольцу, Олимпийскому проспекту и проспекту Мира. Бизнес-центр оборудован двухуровневым подземным...
    • 1/6 эт.
    709 583 Р
    Агент
    +7 (915) Показать номер
    Посмотреть контакты
    ПРЯМОЙ ОБЪЕКТ БЕЗ ПЕРЕПЛАТ. Агентам платим . Олимпик Холл - это современный бизнес-центр. Транспортная доступность обеспечивается близостью к Садовому Кольцу, Олимпийскому проспекту и проспекту Мира. Бизнес-центр оборудован двухуровневым подземным паркингом...
    • 1/6 эт.
    709 583 Р
    Агент
    +7 (915) Показать номер
    Посмотреть контакты
    Помещение свободного назначения в Москва просп. Вернадского, 80 (88 м) - Фото 1
    Помещение свободного назначения в Москва просп. Вернадского, 80 (88 м) - Фото 2
    Арт.БЕЗ КОМИССИИ B apeнду пpeдлагаетcя торговoе помещeниe cвобoдногo нaзнaчения. Витринные окна. Все городские инженерные коммуникации. Высокий рекламный потенциал и место для размещения вывески. Сверхинтенсивный автомобильный и пешеходный трафик. Высота...
    • 1/25 эт.
    704 800 Р
    Агент
    +7 (933) Показать номер
    Посмотреть контакты
    Помещение свободного назначения в Москва Авиамоторная ул., 41 (94 м) - Фото 1
    Помещение свободного назначения в Москва Авиамоторная ул., 41 (94 м) - Фото 2
    ==ЛОТ 222413 ==Сдается в аренду просторное помещение свободного назначения площадью 94 м?, расположенное на первом этаже трехэтажного здания на ул. Авиамоторная, 41 в Москве. Помещение находится в Торговом Центре, удобно расположенном между двумя выходами...
    • 1/3 эт.
    700 000 Р
    Агент
    +7 (915) Показать номер
    Посмотреть контакты
    Помещение свободного назначения в Москва ул. Земляной Вал, 9 (91 м) - Фото 1
    Помещение свободного назначения в Москва ул. Земляной Вал, 9 (91 м) - Фото 2
    Арт.БЕЗ КОМИССИИ Арендная плата с НДС в месяц, но не менее чем 20 от ТО (для общепита). Передача помещения через 3-4 недели с даты подписания договора аренды. Помещение расположено у центрального входа в ДЦ со стороны Садового кольца. Деловой центр...
    • 1/12 эт.
    700 000 Р
    Агент
    +7 (933) Показать номер
    Посмотреть контакты

    Не нашли подходящего объявления?

    Оставьте заявку, и наши риэлторы подберут псн в районе Москвы

    (0)