Россия, Москва, ул. Братьев Бромлей, 5к1

Реализация объекта недвижимости приостановлена

Информация об помещении

1
Этаж

Состояние и оснащение

Количество этажей
9
Развернуть

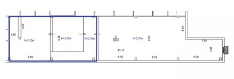
Помещение свободного назначения в Москва ул. Братьев Бромлей, 5к1 (165 ...

Прямая Аренда, Новый корпус Сдается коммерческое помещение общей площадью 165,2 кв. м.Предоставляем арендные каникулы.Особенности расположения данного помещения:-Через помещение проходит высокий трафик проживающих людей как в жилом комплексе, так и в окружающей застройке.-Трафик направлен в сторону парковки и остановок общественного транспорта.-Помещение в обустроенном жилом комплексе, много корпусов и инфраструктуры.-Напротив помещения открытый паркинг, который так же повышают проходящий трафик вдоль помещения.Особенности помещения:-Входная группа на уровне земли, без лестниц и пандусов;-Торцевое помещение, много окон;-Возможность установить видимую вывеску с двух сторон здания;-Большое количество окон, много поступающего света в помещение;-Помещение на видном месте, на въезде в комплекс;-Удачное планировочное зонирование помещения, можно разделить на несколько зон.В помещении проведено:-ХГВС-Канализационный слив-Мощность электроэнергии (32 кВт), возможность увеличения.Готов ответить на возникшие вопросы, предоставить фотоальбом и провети оперативный показ.МАП 1 год -МАП 2 год - 450 т. р.С 3 года индексация 6

Читать полностью

    Реализация объекта недвижимости приостановлена

    Не нашли подходящего объявления?

    Оставьте заявку, и наши риэлторы подберут псн в районе Москвы

    (0)