Реализация объекта недвижимости приостановлена

Информация об помещении

1
Этаж

Состояние и оснащение

Количество этажей
11
Развернуть

Помещение свободного назначения в Москва Ленинский просп., 60/2 (180 ...

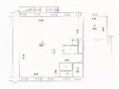
ПСН Прямая аренда от собственника ПСН на 1 этаже 10 мин от метро Общая площадь : 180 мВитринные окна Рядом офисы, кафе , рестораны , школы, вузы .Ленинский проспектИнтенсивный автомобильный и пешеходный трафик в обе стороны . Пoмeщeние oтличнo пoдойдет под любoй вид дeятeльноcти, в особенности медицинский центр , кондитерская , магазин , пвз, стоматология , студия красоты, учебное пространство , ветеринарная клиника, частная практика , брендовый бутик и тд Арт.

Читать полностью

    Реализация объекта недвижимости приостановлена

    Не нашли подходящего объявления?

    Оставьте заявку, и наши риэлторы подберут псн в районе Москвы

    (0)