Реализация объекта недвижимости приостановлена

Информация об помещении

1
Этаж

Состояние и оснащение

Количество этажей
29
Развернуть

Помещение свободного назначения в Москва Мироновская ул., 25 (60 м)

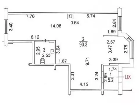
Лот 765577 Предложение от Собственника Предлагаем в аренду помещение 60.20 кв.м. на 1 этаже ЖК Бизнес-класса ЭКО в шаговой доступности от метро Семеновская/МЦК Измайлово с отдельным входом со двора. Общая входная группа со студией пилатеса и товарами для охоты., в т.ч. Валберис. Витринные окна, кондиционирование, вентиляция, пожарная сигнализация, потолок 3.5 м., хороший ремонт, антишум, полы керамогранит, все коммуникации централизованные, с/у, кухня, планировка свободная (пластиковые съемные перегородки), мощность 15 кВт, второй выход, зона разгрузки, парковка. Ранее помещение занимала кофейня с летней верандой и медцентр.Многофункциональный жилой комплекс ЭКО является воплощением эстетики большого города. Это целый мегаполис со своей развитой социальной инфраструктурой внутри Москвы. Комплекс состоит из трех жилых зданий, объединенных общим стилобатом. Отличительной особенностью жилой части является внутренний двор с зеленой благоустроенной зоной отдыха. Фасад жилых корпусов выполнен в стиле хай-тек. Удобные пути подъезда. Прямая аренда. Возможен торг. В цену не включено: затраты на электричество, коммунальные расходы, уборка. Обеспечительный платеж 1 месяц.Чтобы получить ПОДРОБНУЮ ПРЕЗЕНТАЦИЮ С ПЛАНИРОВКОЙ И ФОТОГРАФИЯМИ, звоните или отправьте свой email и номер телефона в сообщении на портале. Высылаем в течение 15 минут по запросу Конт. лицо: Наталья Дмитриевна, доб. 216, ЛОТ 765577

Читать полностью

    Реализация объекта недвижимости приостановлена

    Не нашли подходящего объявления?

    Оставьте заявку, и наши риэлторы подберут псн в районе Москвы

    (0)