Россия, Москва, Большая Дорогомиловская ул., 5

Реализация объекта недвижимости приостановлена

Информация об помещении

1
Этаж

Состояние и оснащение

Количество этажей
7
Развернуть

Помещение свободного назначения в Москва Большая Дорогомиловская ул., ...

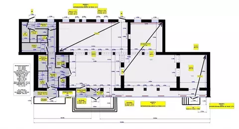
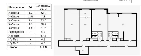
ПЛАТИМ АГЕНТАМ ВОЗНАГРАЖДЕНИЕ. Напишите или позвоните нам 1) Направим презентацию в мессенджер. 2) Показ в удобное время. 3) Согласуем хорошие условия и договор. Здание имеет удобное расположение. Непосредственная близость от метро.Налоговая: 30. Лифты: Нет. Вентиляция: Приточно-вытяжная. Кондиционирование: Центральное. Безопасность: Система пожаротушений, Видеонаблюдение. Парковка: Наземная. Описание помещения: Помещение расположено на 1 и 2 этажах жилого дома, отдельный вход. Ранее располагался банк. Мощность 84 кВт. Есть место для рекламы.Планировка: смешанная. Типовой ремонт. Подходит под: банк. Мебель. Тип налогообложения: УСН. Кол-во парковочных мест: 4. Лот

Читать полностью

    Реализация объекта недвижимости приостановлена

    Не нашли подходящего объявления?

    Оставьте заявку, и наши риэлторы подберут псн в районе Москвы

    (0)