1 069 332 Р 12 600 $ или 11 030

Информация об помещении

1
Этаж

Состояние и оснащение

Количество этажей
2
Развернуть
Агент
+7 (980) 191-45-50
Начать чат с агентом

Производственное помещение в Москва ш. Энтузиастов, 56 (987 м)

Уникальный номер помещения.Производственно-складской комплекс класса С в МосквеУдобное расположение: 5 км. до МКАД.Добавьте объявление в избранное, чтобы не упустить выгодное предложение Высота потолка 4,5 мРовный бетонный пол с антипылевым покрытиемПомещения холодные (без отопления)Парковка на территорииОгороженная территория.Удобный заезд.Все условия для комфортной работы.Подробности по запросуПочему стоит обращаться к нам:1) Работаем с 2014 года2) Специализируемся только на индустриальной и складской недвижимости3) У нас одна из самых больших баз собственников и клиентов4) Не берём комиссию с арендаторов/покупателей. Подберем оптимальное решение под ваши задачи. Звоните прямо сейчас

Читать полностью
    Позвонить Написать
    1 069 332 Р12 600 $ или 11 030
    Агент
    +7 (980) 191-45-50
    Начать чат с агентом
    Похожие предложения
    Производственное помещение в Москва Автомоторная ул., вл4 (900 м) - Фото 1
    Производственное помещение в Москва Автомоторная ул., вл4 (900 м) - Фото 2
    Арт.Предлагается в аренду помещение 900 м в составе производственно-складского комплекса в САО Москвы.Помещение расположено на 2 этаже производственного здания, подходит для размещения производства, сборочных линий или склада.Основные характеристикиПлощадь:...
    • 2/6 эт.
    1 170 000 Р
    Агент
    +7 (986) Показать номер
    Посмотреть контакты
    Производственное помещение в Москва Варшавское ш., 170Г (800 м) - Фото 1
    Производственное помещение в Москва Варшавское ш., 170Г (800 м) - Фото 2
    Уникальный номер помещения.Склад класса В в Москве.Удобное расположение: 1 км. до МКАД.Добавьте объявление в избранное, чтобы не упустить выгодное предложение Потолок 3 мПол бетонОтоплениеВсе необходимые коммуникацииBозможно оборудовать санузелВъезд на...
    • 1/6 эт.
    1 200 000 Р
    Агент
    +7 (980) Показать номер
    Посмотреть контакты
    Производственное помещение в Москва Варшавское ш., 170Г (1000 м) - Фото 1
    Производственное помещение в Москва Варшавское ш., 170Г (1000 м) - Фото 2
    Уникальный номер помещения.Торгово-складской комплекс класса С в Москве.Удобное расположение: 1 км. до МКАД.Добавьте объявление в избранное, чтобы не упустить выгодное предложение Помещение на третьем этажеВысота потолка 13 мПол бетонОтоплениеВсе необходимые...
    • 3/6 эт.
    1 200 000 Р
    Агент
    +7 (980) Показать номер
    Посмотреть контакты
    Производственное помещение в Москва проезд 3-й Перова Поля, 4А (1200 ... - Фото 1
    Производственное помещение в Москва проезд 3-й Перова Поля, 4А (1200 ... - Фото 2
    Уникальный номер помещения.Производственно-складской комплекс класса С в МосквеУдобное расположение: 6 км. до МКАД и ТТКДобавьте объявление в избранное, чтобы не упустить выгодное предложение Шестиэтажное капитальное зданиеПомещение на четвертом этажеВысота...
    • 4/6 эт.
    1 200 000 Р
    Агент
    +7 (980) Показать номер
    Посмотреть контакты
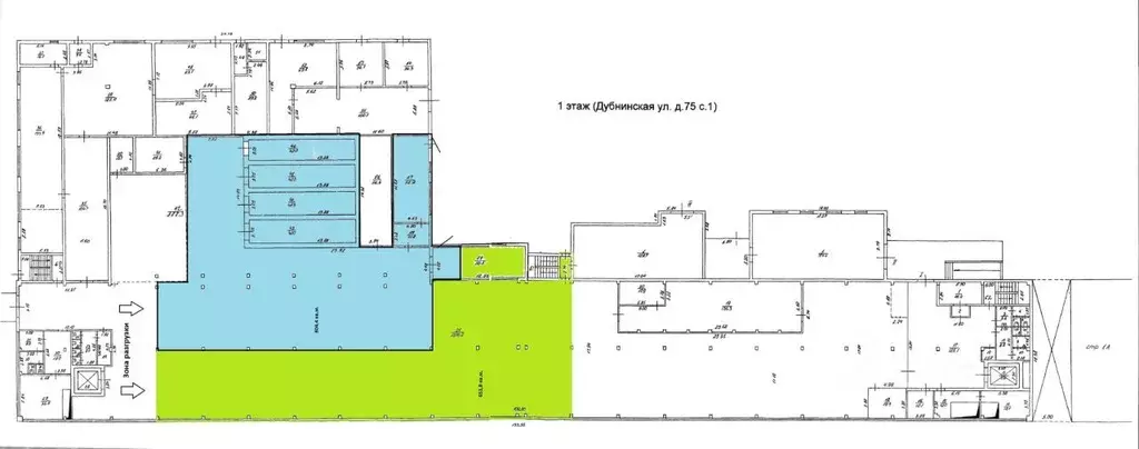
    Производственное помещение в Москва Дубнинская ул., 75С1а (651 м) - Фото 1
    Производственное помещение в Москва Дубнинская ул., 75С1а (651 м) - Фото 2
    Сдается производственное помещение. - централизованное отопление, водоснабжение, - электричество 80 кВт. (возможно увеличение) - высота потолков 4,25 м., - помещения для бухгалтерии, директора - въезд грузового автотранспорта в само помещение для разгрузки...
    • 1/2 эт.
    1 199 312 Р
    Агент
    +7 (917) Показать номер
    Посмотреть контакты

    Не нашли подходящего объявления?

    Оставьте заявку, и наши риэлторы подберут производственное помещение в районе Москвы

    (0)