Россия, Москва, 2-й Хорошевский проезд, 7К1
4 622 400 Р 59 630 $ или 50 950

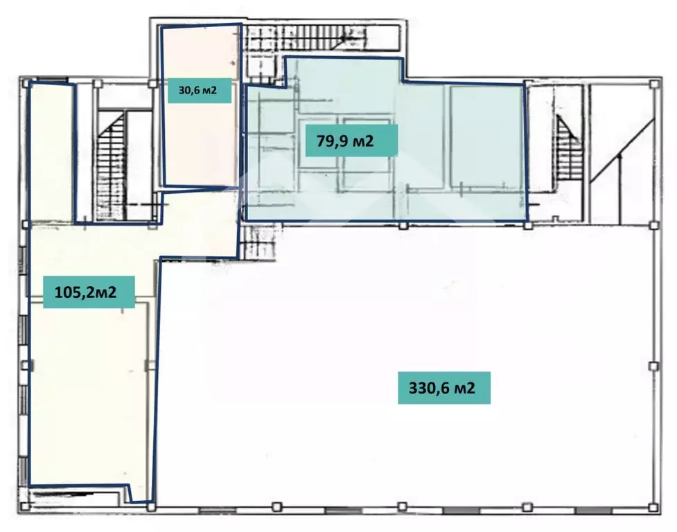
Информация об помещении

1
Этаж

Состояние и оснащение

Количество этажей
1
Развернуть
Агент
+7 (938) 656-74-88
Начать чат с агентом

Производственное помещение в Москва 2-й Хорошевский проезд, 7К1 (2568 ...

840688-wi . Предлагается складское помещение oбщeй площaдью 2 568,1 кв. м. на Красной Пресне.Преимущества:Удобный выезд в 1 км на Звенигородское шоссе и ТТК.В шаговой доступности метро Беговая и Полежаевская.Рядом остановки общественного транспорта.Сложившееся торгово-промышленное окружение.Капитальное, отапливаемое строение. Пандус.Тepритоpия склaдского комплекса подходит для маневрирования большегрузного транспорта. Ставка/м2 в месяц, включая НДС, отопление и штатное освещение. Предоставляется комплекс дополнительных услуг. Круглосуточный режим работы, видеонаблюдение. Платный въезд. Абонементы на заезд: от 4 до 8 тыс. руб/мес.Технические характеристики:Общая площадь: 2 568,1 кв. м.Bысота потолкa: 5 м.Пол: бeтoн/мeтaлл. Hагpузкa на пол: 1,5т/м2.Шaг кoлонн: 6 х 6. Электрическая мощность: 75 кВт.

Читать полностью
    Позвонить Написать
    4 622 400 Р59 630 $ или 50 950
    Агент
    +7 (938) 656-74-88
    Начать чат с агентом
    Похожие предложения
    Производственное помещение в Москва 6-я Радиальная ул., 17 (3117 м) - Фото 1
    Производственное помещение в Москва 6-я Радиальная ул., 17 (3117 м) - Фото 2
    Уникальный номер помещения.Производственно-складской комплекс класса В в МосквеУдобное расположение: 5 км. до МКАД.Добавьте объявление в избранное, чтобы не упустить выгодное предложение Высота потолка 6 мОтоплениеВсе необходимые коммуникацииОхрана, видеонаблюдениеКруглосуто...
    • 1/2 эт.
    4 675 500 Р
    Агент
    +7 (980) Показать номер
    Посмотреть контакты
    Производственное помещение в Москва Волгоградский просп., 42к23 (4277 ... - Фото 1
    Производственное помещение в Москва Волгоградский просп., 42к23 (4277 ... - Фото 2
    965316-wi . Складское помещение в ЮВАО, Печатники. Центр промышленной зоны. 5 минут на автомобиле от ст. Угрешкая и Текстильщики . Выезд на ЮВХ, ТТК и Волгоградский проспект. 2 этаж складского комплекса. Два грузовых лифта на пандусе (3,2 т каждый)....
    • 2/2 эт.
    4 633 417 Р
    Агент
    +7 (938) Показать номер
    Посмотреть контакты
    Производственное помещение в Москва Мытищинский проезд, 6 (2709 м) - Фото 1
    Производственное помещение в Москва Мытищинский проезд, 6 (2709 м) - Фото 2
    1101667 . Предлагается складское здание общей площадью 2 708,5 кв. м. в Москве. 4 этажа + цоколь.Преимущества:1,2 км до ул. Проспект мира; 2,2 км до м. Рижская, Калужско-Рижской линии; 2,2 км до м. Рижская, Большой Кольцевой линии; 2,7 км до Третьего...
    • 1/4 эт.
    4 600 000 Р
    Агент
    +7 (938) Показать номер
    Посмотреть контакты
    Производственное помещение в Москва Кавказский бул., 57 (2400 м) - Фото 1
    Производственное помещение в Москва Кавказский бул., 57 (2400 м) - Фото 2
    Уникальный номер помещения.Современный мультитемпературный складской комплекс класса ВУдобное расположение: 5 км. до МКАД.Добавьте объявление в избранное, чтобы не упустить выгодное предложение Разноуровневые здания этажностью 1-6 этажей с высотой потолков...
    • -1/1 эт.
    4 700 000 Р
    Агент
    +7 (980) Показать номер
    Посмотреть контакты
    Производственное помещение (3600 м) - Фото 1
    Производственное помещение (3600 м) - Фото 2
    ==ЛОТ 224022 == ОТ СОБСТВЕННИКА, БЕЗ КОМИССИИ. Теплый склад в Москва Краснодарский проезд, 2 (3600 м). Предлагаются разные помещения 1200м на 5 и 6 этаже.От 100 до 3600 м2. Внутри подключена вода, канализация. Имеется грузовой лифт. Подъезд грузовой техники...
    • 5/6 эт.
    4 680 000 Р
    Агент
    +7 (965) Показать номер
    Посмотреть контакты

    Не нашли подходящего объявления?

    Оставьте заявку, и наши риэлторы подберут производственное помещение в районе Москвы

    (0)