600 000 Р 7 710 $ или 6 630

Информация об помещении

цоколь
Этаж

Состояние и оснащение

Количество этажей
3
Развернуть
Агент
+7 (932) 726-88-86
Начать чат с агентом

Производственное помещение в Москва Рублевское ш., 52А (500 м)

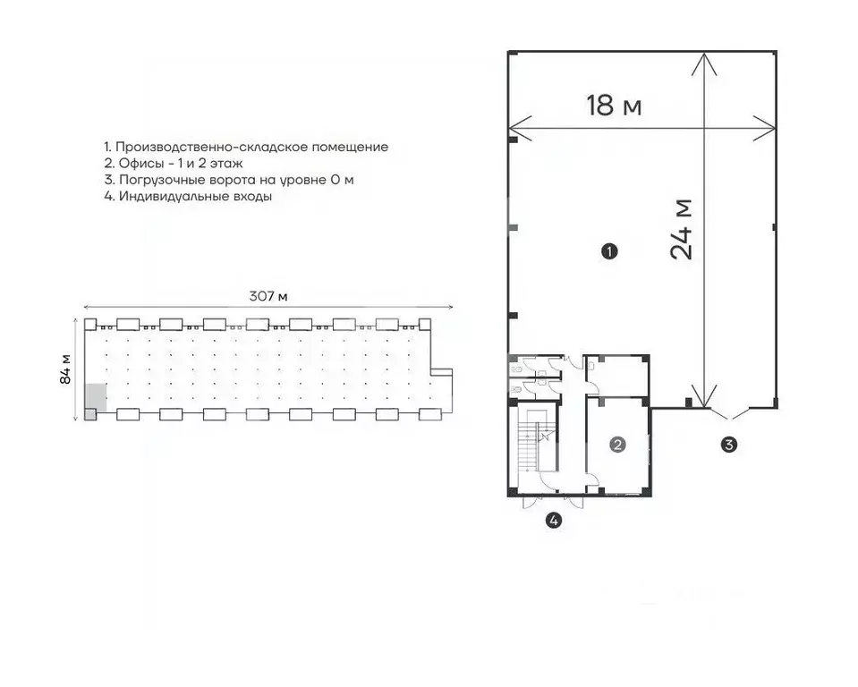
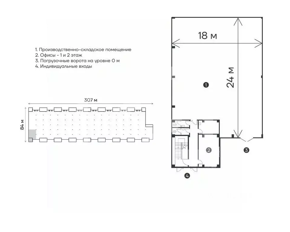
Лот: 419057. БЕЗ КОМИССИИ Отапливаемое помещение под парковку (стоянку) автомобилей, автосалон. В шаговой доступности от м. Крылатское. Расположено в цокольном этаже торгового центра. Высота потолков — 2,6 м. Антипылевые полы. Установлена противопожарная сигнализация. Приточно-вытяжная вентиляция. Наличие санузла.Режим работы круглосуточный. УСН. Коммунальные платежи оплачиваются отдельно.

Читать полностью
    Позвонить Написать
    600 000 Р7 710 $ или 6 630
    Агент
    +7 (932) 726-88-86
    Начать чат с агентом
    Похожие предложения
    Производственное помещение в Москва, Москва, Зеленоград ул. ... - Фото 1
    Производственное помещение в Москва, Москва, Зеленоград ул. ... - Фото 2
    Предлагается в аренду складское помещение общей площадью 600 кв.м. Возможно деление по блокам, а также размещение производства. Высота потолков - 3,5 м.Мощности - по запросу.Арендная ставка: за 1 кв.м. в месяц.. ID помещения 147672
    • 1/2 эт.
    600 000 Р
    Агент
    +7 (986) Показать номер
    Посмотреть контакты
    Производственное помещение в Москва д. Сенькино-Секерино, ул. ... - Фото 1
    Производственное помещение в Москва д. Сенькино-Секерино, ул. ... - Фото 2
    1079408-wi . Готовый блок общей площадью 592 кв. м, в складском комплексе категории Light Industrial в промышленном парке Сенькино .Здание - корпус С.Преимущества:Расположение на ЦКАД, в пос. Краснопахорское, г. Москва.Первая линия.Развитая транспортная...
    • 1/2 эт.
    600 000 Р
    Агент
    +7 (938) Показать номер
    Посмотреть контакты
    Производственное помещение в Москва д. Сенькино-Секерино, ул. ... - Фото 1
    Производственное помещение в Москва д. Сенькино-Секерино, ул. ... - Фото 2
    1079408 . Готовый блок общей площадью 592 кв. м, в складском комплексе категории Light Industrial в промышленном парке Сенькино .Здание - корпус С.Преимущества:Расположение на ЦКАД, в пос. Краснопахорское, г. Москва.Первая линия.Развитая транспортная...
    • 1/2 эт.
    600 000 Р
    Агент
    +7 (938) Показать номер
    Посмотреть контакты
    ==ЛОТ 223978 == ОТ СОБСТВЕННИКА, БЕЗ КОМИССИИ. Предлагаю уникальное коммерческое помещение на первой линии по адресу: Москва, Кожевническая улица, 1Бс1. Общая площадь составляет 130 м?, помещение расположено на первом этаже жилого дома и отвечает всем...
    • 1/7 эт.
    600 000 Р
    Агент
    +7 (965) Показать номер
    Посмотреть контакты
    Производственное помещение (756 м) - Фото 1
    Производственное помещение (756 м) - Фото 2
    Сдается в аренду помещения свободного назначения (2 ангара), по 756 м.кв. Возможно разделение от 400 м. В каждом ангаре 2 отдельных входа. Электричество 75 кВт. Возможно увеличение мощности. Помещения не отапливаются, возможно отопление под арендатора....
    • 1/1 эт.
    604 800 Р
    Агент
    +7 (931) Показать номер
    Посмотреть контакты

    Не нашли подходящего объявления?

    Оставьте заявку, и наши риэлторы подберут производственное помещение в районе Москвы

    (0)