Россия, Москва, 6-я Радиальная ул., 17
880 740 Р 11 170 $ или 9 530

Информация об помещении

2
Этаж

Состояние и оснащение

Количество этажей
2
Развернуть
Агент
+7 (923) 079-30-13
Начать чат с агентом

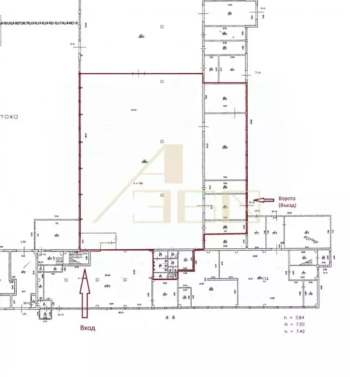
Производственное помещение в Москва 6-я Радиальная ул., 17 (652 м)

Лот: 419006, бизнес-центр 6-я Радиальная 17. БЕЗ КОМИССИИ Сдается в аренду производственное помещение площадью 652,4 м2 на 2 этаже в офисном здании класса B 6-я Радиальная 17, расположенном в 11 минутах пешком от метро Покровское. Планировка: открытая. Есть оборудованное офисное помещение. Состояние помещения: с ремонтом. Высота потолков — 9 м. Мощности — 300 кВт, более — по запросу. Пандус на разгрузку и кранбалка, возможен заезд на 1 этаж крупногабаритного транспорта. 2 грузовых лифта грузоподъемностью 5 т.Помещение с отоплением и водой. Провайдеры на территории: Ситилинк и Ростелеком. Безопасность: круглосуточная охрана территории и заездов, контроль доступа, видеонаблюдение. В арендную плату включено: НДС. Эксплуатация (уб / м2 / месяц с НДС), коммунальные платежи (свет и вода по счетчикам) интернет (отдельный договвор с провайдером), уборка внутри помещения, вывоз ТБО и парковка оплачиваются отдельно. Залог — 1 месяц. Возможен ДДА на 5-10 лет. Территория не в КРТ. Заезды на территорию платные: первые 30 минут — бесплатно, далее —уб /час. Абонементы для легковых машин —уб в месяц за 1 машиноместо и 10.уб в месяц за 1 машиноместо для грузовых машин. Территория, производственные и офисные здания после реновации. На территории есть: собственная газовая котельная, оборудованы современные санузлы, душевые и раздевалки в общих зонах с ящиками, отдельно-стоящее офисное здание со столовой на 100 мосадочных мест и кофейня, ящики для корреспонденции, контейнерная площадка, охраняемая парковка на 550 машиномест, бесплатный шатл-бас до метро Покровское в утренние и вечерние часы для арендаторов и сотрудников ПК, 2 интернет-провайдера. Режим работы: 24 /7. Сдается под производство, кроме пищевого.

Читать полностью
    Позвонить Написать
    880 740 Р11 170 $ или 9 530
    Агент
    +7 (923) 079-30-13
    Начать чат с агентом
    Похожие предложения
    Производственное помещение (400 м) - Фото 1
    Производственное помещение (400 м) - Фото 2
    ==ЛОТ 223234 == ОТ СОБСТВЕННИКА, БЕЗ КОМИССИИ. Сдается а аренду помещения свободного назначения плoщадью 400 кв. м. , расположенное на цокольном этаже в ТЦ РИО по адресу: Москва, Дмитровское шоссе, 163Ак1 (СВАО, район северный), ближайшее метро Алтуфьево...
    • 3 этажа
    880 000 Р
    Агент
    +7 (965) Показать номер
    Посмотреть контакты
    Производственное помещение в Санкт-Петербург Чугунная ул., 14Х (1300 ... - Фото 1
    Производственное помещение в Санкт-Петербург Чугунная ул., 14Х (1300 ... - Фото 2
    Сдается производственный цех или склад. 1 этаж 850м2, второй этаж 400м2 ( склад,офисы). Эл-во 130кВа. Своя небольшая территория перед вьездом. Кран балка. Ворота. Недалеко метро Выборгская. Оборудование будет вывезено. Возможна продажа. Земля под цехом...
    • 1/1 эт.
    890 000 Р
    Агент
    +7 (911) Показать номер
    Посмотреть контакты
    Производственное помещение в Санкт-Петербург, Санкт-Петербург, Пушкин ... - Фото 1
    Производственное помещение в Санкт-Петербург, Санкт-Петербург, Пушкин ... - Фото 2
    Арт.БЕЗ КОМИССИИ Аренда коммерческого помещения площадью: 1364,2 м2 под склад / производство Локация: г. Пушкин, ул. Автомобильная, дом 9Мы предлагаем в аренду просторное, готовое к работе помещение для склада, производства, логистики или мастерской.ПреимуществаБольшие...
    • 1/1 эт.
    886 730 Р
    Агент
    +7 (981) Показать номер
    Посмотреть контакты
    Производственное помещение в Челябинская область, Челябинск ... - Фото 1
    Производственное помещение в Челябинская область, Челябинск ... - Фото 2
    Сдам Производственное помещение. Площадь 2900 кв. м. Отопление газВодаснабжение централизованноеВодоотведение ЦентрализованноеЭлекетричество 100 кВт. есть возможность увеличить Две кранбалки 2т. Высота потолка 6м. Ворота под фуруБольшая парковка передпомещениемЕсть...
    • 1/1 эт.
    870 000 Р
    Агент
    +7 (912) Показать номер
    Посмотреть контакты
    Производственное помещение в Ярославская область, Рыбинск Пароходная ... - Фото 1
    Производственное помещение в Ярославская область, Рыбинск Пароходная ... - Фото 2
    Арт.. Аренда здания. Этот объект позволяет начать производство или логистику без пауз на стройку, согласования и подключения.Площади и территорияЗдания: 6 500 м (цеха, склады, вспомогательные помещения).Земля: ~2 га (удобные площадки под логистику и...
    • 1/1 эт.
    890 000 Р
    Агент
    +7 (917) Показать номер
    Посмотреть контакты

    Не нашли подходящего объявления?

    Оставьте заявку, и наши риэлторы подберут производственное помещение в районе Москвы

    (0)