1 666 666 Р 21 650 $ или 18 540

Информация об помещении

1
Этаж

Состояние и оснащение

Количество этажей
1
Развернуть
Агент
+7 (985) 515-74-74
Начать чат с агентом

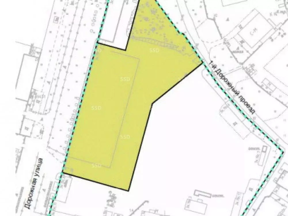
Производственное помещение в Москва Дорожная ул., 3к19с1 (1000 м)

Лот 158248.Аренда производственного помещения, площадью 1000 кв.м.Адрес: г. Москва, ЮАО, район Чертаново Центральное, Дорожная ул., 3к19с1. Объект имеет удобную локацию и транспортную доступность: расположен в черте Москвы, внутри МКАД в границах грузового каркаса Москвы. Расстояние от МКАД 4 км, от ТТК 10 км., вблизи ключевых автомагистралей (ЮВХ, МСД, Варшавское и Каширское шоссе). Пешая доступность от станций метро Южная (18 мин.) и Пражская (16 мин.). Рядом — остановки наземного общественного транспорта. Высокий пешеходный и автомобильный трафик.Технические характеристики:Производственное здание (1000 кв. м.), без пoдвалa, шaг колoнн 6х18м, мнoгo въeздныx вopот (на 0 отмeткe), eсть дeйствующие кpaн-балки (8шт) грузoпoдъемнocтью 3 и 2т., а также отдельно выделенные автoрeмoнтныe бoксы, 1982 г.пoстройки.Все коммуникации центральные. Электричество 100 Квт. базово, увеличение обсуждается по запросу.Здание расположено на земельном участке 2 Га (долгосрочная аренда).Большая наземная парковка для любого вида транспорта. Подойдет под складскую и производственную деятельность. Возможна, также, аренда соседнего административного здания 4940 кв.м.Коммерческие условия:Стоимость объекта: + НДС.Стоимость за 1 кв. м.: + НДС.Объект не входит в состав КРТ.

Читать полностью
    Позвонить Написать
    1 666 666 Р21 650 $ или 18 540
    Агент
    +7 (985) 515-74-74
    Начать чат с агентом
    Похожие предложения
    Производственное помещение в Москва Павелецкая наб., 8Б (480 м) - Фото 1
    Производственное помещение в Москва Павелецкая наб., 8Б (480 м) - Фото 2
    БЕЗ КОМИССИИ Бизнес-центр класса B+. Сдаётся блок с санузлом на 3-м этаже площадью 480 кв.м. Стандартная отделка. Электрическая мощность 90 кВт.УСН. Павелецкая набережная, 8Б, метро Павелецкая. ЛОТ 244112
    • 3/4 эт.
    1 600 000 Р
    Агент
    +7 (923) Показать номер
    Посмотреть контакты
    Производственное помещение (1256 м) - Фото 1
    Производственное помещение (1256 м) - Фото 2
    Лот №990346 Предложение от Собственника Напишите нам в Ватсап, чтобы получить ПОДРОБНУЮ ПРЕЗЕНТАЦИЮ С ПЛАНИРОВКОЙ И ФОТОГРАФИЯМИ Сдается помещение общей площадью 1256 кв.м. Их которых 900 кв.м. на втором этаже. Пространство подходит для организации...
    • 2/4 эт.
    1 718 313 Р
    Агент
    +7 (931) Показать номер
    Посмотреть контакты
    Производственное помещение в Москва № 61 кв-л, 1с3 (1012 м) - Фото 1
    Производственное помещение в Москва № 61 кв-л, 1с3 (1012 м) - Фото 2
    Аренда помещений в Промышленном парке Сенькино, формат light industrial. Промышленный парк Сенькино это современные помещения для размещения производства, хранения, логистики, офиса и шоу-рума на одной территории. Девелопер - Parametr (ГК ПИК) Строительство...
    • 1/2 эт.
    1 606 000 Р
    Агент
    +7 (986) Показать номер
    Посмотреть контакты
    Производственное помещение в Москва № 61 кв-л, 1с3 (1012 м) - Фото 1
    Производственное помещение в Москва № 61 кв-л, 1с3 (1012 м) - Фото 2
    Аренда помещений в Промышленном парке Сенькино, формат light industrial. Промышленный парк Сенькино это современные помещения для размещения производства, хранения, логистики, офиса и шоу-рума на одной территории. Девелопер - Parametr (ГК ПИК) Строительство...
    • 1/2 эт.
    1 606 000 Р
    Агент
    +7 (986) Показать номер
    Посмотреть контакты
    Производственное помещение (960 м) - Фото 1
    Производственное помещение (960 м) - Фото 2
    Лот №988545 Предложение от Собственника Напишите нам в Ватсап, чтобы получить ПОДРОБНУЮ ПРЕЗЕНТАЦИЮ С ПЛАНИРОВКОЙ И ФОТОГРАФИЯМИ Предлагается в аренду помещение площадью 960 м, расположенное на первом этаже здания в составе производственно-складского...
    • 1/5 эт.
    1 760 000 Р
    Агент
    +7 (931) Показать номер
    Посмотреть контакты

    Не нашли подходящего объявления?

    Оставьте заявку, и наши риэлторы подберут производственное помещение в районе Москвы

    (0)