422 500 Р 5 230 $ или 4 560

Информация об помещении

1
Этаж

Состояние и оснащение

Количество этажей
2
Развернуть
Агент
+7 (917) 529-37-63
Начать чат с агентом

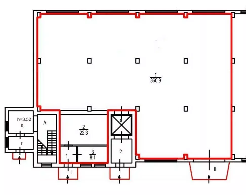
Производственное помещение в Москва Вельяминовская ул., 34С31 (390 м)

Сдается в аренду помещение под Производство/Склад.От метро Семеновская пешком 10 минут, заезд с улицы Зверинецкая.Вниманию тех, кто смотрит это объявление на Авито. Комиссия агентства- 50 от месячной аренды.Помещение 390 кв.м на1-м этаже, с четырьмя отдельными входами, со всеми коммуникациями. Отдельная комната отдыха, кухня, душ и туалет.Мощность: 150 квт, при необходимости обсуждаем возможность увеличения.Максимальная нагрузка на пол 2500 кг на кв. м.Высота потолков 12 м. Огороженная территория, пропускной режим, парковка.Оборудована принудительная приточно-вытяжная система вентиляции.Грузовой лифт до 5 тонн.Удобная зона погрузки/разгрузки, есть два кран-балки (до 2,5 тонн).Возможность заезда и разгрузки фур.Возможность работы 24/7.Удобство размещения автомобилей на территории.Круглосуточная охрана, видеонаблюдение.Пропускная система.Дополнительные услуги: юридический адрес, услуги погрузки/разгрузки.Ухоженная территория.Провайдеры: Цифра 1, МТС.Договор прямой аренды с собственником. Коммунальные платежи, эксплуатационные расходы включены, электроэнергия дополнительно по счетчикам.Обеспечительный платеж- один месяц, арендные каникулы предоставляются.Можно дополнительно снять офисы. Звоните

Читать полностью
    Позвонить Написать
    422 500 Р5 230 $ или 4 560
    Агент
    +7 (917) 529-37-63
    Начать чат с агентом
    Похожие предложения
    Производственное помещение (122 м) - Фото 1
    Производственное помещение (122 м) - Фото 2
    ==ЛОТ 222813 == ОТ СОБСТВЕННИКА, БЕЗ КОМИССИИ. Ищете идеальное пространство для вашего бизнеса? Представляем ваше новое направление в Москве на Болотниковской улице, 43К1 Это уникальное помещение свободного назначения площадью 122 м? расположено на первом...
    • 1/17 эт.
    425 000 Р
    Агент
    +7 (965) Показать номер
    Посмотреть контакты
    Производственное помещение в Москва Дубнинская ул., 75С1 (357 м) - Фото 1
    Производственное помещение в Москва Дубнинская ул., 75С1 (357 м) - Фото 2
    Сдается помещение общей площадью 356,7 м2 в производственно-складском комплексе. Не КРТ. Арендная ставка:/м/г. МАП:.Назначение: склад, легкое производство, мастерская.Расположено на 3 этаже 3-х этажного строения.В контуре 2 зала с открытой планировкой,...
    • 3/3 эт.
    416 150 Р
    Агент
    +7 (986) Показать номер
    Посмотреть контакты
    Производственное помещение (223 м) - Фото 1
    Производственное помещение (223 м) - Фото 2
    ==ЛОТ 222875 ==Сдается помещение свободного назначения. Под любой вид деятельности, офис, клиентский центр. Все кроме общепита. Сделан новый дизайнерский ремонт. Отдельный вход, панорамные окна, витринные.
    • 1/9 эт.
    427 400 Р
    Агент
    +7 (965) Показать номер
    Посмотреть контакты
    Производственное помещение (572 м) - Фото 1
    Производственное помещение (572 м) - Фото 2
    Аренда теплого склада на ул. Шекспира 10А, Kенинский район. Склад расположен на территории охраняемой складской базы.Мощность сети 20кВт.Рабочая высота потолков - 8 метров.Полы антипыль.Удобная транспортная развязка.Отопление газовое.Большая асфальтированная...
    • 1/1 эт.
    429 000 Р
    Агент
    +7 (958) Показать номер
    Посмотреть контакты
    Производственное помещение в Липецкая область, Липецк ул. Ковалева, ... - Фото 1
    Производственное помещение в Липецкая область, Липецк ул. Ковалева, ... - Фото 2
    Арт.Сдается часть производственного цеха.Объект оснащен всеми коммуникациями.Имеет отдельную входную группу и двоебольших грузовых ворот.Цех оборудован 10 тн. мостовым краном.Есть бытовые и офисные помещения.Ждем Ваших предложений
    • 1/2 эт.
    420 000 Р
    Агент
    +7 (910) Показать номер
    Посмотреть контакты

    Не нашли подходящего объявления?

    Оставьте заявку, и наши риэлторы подберут производственное помещение в районе Москвы

    (0)