Узнать последнюю цену

Реализация объекта недвижимости приостановлена

Информация о помещении и здании

772 м2
Площадь
7
Этаж
b
Класс здания
Развернуть

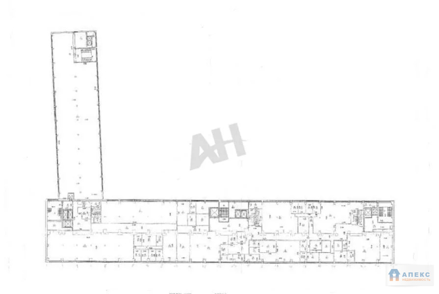
Аренда офиса 772 м2 м. Шаболовская в бизнес-центре класса В в Донской

Лот №822358 Предлагается в аренду просторный офисный блок на 7 этаже, общей площадью 772,5 кв. м., с хорошей отделкой в Бизнес центре класс В «Шаболовка-31», в строении Г. Здание оборудовано всеми необходимыми системами для поддержания комфортной работы офиса. В офисе выполнен современный, качественный ремонт, пол - ковролин, стены - покраска. Планировка преимущественно смешанная. Санузлы в блоке. Офис полностью готов к въезду.


НДС '.20%.' оплачивается дополнительно. В цену включено: эксплуатационные расходы. В цену не включено: затраты на электричество, коммунальные расходы, уборка.

Чтобы получить ПОДРОБНУЮ ПРЕЗЕНТАЦИЮ С ПЛАНИРОВКОЙ И ФОТОГРАФИЯМИ, звоните или отправьте свой email в сообщении на портале. Высылаем в течение 15 минут по запросу!

Конт. лицо: Егор Викторович, доб. 300, ЛОТ №822358

Читать полностью
    Узнать последнюю цену

    Реализация объекта недвижимости приостановлена

    Не нашли подходящего объявления?

    Оставьте заявку, и наши риэлторы подберут офис в районе Москвы

    (0)