2 980 000 Р 39 800 $ или 33 950

Информация о помещении и здании

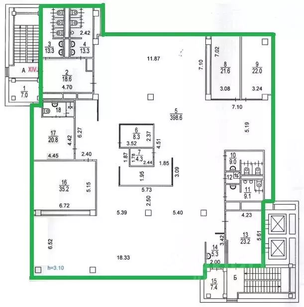
5
Этаж
7
Этажность
Развернуть
Агент
+7 (925) 820-61-37
Начать чат с агентом

Офис (596 м)

Сдается в прямую аренду помещение под офис класса А площадью 596 кв.м в бизнес-центре Май .Москва, ЮЗАО, улица Дмитрия Ульянова, 7АУдобная локация здания:- Автомобиль: близость транспортных магистралей, таких как Проспект Вернадского, Ленинский проспект, Профсоюзная улица и других.- Возможность аренды парковочных мест.- Ближайшее метро: от метро Академическая всего 8 мин пешком Офис класса А:- Помещение готово к въезду- Кондиционирование: сплит-системы - Круглосуточная охрана и видеонаблюдениеЧто еще можно узнать о предложении: 1. Получите презентацию в течение 10 минут в Whatsapp или на почту с фотографиями и планировкой, чтобы обсудить данный вариант с коллегами или переслать руководству. Для этого позвоните по телефону, указанному в объявлении. 2. Задайте любые вопросы менеджеру по телефону, готовы обсуждать любые предложения по финансовым условиям договора аренды. 3. Проводим показы ежедневно, договоримся на удобное для Вас время. Можем организовать виртуальный тур по офисному блоку. Звоните нам в любое время. По будням мы сможем ответить на Ваши вопросы до 19:00. В выходные или вечернее время мы передадим Ваш контакт нашему менеджеру по аренде. НОМЕР ОБЪЯВЛЕНИЯ: №1381035

Читать полностью
    Позвонить Написать
    2 980 000 Р39 800 $ или 33 950
    Агент
    +7 (925) 820-61-37
    Начать чат с агентом
    Похожие предложения в Москве
    Офис (596 м) - Фото 1
    Офис (596 м) - Фото 2
    2-й этаж, всего 7 этажей

    Предлагается в долгосрочную прямую аренду офисное помещение класса А площадью 596 квадратных метров в бизнес-центре Май .Москва, ЮЗАО, улица Дмитрия Ульянова, 7АУдобная локация здания:- Автомобиль: близость транспортных магистралей, таких как Профсоюзная...
    • 2/7 эт.
    2 980 000 Р
    Агент
    +7 (925) Показать номер
    Посмотреть контакты
    Офис в Москва ул. Дмитрия Ульянова, 7А (593 м) - Фото 1
    Офис в Москва ул. Дмитрия Ульянова, 7А (593 м) - Фото 2
    5-й этаж, всего 7 этажей

    ВАЖНО: БЕЗ КОММИССИ ДЛЯ АРЕНДАТОРОВ, ПРЯМАЯ АРЕНДА ОТ СОБСТВЕННИКАБизнес-центр B класса Дмитрия Ульянова 7а расположен по адресу Москва, ЮЗАО, район Академический, ул. Дмитрия Ульянова, дом 7а, в пешей доступности от метро Академическая (9 мин).Характеристики...
    • 5/7 эт.
    2 965 000 Р
    Агент
    +7 (916) Показать номер
    Посмотреть контакты
    5-й этаж, всего 7 этажей

    Предлагаю в аренду офисный этаж целиком в Бизнес-центре МАЙ , кл. В+ на Академической.Здание общей площадью 7000 м2 после полной реконструкции в 2014 году.Этажность 7, лифты 2.Свободен для въезда с 01 июля 5 этаж 592,6 м2Сейчасабочих мест, без учета...
    • 5/7 эт.
    2 963 000 Р
    Агент
    +7 (923) Показать номер
    Посмотреть контакты
    2-й этаж, всего 7 этажей

    Предлагаю в аренду офисный этаж целиком в Бизнес-центре МАЙ , кл. В+ на Академической.Здание общей площадью 7000 м2 после полной реконструкции в 2014 году.Этажность 7, лифты 2.Свободен для въезда с 01 июля 2 этаж 594,1 м2.Сейчасабочих мест, без учета...
    • 2/7 эт.
    2 970 500 Р
    Агент
    +7 (923) Показать номер
    Посмотреть контакты
    Офис в Москва ул. Дмитрия Ульянова, 7А (593 м) - Фото 1
    Офис в Москва ул. Дмитрия Ульянова, 7А (593 м) - Фото 2
    5-й этаж, всего 7 этажей

    Предлагается к аренде офисный этаж целиком в БЦ Май на Академической.Адрес: Дмитрия Ульянова, 7а (ИФНС 28)57 минут пешком до станции метро Академическая.Свободен для въезда с 01/07 целый этаж - 593 м, 7-й этаж.Возможность аренды нескольких этажей (2...
    • 5/7 эт.
    2 963 000 Р
    Агент
    +7 (985) Показать номер
    Посмотреть контакты

    Не нашли подходящего объявления?

    Оставьте заявку, и наши риэлторы подберут офис в районе Москвы

    (0)