Россия, Москва, Большая Садовая ул., 3С10
650 000 Р 8 700 $ или 7 420

Информация о помещении и здании

1
Этаж
5
Этажность
Развернуть
Агент
+7 (933) 937-50-36
Начать чат с агентом

Офис в Москва Большая Садовая ул., 3С10 (140 м)

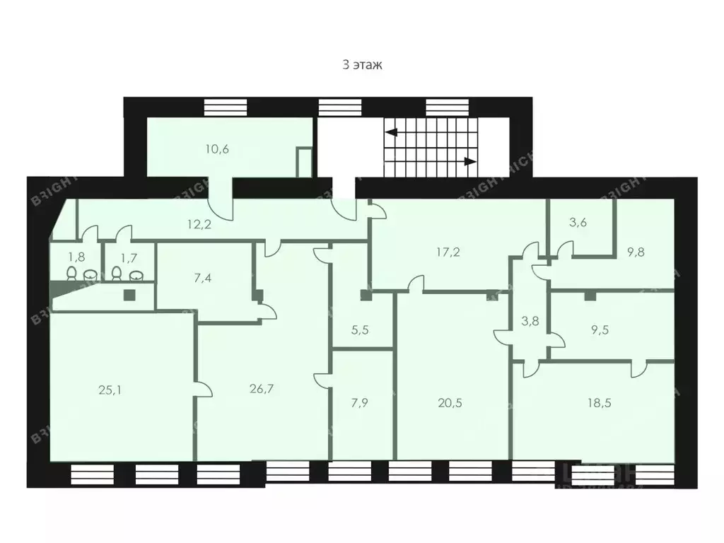
Номер объекта: 588349. ID: 588349Сдаётся помещение 140 кв/м. Первый этаж 5-ти этажного особняка (1913г модерн Шехтеля с оригинальным декором, потолком и лепниной). 5-7 минут пешком до района Патриарших прудов и метро Маяковская . Въезд с Большой Садовой улицы. Пешеходный проход на Большую Садовую улицу, улицу Красина, улицу Гашека и 2-ю Брестскую улицу. Тихий закрытый двор с охраной и видеонаблюдением. Уникальная планировка, спроектированная известным архитектором. Высота потолков 3,5 метра, второй свет, огромные окна (ощущается, как 200+ метров). Все коммуникации новые, приточная вентиляция с ионизацией и очисткой воздуха, кондиционирование, охранная сигнализация, видеонаблюдение, бойлер и стиральная машина, встроенный сейф. Профессиональная серверная комната, объединённая с локальной сетью и высокоскоростным интернетом. Усилитель GSM-сигнала. 2 личных машиноместа на закрытой, охраняемой территории + гостевые места. Помещение готово к использованию в качестве офиса/представительства. Имеет планировку: ресепшен, переговорная, кабинет руководителя, помещение для рабочих совещаний и ВКС, зал на 12-абочих мест, 2 санузла (один с душем), гардероб, встроенные шкафы, антресоли и кладовая. Качественный ремонт А-класса, дизайнерский интерьер и мебель. Предметы современного искусства и антиквариат. Полностью готово к использованию.

Читать полностью
    Позвонить Написать
    650 000 Р8 700 $ или 7 420
    Агент
    +7 (933) 937-50-36
    Начать чат с агентом
    Похожие предложения
    Офис в Москва ул. Орджоникидзе, 11С1а (222 м) - Фото 1
    Офис в Москва ул. Орджоникидзе, 11С1а (222 м) - Фото 2
    3-й этаж, всего 5 этажей

    ВАЖНО: БЕЗ КОММИССИ ДЛЯ АРЕНДАТОРОВ, ПРЯМАЯ АРЕНДА ОТ СОБСТВЕННИКААдминистративное здание B класса Бизнес-парк Орджоникидзеасположено по адресу Москва, ЮАО, район Донской, ул. Орджоникидзе, дом 11, в пешей доступности от метро Ленинский проспект (7 мин).Характеристики...
    • 3/5 эт.
    647 500 Р
    Агент
    +7 (916) Показать номер
    Посмотреть контакты
    Офис в Москва Дорогобужская ул., 14 (520 м) - Фото 1
    3-й этаж, всего 3 этажа

    ВАЖНО: БЕЗ КОММИССИ ДЛЯ АРЕНДАТОРОВ, ПРЯМАЯ АРЕНДА ОТ СОБСТВЕННИКАБизнес-центр B+ класса Бизнес-центр РАПИРА расположен по адресу Москва, ЗАО, район Можайский, Дорогобужская ул., дом 14, в пешей доступности от метро Кунцевская (34 мин).Характеристики...
    • 3/3 эт.
    650 000 Р
    Агент
    +7 (916) Показать номер
    Посмотреть контакты
    Офис в Москва Малый Предтеченский пер., 1/2 (214 м) - Фото 1
    Офис в Москва Малый Предтеченский пер., 1/2 (214 м) - Фото 2
    3-й этаж, всего 4 этажа

    АРЕНДА ОТ СОБСТВЕННИКАМосква, пер Малый Предтеченский, 1/2Звоните и пишите прямо сейчас — не упустите возможность арендовать идеальный офис для Вашего бизнеса в отличном месте Сотрудничаем с агентами.- Удобная транспортная доступность — всего несколько...
    • 3/4 эт.
    659 834 Р
    Агент
    +7 (982) Показать номер
    Посмотреть контакты
    Офис в Москва Озерковская наб., 12 (196 м) - Фото 1
    Офис в Москва Озерковская наб., 12 (196 м) - Фото 2
    3-й этаж, всего 4 этажа

    Офисное помещение 195.5 кв. м в бизнес-центре Озерковская 12 .Округ: Центральный (ЦАО). Район: Замоскворечье. Ближайшие станции метро: Новокузнецкая, Третьяковская, Павелецкая. Характеристики:- Класс: B; - Арендопригодная площадь: 816; - Код налоговой:...
    • 3/4 эт.
    655 903 Р
    Агент
    +7 (915) Показать номер
    Посмотреть контакты
    Офис в Москва наб. Пресненская, 12 (110 м) - Фото 1
    Офис в Москва наб. Пресненская, 12 (110 м) - Фото 2
    27-й этаж, всего 95 этажей

    В аренду предлагается стильный и современный офис в башне Федерация. Из окон открывается панорамный вид на Москва Сити и город Пространство, спроектированное для эффективной работы, обеспечено максимальное количество полезной площади для ваших задач.Стильный...
    • 27/95 эт.
    650 000 Р
    Агент
    +7 (917) Показать номер
    Посмотреть контакты

    Не нашли подходящего объявления?

    Оставьте заявку, и наши риэлторы подберут офис в районе Москвы

    (0)