Россия, Москва, 1-й Кожевнический переулок, 6с1
333 400 Р 4 460 $ или 3 790

Информация о помещении и здании

4
Этаж
4
Этажность
Развернуть
Агент
+7 (965) 289-71-55
Начать чат с агентом

Офис (200 м)

Лот №1084375 Предложение от Собственника Напишите нам в Ватсап, чтобы получить ПОДРОБНУЮ ПРЕЗЕНТАЦИЮ С ПЛАНИРОВКОЙ И ФОТОГРАФИЯМИ В аренду предлагается офисное помещение общей площадью 200 квадратных метров, расположенное в Бизнес-центре «Павелецкий . Объект находится на четвертом этаже здания.Помещение обладает качественной отделкой и высоким уровнем естественного освещения. Предусмотрена кабинетная планировка, оборудована кухня и санузел.Отличная удобная транспортная доступность: расстояние до станции метро «Павелецкая составляет 8 минут пешком. Стоимость аренды:уб/м2/год (уб в месяц) В цену включено: эксплуатационные расходы, НДС 22 . В цену не включено: затраты на электричество, коммунальные расходы, уборка.Чтобы получить ПОДРОБНУЮ ПРЕЗЕНТАЦИЮ С ПЛАНИРОВКОЙ И ФОТОГРАФИЯМИ, напишите нам в Ватсап. Высылаем в течение 15 минут по запросу Конт. лицо: Елена , доб. 267, ЛОТ №1084375

Читать полностью
    Позвонить Написать
    333 400 Р4 460 $ или 3 790
    Агент
    +7 (965) 289-71-55
    Начать чат с агентом
    Похожие предложения
    Офис (111 м) - Фото 1
    Офис (111 м) - Фото 2
    1-й этаж, всего 3 этажа

    АРЕНДА ОТ СОБСТВЕННИКАМосква, наб Садовническая, 79Звоните и пишите прямо сейчас — не упустите возможность арендовать идеальный офис для Вашего бизнеса в отличном месте Сотрудничаем с агентами.- Удобная транспортная доступность — всего несколько минут...
    • 1/3 эт.
    323 750 Р
    Агент
    +7 (903) Показать номер
    Посмотреть контакты
    Офис в Москва Летниковская ул., 16 (115 м) - Фото 1
    Офис в Москва Летниковская ул., 16 (115 м) - Фото 2
    3-й этаж, всего 8 этажей

    Аренда офиса 115 кв.м. Состояние отделки — готово к въезду.Договор аренды заключаете с собственником помещения. Без надбавки к итоговой стоимости аренды.В арендную ставку включено: - коммунальные услуги, включая электроэнергию,- эксплуат.расходы,- уборка...
    • 3/8 эт.
    335 417 Р
    Агент
    +7 (932) Показать номер
    Посмотреть контакты
    Офис (115 м) - Фото 1
    Офис (115 м) - Фото 2
    3-й этаж, всего 8 этажей

    Аренда офиса от собственника 115 кв.м. Состояние отделки — готово к въезду. Подписание договора аренды напрямую с владельцем помещения. Работаем без комиссии, процентов и надбавок. В арендную ставку включено: - коммунальные услуги, включая электроэнергию,...
    • 3/8 эт.
    335 417 Р
    Агент
    +7 (984) Показать номер
    Посмотреть контакты
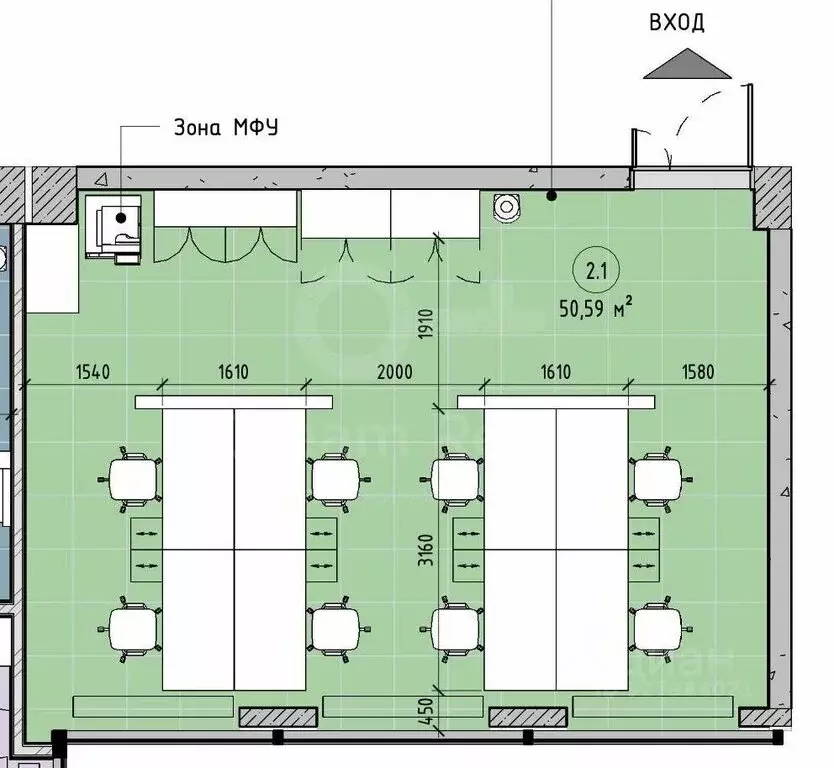
    Офис (50.6 м) - Фото 1
    Офис (50.6 м) - Фото 2
    7-й этаж, всего 9 этажей

    ID 8142. Готовое помещение в БЦ Таллер Вам останется только повесить вывеску, завезти свою мебель и можно начинать работать Весь ремонт выполнен согласно подробному дизайн-проекту, где особое внимание уделили вентиляции, кондиционированию и электрике...
    • 7/9 эт.
    338 000 Р
    Агент
    +7 (926) Показать номер
    Посмотреть контакты
    Офис в Москва Павелецкая наб., 2С5 (347 м) - Фото 1
    Офис в Москва Павелецкая наб., 2С5 (347 м) - Фото 2
    2-й этаж, всего 3 этажа

    Сдается помещение 347,1 м2 кабинетной планировкой, высокие потолки 4 метра. Подходит под фотостудию. БЦ Loft Ville (Лофт Виль) — современный бизнес-центр класса B+ в Москве, расположенный на первой линии Москвы-реки в ЮАО. Деловой квартал предлагает в...
    • 2/3 эт.
    324 655 Р
    Агент
    +7 (916) Показать номер
    Посмотреть контакты

    Не нашли подходящего объявления?

    Оставьте заявку, и наши риэлторы подберут офис в районе Москвы

    (0)