690 019 Р 9 220 $ или 7 850

Информация о помещении и здании

1
Этаж
9
Этажность
Развернуть
Агент
+7 (982) 087-71-57
Начать чат с агентом

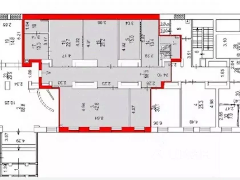
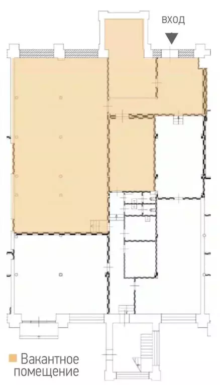
Офис в Москва Волгоградский просп., 9С1 (281 м)

АРЕНДА ОТ СОБСТВЕННИКАМосква, пр-кт Волгоградский, 9 стр 1Звоните и пишите прямо сейчас — не упустите возможность арендовать идеальный офис для Вашего бизнеса в отличном месте Сотрудничаем с агентами.- Удобная транспортная доступность — всего несколько минут от метро.- Современный и комфортабельный офис.- Готовые инженерные системы.- Парковка для сотрудников.- Развитая инфраструктура района.- Без скрытых платежей и комиссий Звоните прямо сейчас и Вы получите:РАСШИРЕННУЮ презентацию с актуальными фото и поэтажными планами — вышлем за 15 минут на Ваш WhatsApp Прямой договор с собственником — никаких посредников Полное сопровождение сделки на всех этапах лучшими специалистами Оперативную организацию просмотра Добавляйте объявление в Избранное, чтобы не потерять Самая обширная база актуальных объектов Работаем для Вас с 9:30 до 21:00.Звоните и записывайтесь на просмотр У нас есть то, что Вам нужно Номер объекта: 7361

Читать полностью
    Позвонить Написать
    690 019 Р9 220 $ или 7 850
    Агент
    +7 (982) 087-71-57
    Начать чат с агентом
    Похожие предложения
    Офис в Москва Волгоградский просп., 9С1 (281 м) - Фото 1
    Офис в Москва Волгоградский просп., 9С1 (281 м) - Фото 2
    1-й этаж, всего 1 этаж

    Сдается в прямую аренду офисный блок 281 кв.м с отдельным входом недалеко от метро. Состояние отделки — готово к въезду.Подписание договора аренды напрямую с владельцем помещения. Работаем без комиссии, процентов и надбавок.В арендную ставку включено:...
    • 1/1 эт.
    690 000 Р
    Агент
    +7 (932) Показать номер
    Посмотреть контакты
    Офис в Москва Петровский бул., 5С1 (230 м) - Фото 1
    2-й этаж, всего 4 этажа

    Особняк Петровский б-р, 5с1к1 класса CПлощадь: 230 м2Арендная ставка: 36 000,. за м2 в год включая НДССтоимость площади в месяц: 690 000,. включая НДССистема налогообложения: НДСГотовность: требуется отделкаЭтаж: 2Планировка: открытаяНаличие с/у: ,...
    • 2/4 эт.
    690 000 Р
    Агент
    +7 (911) Показать номер
    Посмотреть контакты
    Офис в Москва ул. Большая Якиманка, 21 (186 м) - Фото 1
    Офис в Москва ул. Большая Якиманка, 21 (186 м) - Фото 2
    5-й этаж, всего 5 этажей

    АРЕНДА ОТ СОБСТВЕННИКАМосква, ул Якиманка Б., 21Звоните и пишите прямо сейчас — не упустите возможность арендовать идеальный офис для Вашего бизнеса в отличном месте Сотрудничаем с агентами.- Удобная транспортная доступность — всего несколько минут от...
    • 5/5 эт.
    697 500 Р
    Агент
    +7 (982) Показать номер
    Посмотреть контакты
    Офис в Москва Ленинградский просп., 47 (216 м) - Фото 1
    Офис в Москва Ленинградский просп., 47 (216 м) - Фото 2
    1-й этаж, всего 8 этажей

    ВАЖНО: БЕЗ КОММИССИ ДЛЯ АРЕНДАТОРОВ, ПРЯМАЯ АРЕНДА ОТ СОБСТВЕННИКАБизнес-центр B+ класса Авион расположен по адресу Москва, САО, район Хорошёвский, Ленинградский просп., дом 47, в пешей доступности от метро Аэропорт (1 мин).Характеристики здания: 8 этажей,...
    • 1/8 эт.
    684 000 Р
    Агент
    +7 (916) Показать номер
    Посмотреть контакты
    Офис в Москва Вятская ул., 27К5 (296 м) - Фото 1
    Офис в Москва Вятская ул., 27К5 (296 м) - Фото 2
    1-й этаж, всего 3 этажа

    ВАЖНО: БЕЗ КОММИССИ ДЛЯ АРЕНДАТОРОВ, ПРЯМАЯ АРЕНДА ОТ СОБСТВЕННИКАОфисный парк B+ класса Фактория расположен по адресу Москва, САО, район Савёловский, Вятская ул., дом 27, в пешей доступности от метро Савёловская (6 мин).Характеристики здания: 3 этажа,...
    • 1/3 эт.
    692 147 Р
    Агент
    +7 (916) Показать номер
    Посмотреть контакты

    Не нашли подходящего объявления?

    Оставьте заявку, и наши риэлторы подберут офис в районе Москвы

    (0)