935 750 Р 12 390 $ или 10 600

Информация о помещении и здании

2
Этаж
8
Этажность
Развернуть
Агент
+7 (980) 417-92-31
Начать чат с агентом

Офис в Москва Мясницкая ул., 50 (197 м)

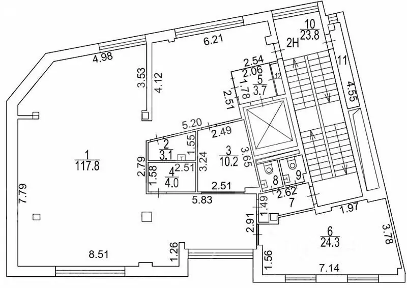
Предлагаем в аренду офис на 17 - 43 сотрудников в бизнес-центре Пульман .Разработаем планировку под вашу команду бесплатно с неограниченными правками.Площадь: 197 м.Состояние: готов к въезду с 01.06.2026.Арендная плата:/мес.Ставка:/м/год (включая эксплуатацию).Налогообложение: включая НДС.Коммунальные расходы: оплачиваются по факту.Тип аренды: прямая аренда.Этаж: 2 из 8.Помещение с функциональной смешанной планировкой. Собственный санузел, зона для кухни. Вентиляция: приточно-вытяжная.Кондиционирование: центральное.Охрана: круглосуточная охрана здания.Пожарная сигнализация: датчики пожаротушения.Звоните или пишите в чат - организуем просмотр в день обращения и направим презентацию по объекту.Бесплатно разработаем планировку под вашу команду, рассчитаем оптимальную рассадку и зонирование.*Количество рабочих мест рассчитано автоматически: от 4,5 до 12 м на человека.ID объекта: 7165

Читать полностью
    Позвонить Написать
    935 750 Р12 390 $ или 10 600
    Агент
    +7 (980) 417-92-31
    Начать чат с агентом
    Похожие предложения в Москве
    Офис (198 м) - Фото 1
    Офис (198 м) - Фото 2
    2-й этаж, всего 9 этажей

    Офис в бизнес-центре «Пульман — аренда 197,6 м, 2 этажАдрес: Москва, ЦАО, Красносельский район, ул. Мясницкая, д. 50.Метро: 2 минуты пешком от станции «Красные ворота .Планировка смешанная, позволяет эффективно зонировать пространство под ваши задачи....
    • 2/9 эт.
    938 600 Р
    Агент
    +7 (919) Показать номер
    Посмотреть контакты
    Офис (197 м) - Фото 1
    Офис (197 м) - Фото 2
    2-й этаж, всего 9 этажей

    АРЕНДА ОТ 11 МЕС. ТОЛЬКО ПОД ОФИС БЦ класса A «Пульман . Сдаётся под офис блок с санузлом на 2-м этаже площадью 197 кв.м. Стандартная офисная отделка. Центральное кондиционирование, вентиляция. Есть охрана.НДС включен. Лот № 249358. С риелторами не сотрудничаем...
    • 2/9 эт.
    935 750 Р
    Агент
    +7 (985) Показать номер
    Посмотреть контакты
    Офис (197 м) - Фото 1
    Офис (197 м) - Фото 2
    2-й этаж, всего 9 этажей

    АРЕНДА ОТ 11 МЕС. ТОЛЬКО ПОД ОФИС БЦ класса A «Пульман . Сдаётся под офис блок с санузлом на 2-м этаже площадью 197 кв.м. Стандартная офисная отделка. Центральное кондиционирование, вентиляция. Есть охрана.НДС включен. Лот № 249358. С риелторами не сотрудничаем...
    • 2/9 эт.
    935 750 Р
    Агент
    +7 (966) Показать номер
    Посмотреть контакты
    Офис (198 м) - Фото 1
    Офис (198 м) - Фото 2
    2-й этаж, всего 9 этажей

    Арт.. Бизнес-центр A класса Пульман расположен по адресу Москва, ЦАО, район Красносельский, Мясницкая ул., дом 50, в пешей доступности от метро Красные ворота (2 мин). Характеристики здания: 9 этажей, бизнес-центр расположен на первой линии, техническое...
    • 2/9 эт.
    940 500 Р
    Агент
    +7 (903) Показать номер
    Посмотреть контакты
    Офис в Москва Мясницкая ул., 50 (198 м) - Фото 1
    Офис в Москва Мясницкая ул., 50 (198 м) - Фото 2
    2-й этаж, всего 9 этажей

    ВАЖНО: БЕЗ КОММИССИ ДЛЯ АРЕНДАТОРОВ, ПРЯМАЯ АРЕНДА ОТ СОБСТВЕННИКАБизнес-центр A класса Пульман расположен по адресу Москва, ЦАО, район Красносельский, Мясницкая ул., дом 50, в пешей доступности от метро Красные ворота (2 мин).Характеристики здания: 9...
    • 2/9 эт.
    940 500 Р
    Агент
    +7 (916) Показать номер
    Посмотреть контакты

    Не нашли подходящего объявления?

    Оставьте заявку, и наши риэлторы подберут офис в районе Москвы

    (0)