241 000 Р 3 190 $ или 2 730

Информация о помещении и здании

1
Этаж
23
Этажность
Развернуть
Агент
+7 (980) 212-20-94
Начать чат с агентом

Офис в Москва Бумажный проезд, 19С3 (34 м)

Сдаётся в аренду офис в современном бизнес-центре класса А — Tower B, в составе элитного квартала STONE TOWERS.Ключевые преимущества: Свободный доступ 24/7 для сотрудников и гостей. Идеальное расположение: Центральное лобби, 1-й этаж. Вид: Витринное остекление с видом в лобби. Высота потолков: 4,4 м — простор и свет. Отделка: свежий ремонт Вывеска: Возможность размещения.Планировка и площадь: Площадь — 34 м. Открытая планировка для эффективной организации пространства.Отличная транспортная доступность (Белорусский район): 4 минуты пешком до м. Савёловская. 12 минут пешком до м. Белорусская. 15 минут на авто до Москва-Сити. Удобный выезд на ТТК и Ленинградский проспект и Дмитровское шоссе. Инфраструктура бизнес-квартала: Двухуровневый подземный паркинг и наземный гостевой. Собственный парк 5000 м. Столовая для резидентов. Торговая галерея (принцип сухие ноги).Идеальный вариант для респектабельной компании, ориентированной на статус, комфорт и доступность.

Читать полностью
    Позвонить Написать
    241 000 Р3 190 $ или 2 730
    Агент
    +7 (980) 212-20-94
    Начать чат с агентом
    Похожие предложения
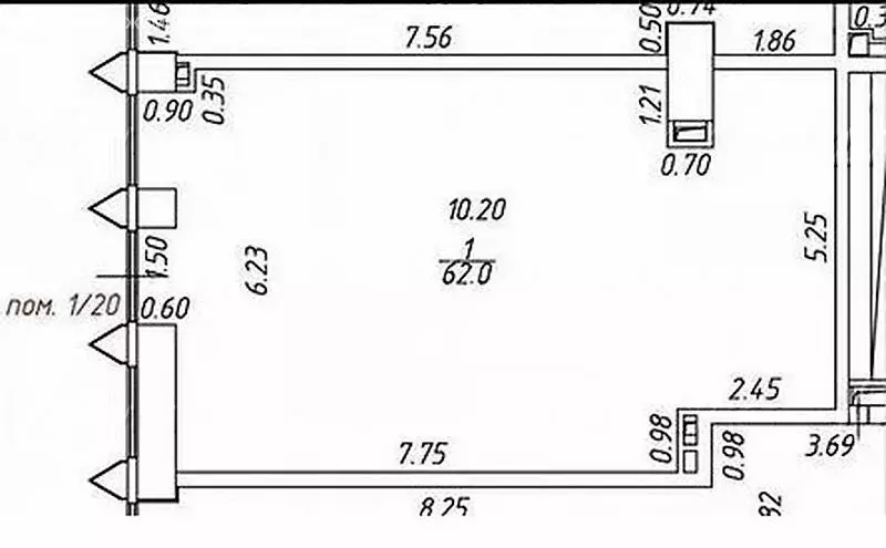
    Офис (62 м) - Фото 1
    Офис (62 м) - Фото 2
    1-й этаж, всего 9 этажей

    АРЕНДА ОТ 11 МЕС. ТОЛЬКО ПОД ОФИС Бизнес-центр. Сдаётся под офис блок с санузлом на первом этаже площадью 62 кв.м с отдельным входом с улицы. Новое помещение под чистовую отделку (Shell Core). Электрическая мощность 15 кВт.УСН. Лот № 248909. С риелторами...
    • 1/9 эт.
    231 999 Р
    Агент
    +7 (495) Показать номер
    Посмотреть контакты
    Офис в Москва Каланчевская ул., 11С3 (128 м) - Фото 1
    Офис в Москва Каланчевская ул., 11С3 (128 м) - Фото 2
    2-й этаж, всего 4 этажа

    Сдается в аренду офис 128 кв.м недалеко от метро.Подписание договора аренды напрямую с владельцем помещения. Работаем без комиссии, процентов и надбавок.В арендную ставку включено: - коммунальные услуги, включая электроэнергию,- эксплуат.расходы,- уборка...
    • 2/4 эт.
    250 000 Р
    Агент
    +7 (932) Показать номер
    Посмотреть контакты
    Офис в Москва Огородный проезд, 16/1с3 (72 м) - Фото 1
    Офис в Москва Огородный проезд, 16/1с3 (72 м) - Фото 2
    5-й этаж, всего 15 этажей

    Офис с красивым ремонтом. Кабинетная планировка, 3 кабинета с кондиционером. Большая переговорная. Зона ожидания и ресепшен.
    • 5/15 эт.
    250 000 Р
    Агент
    +7 (923) Показать номер
    Посмотреть контакты
    Офис в Москва Северный ао, ул. Нижняя, 14с7 (99 м) - Фото 1
    Офис в Москва Северный ао, ул. Нижняя, 14с7 (99 м) - Фото 2
    2-й этаж, всего 3 этажа

    Предлагаем в аренду помещение на 2-м этаже 3-х этажного корпуса общей площадью 98,6 м2. Помещение свободно, готово к въезду. Круглосуточный режим работы комплекса. Юридический адрес временно не предоставляется. Электричество, вывоз бытового мусора...
    • 2/3 эт.
    249 000 Р
    Агент
    +7 (985) Показать номер
    Посмотреть контакты
    Офис в Москва Северный ао, ул. Нижняя, 14с1 (99 м) - Фото 1
    Офис в Москва Северный ао, ул. Нижняя, 14с1 (99 м) - Фото 2
    1-й этаж, всего 2 этажа

    Предлагаю в аренду помещение на 1-м этаже 2-х этажного корпуса общей площадью 98,6 м2. Планировка : зал + кабинет, свой сан узел. Помещение свободно, готово к въезду. Круглосуточный режим работы комплекса. Юридический адрес временно не предоставляется....
    • 1/2 эт.
    250 000 Р
    Агент
    +7 (985) Показать номер
    Посмотреть контакты

    Не нашли подходящего объявления?

    Оставьте заявку, и наши риэлторы подберут офис в районе Москвы

    (0)