Россия, Москва, МКАД, 69-й километр
282 986 Р 3 780 $ или 3 230

Информация о помещении и здании

3
Этаж
Развернуть
Агент
+7 (903) 143-18-29
Начать чат с агентом

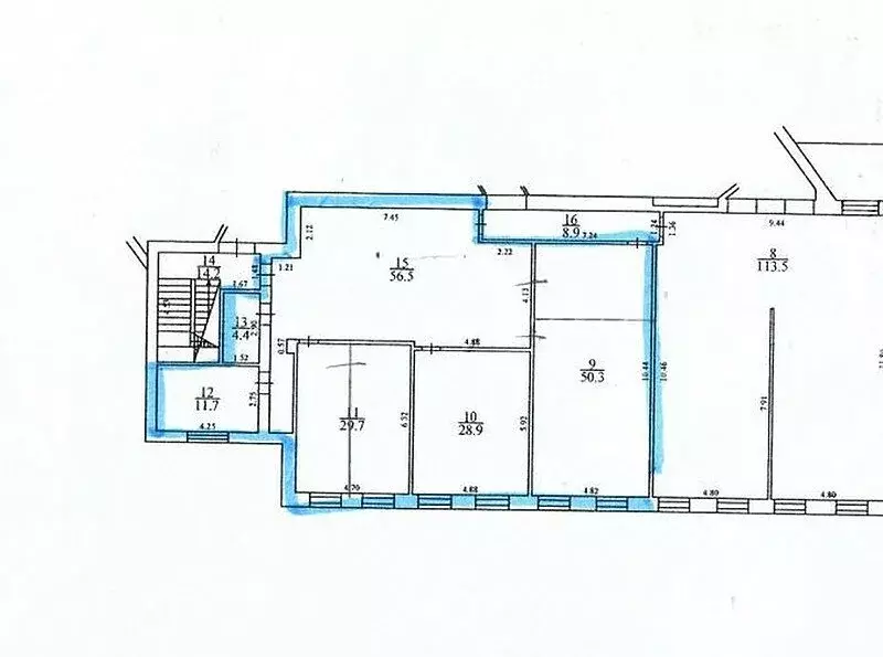
Офис (415 м)

АРЕНДА ОТ СОБСТВЕННИКАМосква, 69-й км МКАД, стр 31Звоните и пишите прямо сейчас — не упустите возможность арендовать идеальный офис для Вашего бизнеса в отличном месте Сотрудничаем с агентами.- Удобная транспортная доступность — всего несколько минут от метро.- Современный и комфортабельный офис.- Готовые инженерные системы.- Парковка для сотрудников.- Развитая инфраструктура района.- Без скрытых платежей и комиссий Звоните прямо сейчас и Вы получите:РАСШИРЕННУЮ презентацию с актуальными фото и поэтажными планами — вышлем за 15 минут на Ваш WhatsApp Прямой договор с собственником — никаких посредников Полное сопровождение сделки на всех этапах лучшими специалистами Оперативную организацию просмотра Добавляйте объявление в Избранное, чтобы не потерять Самая обширная база актуальных объектов Работаем для Вас с 9:30 до 21:00.Звоните и записывайтесь на просмотр У нас есть то, что Вам нужно Номер объекта: 4791

Читать полностью
    Позвонить Написать
    282 986 Р3 780 $ или 3 230
    Агент
    +7 (903) 143-18-29
    Начать чат с агентом
    Похожие предложения
    Офис (90 м) - Фото 1
    Офис (90 м) - Фото 2
    5-й этаж, всего 7 этажей

    Лот № 410338. БЕЗ КОМИССИИ Сдается в аренду офис площадью 89,7 м2 на 5 этаже в бизнес-центре класса B+ Шлюзовая 8 с1 , расположенном в 7 минутах пешком от метро Павелецкая. Планировка: опен спейс с высокими потолками 7,5 м и окнами вверху, хорошим освещением...
    • 5/7 эт.
    276 600 Р
    Агент
    +7 (909) Показать номер
    Посмотреть контакты
    Офис (23 м) - Фото 1
    Офис (23 м) - Фото 2
    4-й этаж, всего 7 этажей

    АРЕНДА ОТ 11 МЕС. ТОЛЬКО ПОД ОФИС БЦ класса B+ «Авион , первая линия домов. Сдаётся под офис комната на 4-м этаже площадью 23 кв.м. Стандартная офисная отделка. Есть охрана. Лот № 249404. С риелторами не сотрудничаем
    • 4/7 эт.
    271 935 Р
    Агент
    +7 (966) Показать номер
    Посмотреть контакты
    Офис в Москва проезд Серебрякова, 2к1 (180 м) - Фото 1
    Офис в Москва проезд Серебрякова, 2к1 (180 м) - Фото 2
    3-й этаж, всего 8 этажей

    Сдается в аренду офис 180 кв.м недалеко от метро.Договор аренды заключаете с собственником помещения. Без надбавки к итоговой стоимости аренды.В арендную ставку не входит: коммунальные услуги, электроэнергия, эксплуат.расходы, уборка офиса, уборка общих...
    • 3/8 эт.
    270 000 Р
    Агент
    +7 (932) Показать номер
    Посмотреть контакты
    Офис (200 м) - Фото 1
    Офис (200 м) - Фото 2
    3-й этаж, всего 5 этажей

    АРЕНДА ОТ 11 МЕС. ТОЛЬКО ПОД ОФИС Бизнес-центр класса B. Сдаётся под офис блок (5 кабинетов, с/у) на 3-м этаже площадью 200 кв.м. Стандартная офисная отделка. Есть охрана.НДС и эксплуатационные расходы включены. Лот № 33833. С риелторами не сотрудничаем...
    • 3/5 эт.
    283 333 Р
    Агент
    +7 (966) Показать номер
    Посмотреть контакты
    Офис (96 м) - Фото 1
    Офис (96 м) - Фото 2
    5-й этаж, всего 7 этажей

    Арт.. Сдается в аренду помещение 96 кв.м. по адресу: проспект Вернадского, 37к2, БЦ Форум Сити. БЦ Форум Сити: Расположение: прямо на выходе в метро 1 минута от метро «проспект Вернадского . Первая линия Вернадского проспекта, высокая видимость и престижная...
    • 5/7 эт.
    280 000 Р
    Агент
    +7 (916) Показать номер
    Посмотреть контакты

    Не нашли подходящего объявления?

    Оставьте заявку, и наши риэлторы подберут офис в районе Москвы

    (0)