Россия, Москва, Большая Татарская улица, 35с3
433 875 Р 5 740 $ или 4 910

Информация о помещении и здании

11
Этаж
12
Этажность
Развернуть
Агент
+7 (965) 289-71-55
Начать чат с агентом

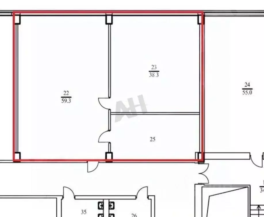
Офис (116 м)

Лот №1083425 Предложение от Собственника Напишите нам в Ватсап, чтобы получить ПОДРОБНУЮ ПРЕЗЕНТАЦИЮ С ПЛАНИРОВКОЙ И ФОТОГРАФИЯМИ Помещение кабинетного типа расположено на 11 этаже 12-этажного здания. Офис функционален и выполнен в современной отделке, что создает отличные условия для продуктивной работы.Бизнес-центр обеспечивает комплекс служб для комфорта и безопасности. На территории организованы пропускной режим с КПП, круглосуточное административное дежурство и система видеонаблюдения. Установлены современные системы пожарной сигнализации, приточно-вытяжной вентиляции и кондиционирования. Предоставляются клининговые услуги по уборке офисов и мест общего пользования, а также вывоз мусора и ТБО. Телекоммуникационные услуги, включая цифровую телефонию и высокоскоростной интернет, поставляются специализированными компаниями. На территории бизнес-центра доступна парковка.В ежемесячную стоимость аренды включены коммунальные услуги, техническое обслуживание здания и уборка помещений общего пользования. Оплачиваются отдельно расходы на интернет и телефонию, парковочное место и электроэнергию. Стоимость аренды:уб/м2/год (уб в месяц) В цену включено: эксплуатационные расходы, НДС 22 . В цену не включено: затраты на электричество, коммунальные расходы.Чтобы получить ПОДРОБНУЮ ПРЕЗЕНТАЦИЮ С ПЛАНИРОВКОЙ И ФОТОГРАФИЯМИ, напишите нам в Ватсап. Высылаем в течение 15 минут по запросу Конт. лицо: Ада , доб. 264, ЛОТ №1083425

Читать полностью
    Позвонить Написать
    433 875 Р5 740 $ или 4 910
    Агент
    +7 (965) 289-71-55
    Начать чат с агентом
    Похожие предложения
    Офис (116 м) - Фото 1
    Офис (116 м) - Фото 2
    11-й этаж, всего 12 этажей

    Лот №1083425 Предложение от Собственника Напишите нам в Ватсап, чтобы получить ПОДРОБНУЮ ПРЕЗЕНТАЦИЮ С ПЛАНИРОВКОЙ И ФОТОГРАФИЯМИ Помещение кабинетного типа расположено на 11 этаже 12-этажного здания. Офис функционален и выполнен в современной отделке,...
    • 11/12 эт.
    433 875 Р
    Агент
    +7 (931) Показать номер
    Посмотреть контакты
    Офис в Москва Большая Татарская ул., 35С3 (116 м) - Фото 1
    Офис в Москва Большая Татарская ул., 35С3 (116 м) - Фото 2
    11-й этаж, всего 12 этажей

    ЛотПредложение от Собственника Помещение кабинетного типа расположено на 11 этаже 12-этажного здания. Офис функционален и выполнен в современной отделке, что создает отличные условия для продуктивной работы.Бизнес-центр обеспечивает комплекс служб для...
    • 11/12 эт.
    433 875 Р
    Агент
    +7 (968) Показать номер
    Посмотреть контакты
    Офис в Москва наб. Пресненская, 12 (100 м) - Фото 1
    Офис в Москва наб. Пресненская, 12 (100 м) - Фото 2
    31-й этаж, всего 95 этажей

    В аренду предлагается стильный и современный офис в башне Федерация. Из окон открывается панорамный вид на Москва Сити и город Пространство, спроектированное для эффективной работы, обеспечено максимальное количество полезной площади для ваших задач.Стильный...
    • 31/95 эт.
    420 000 Р
    Агент
    +7 (917) Показать номер
    Посмотреть контакты
    Офис в Москва наб. Пресненская, 12 (100 м) - Фото 1
    Офис в Москва наб. Пресненская, 12 (100 м) - Фото 2
    71-й этаж, всего 95 этажей

    В аренду предлагается стильный и современный офис в башне Федерация. Из окон открывается панорамный вид на Москва Сити и город Пространство, спроектированное для эффективной работы, обеспечено максимальное количество полезной площади для ваших задач.Стильный...
    • 71/95 эт.
    420 000 Р
    Агент
    +7 (917) Показать номер
    Посмотреть контакты
    Офис в Москва Большая Очаковская ул., 47АС1 (330 м) - Фото 1
    Офис в Москва Большая Очаковская ул., 47АС1 (330 м) - Фото 2
    1-й этаж, всего 9 этажей

    Бизнес-центр Очаково предлагает в аренду блок, раньше использовался как банк. На 1 этаже с отдельным, свободным входом с улицыи круглосуточным доступом. Планировка - кабинетная, кассы. В пешей доступности от м. Озерная (5 мин. пешком от метро). Фасад...
    • 1/9 эт.
    424 994 Р
    Агент
    +7 (916) Показать номер
    Посмотреть контакты

    Не нашли подходящего объявления?

    Оставьте заявку, и наши риэлторы подберут офис в районе Москвы

    (0)