1 372 667 Р 18 240 $ или 15 530

Информация о помещении и здании

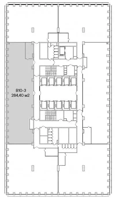
10
Этаж
20
Этажность
Развернуть
Агент
+7 (916) 602-14-84
Начать чат с агентом

Офис в Москва Бумажный проезд, 19С1 (284 м)

Аренда готовых офисных пространств в бизнес-центре Tower B, в составе премиального офисного квартала STONE TOWERS в Белорусском деловом районе. Бизнес-центр рассчитан на 11 000 сотрудников.Характеристика помещения:Этаж: 10/23 (Башня В)Планировка: ОткрытаяОтделка: white-box плюс Полы и стены полностью готовыВсе коммуникации проведены (вентиляция, электричество, скуд)Офис имеет собственную систему отопленияВ офисе выделена зона кухни, отдельное изолированное пространствоМокрая точка: даНа этаже: 3 с/у и 4-й для людей с ограниченными возможностямиВысота потолков: 3,65 мГлубина помещения: до 10 мОкна в пол с естественным проветриваниемПарковка: Подземная/Наземная ГостеваяРасположение:Офисный квартал отличают престижное расположение в Белорусском деловом районе и высокая транспортная доступность:- пешая доступность (4 мин) до ТПУ Савеловская;- пешая доступность (12 мин) до ТПУ Белорусская;- удобный доступ до Москва-Сити (15 мин);- удобный выезд на ТТК и Ленинградский проспект;- близость аэропорта Шереметьево (45 мин)При необходимости окажем помощь с ремонтом под арендатора , согласованием проекта . Арендные каникулы предоставляются . Оперативные показы

Читать полностью
    Позвонить Написать
    1 372 667 Р18 240 $ или 15 530
    Агент
    +7 (916) 602-14-84
    Начать чат с агентом
    Похожие предложения
    Офис в Москва Бумажный проезд, 19С3 (249 м) - Фото 1
    Офис в Москва Бумажный проезд, 19С3 (249 м) - Фото 2
    14-й этаж, всего 23 этажа

    Сдается в аренду офисное помещение на 14 этаже в бизнес-центре Стоун Тауэрс (Stone Towers, башня В), А класса, который находится по адресу: Бумажный проезд, д. 19, стр. 2. Без комиссии для Арендатора ЛОКАЦИЯ:- Пешая доступность от станций метро Савеловская,...
    • 14/23 эт.
    1 454 000 Р
    Агент
    +7 (989) Показать номер
    Посмотреть контакты
    Офис в Москва Бумажный проезд, 19С4 (284 м) - Фото 1
    Офис в Москва Бумажный проезд, 19С4 (284 м) - Фото 2
    10-й этаж, всего 23 этажа

    Аренда готовых офисных пространств в бизнес-центре Tower B, в составе премиального офисного квартала STONE TOWERS в Белорусском деловом районе. Бизнес-центр рассчитан на 11 000 сотрудников.Характеристика помещения:Этаж: 10/23 (Башня В)Площадь: 284.4 м2Планировка:...
    • 10/23 эт.
    1 303 500 Р
    Агент
    +7 (933) Показать номер
    Посмотреть контакты
    Офис в Москва Новая Басманная ул., 9С4 (546 м) - Фото 1
    Офис в Москва Новая Басманная ул., 9С4 (546 м) - Фото 2
    1-й этаж, всего 2 этажа

    - Прямая аренда от собственника- Обособленное, 2-х этажное здание с 3 независимыми входами (доступ 24/7)- До 10 минут ходьбы от 2-х станций метро (Красные Ворота и Комсомольская)- Предоставим парковочные места на охраняемой территории - Практичная планировка...
    • 1/2 эт.
    1 500 000 Р
    Агент
    +7 (916) Показать номер
    Посмотреть контакты
    Офис в Москва ул. Большая Дмитровка, 7/5С1 (265 м) - Фото 1
    Офис в Москва ул. Большая Дмитровка, 7/5С1 (265 м) - Фото 2
    4-й этаж, всего 7 этажей

    Сдается в аренду офисное помещение на 4 этаже в жилом доме В класса, который находится по адресу: ул. Большая Дмитровка, д. 7/5, стр. 1. Без комиссии для Арендатора ЛОКАЦИЯ: Пешая доступность от м. Театральная, Охотный ряд, Кузнецкий мост. Рядом расположены...
    • 4/7 эт.
    1 437 583 Р
    Агент
    +7 (989) Показать номер
    Посмотреть контакты
    Офис (509.4 м) - Фото 1
    Офис (509.4 м) - Фото 2
    2-й этаж, всего 7 этажей

    Сдается от собственника офис 509.4 кв.м. Состояние отделки — готово к въезду. Договор аренды заключаете с собственником помещения. Без надбавки к итоговой стоимости аренды. В арендную ставку включено: - эксплуат.расходы, - уборка общих мест, - вывоз...
    • 2/7 эт.
    1 416 425 Р
    Агент
    +7 (926) Показать номер
    Посмотреть контакты

    Не нашли подходящего объявления?

    Оставьте заявку, и наши риэлторы подберут офис в районе Москвы

    (0)