46 522 Р 624 $ или 530

Информация о помещении и здании

6
Этаж
13
Этажность
Развернуть
Агент
+7 (986) 254-08-52
Начать чат с агентом

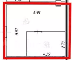
Офис в Москва ул. Академика Королева, 12 (35 м)

В Телецентре Останкино : Ваш бизнес среди звёздПредлагается в аренду помещение в телецентре Останкино общей площадью 35,3 кв.м, готовое к заезду. В зависимости от его текущего состояния будет проведён косметический или капитальный ремонт. Ваш бизнес будет процветать с первого дня.Высота потолков: 3 м.Коммуникации: приточная вентиляция, кондиционирование, автономное отопление.Особенности объекта: гибкая конфигурация офисных блоков, собственные зоны парковки, пропускная система и эксплуатация 24/7, автоматическое пожаротушение, собственный дата-центр, приточно-вытяжная вентиляция, мультизональные системы кондиционирования, точки питания, магазины, зоны рекреации, банки, службы быта и сервисов, лифты с системой интеллектуального распределения пассажиропотоков, зарядка электромобилей.Безопасность: Росгвардия + охранное предприятие.Транспортная доступность: 10 минут на машине от ТТК, 10 минут пешком от метро Бутырская , 5 минут пешком от МЦД-3 Останкино .Арендная ставка: за 1 кв.м в год (НДС вкл.).Эксплуатационные платежи не входят в стоимость аренды, рассчитываются отдельно исходя из направления бизнеса арендатора.Коммунальные услуги оплачиваются отдельно.Минимальный срок аренды: 60 месяцев.Предоставляется юридический адрес.. ID помещения 150499

Читать полностью
    Позвонить Написать
    46 522 Р624 $ или 530
    Агент
    +7 (986) 254-08-52
    Начать чат с агентом
    Похожие предложения
    Офис в Москва ул. Академика Королева, 12 (36 м) - Фото 1
    Офис в Москва ул. Академика Королева, 12 (36 м) - Фото 2
    6-й этаж, всего 13 этажей

    В Телецентре Останкино : Ваш бизнес среди звёздПредлагается в аренду помещение в телецентре Останкино общей площадью 35,9 кв.м, готовое к заезду. В зависимости от его текущего состояния будет проведён косметический или капитальный ремонт. Ваш бизнес...
    • 6/13 эт.
    47 313 Р
    Агент
    +7 (986) Показать номер
    Посмотреть контакты
    Офис в Москва ул. Академика Королева, 12 (36 м) - Фото 1
    Офис в Москва ул. Академика Королева, 12 (36 м) - Фото 2
    6-й этаж, всего 13 этажей

    В Телецентре Останкино : Ваш бизнес среди звёздПредлагается в аренду помещение в телецентре Останкино общей площадью 36,2 кв.м, готовое к заезду. В зависимости от его текущего состояния будет проведён косметический или капитальный ремонт. Ваш бизнес...
    • 6/13 эт.
    47 709 Р
    Агент
    +7 (986) Показать номер
    Посмотреть контакты
    Аренда офиса, ул. Василисы Кожиной - Фото 1
    Аренда офиса, ул. Василисы Кожиной - Фото 2
    Аренда офиса, ул. Василисы Кожиной - Фото 3
    Аренда офиса, ул. Василисы Кожиной - Фото 4
    Аренда офиса, ул. Василисы Кожиной - Фото 5
    Аренда офиса, ул. Василисы Кожиной - Фото 6
    Аренда офиса, ул. Василисы Кожиной - Фото 7
    Аренда офиса, ул. Василисы Кожиной - Фото 8
    Аренда офиса, ул. Василисы Кожиной - Фото 9
    Аренда офиса, ул. Василисы Кожиной - Фото 10
    Аренда офиса, ул. Василисы Кожиной - Фото 11
    Аренда офиса, ул. Василисы Кожиной - Фото 12
    Аренда офиса, ул. Василисы Кожиной - Фото 13
    Аренда офиса, ул. Василисы Кожиной - Фото 14
    Аренда офиса, ул. Василисы Кожиной - Фото 15
    Аренда офиса, ул. Василисы Кожиной - Фото 16
    Аренда офиса, ул. Василисы Кожиной - Фото 17
    Аренда офиса, ул. Василисы Кожиной - Фото 18
    Аренда офиса, ул. Василисы Кожиной - Фото 19
    Аренда офиса, ул. Василисы Кожиной - Фото 20
    общая площадь офисного здания 100м², реализуемая площадь 100м², 24-й этаж, всего 28 этажей

    Арт. ЖК Match Point (Матч Поинт) бизнес-класса. Новый офис 100 кв. м. из трех помещений ( кабинет, переговорная, рабочая зона) и кухни. Два полноценных санузла (душевая и ванная), кондиционеры в каждом помещении. Панорамный вид из окна на Москву. Первая...
    • 100 м²
    • 24/28 эт.
    • 3 пом.
    • интернет
    390 000 Р /в месяц
    Агент
    +7 (499) Показать номер
    Агентство
    МИЭЛЬ
    Посмотреть контакты
    Аренда офиса 8632.6 м2 - Фото 1
    Аренда офиса 8632.6 м2 - Фото 2
    Аренда офиса 8632.6 м2 - Фото 3
    Аренда офиса 8632.6 м2 - Фото 4
    Аренда офиса 8632.6 м2 - Фото 5
    Аренда офиса 8632.6 м2 - Фото 6
    Аренда офиса 8632.6 м2 - Фото 7
    Аренда офиса 8632.6 м2 - Фото 8
    Аренда офиса 8632.6 м2 - Фото 9
    Аренда офиса 8632.6 м2 - Фото 10
    Аренда офиса 8632.6 м2 - Фото 11
    Аренда офиса 8632.6 м2 - Фото 12
    Аренда офиса 8632.6 м2 - Фото 13
    Аренда офиса 8632.6 м2 - Фото 14
    Аренда офиса 8632.6 м2 - Фото 15
    Аренда офиса 8632.6 м2 - Фото 16
    Аренда офиса 8632.6 м2 - Фото 17
    Аренда офиса 8632.6 м2 - Фото 18
    Аренда офиса 8632.6 м2 - Фото 19
    Аренда офиса 8632.6 м2 - Фото 20
    реализуемая площадь 8632.6м², 7-й этаж, всего 24 этажа, смешанная планировка

    Аренда (офисов/ крупных офисных блоков) в новом БЦ Сидней Сити, всего в 5 минутах от ММДЦ Москва-сити! В аренду предлагаются офисы без отделки напрямую от ФСК БЕЗ КОМИССИИ! ! БЦ Сидней Сити - это новый Бизнес-центр класса "А" всего в 5 минутах от ММДЦ...
    • 8 632.6 м²
    • A+
    • 7/24 эт.
    33 423 300 Р /в месяц
    Агент
    +7 (495) Показать номер
    Посмотреть контакты
    Аренда офиса 11083.1 м2 - Фото 1
    Аренда офиса 11083.1 м2 - Фото 2
    Аренда офиса 11083.1 м2 - Фото 3
    Аренда офиса 11083.1 м2 - Фото 4
    Аренда офиса 11083.1 м2 - Фото 5
    Аренда офиса 11083.1 м2 - Фото 6
    Аренда офиса 11083.1 м2 - Фото 7
    Аренда офиса 11083.1 м2 - Фото 8
    Аренда офиса 11083.1 м2 - Фото 9
    Аренда офиса 11083.1 м2 - Фото 10
    Аренда офиса 11083.1 м2 - Фото 11
    Аренда офиса 11083.1 м2 - Фото 12
    Аренда офиса 11083.1 м2 - Фото 13
    Аренда офиса 11083.1 м2 - Фото 14
    Аренда офиса 11083.1 м2 - Фото 15
    Аренда офиса 11083.1 м2 - Фото 16
    Аренда офиса 11083.1 м2 - Фото 17
    Аренда офиса 11083.1 м2 - Фото 18
    Аренда офиса 11083.1 м2 - Фото 19
    Аренда офиса 11083.1 м2 - Фото 20
    реализуемая площадь 11083.1м², 8-й этаж, всего 24 этажа, смешанная планировка

    Аренда (офисов/ крупных офисных блоков) в новом БЦ Сидней Сити, всего в 5 минутах от ММДЦ Москва-сити! В аренду предлагаются офисы без отделки напрямую от ФСК БЕЗ КОМИССИИ! ! БЦ Сидней Сити - это новый Бизнес-центр класса "А" всего в 5 минутах от ММДЦ...
    • 11 083.1 м²
    • A+
    • 8/24 эт.
    43 960 200 Р /в месяц
    Агент
    +7 (495) Показать номер
    Посмотреть контакты

    Не нашли подходящего объявления?

    Оставьте заявку, и наши риэлторы подберут офис в районе Москвы

    (0)