Россия, Москва, ул. Большая Полянка, 2С2
1 915 660 Р 25 540 $ или 21 780

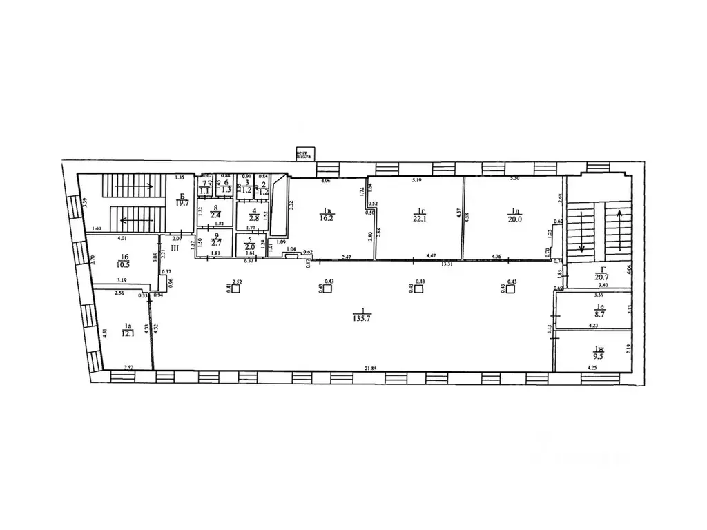
Информация о помещении и здании

3
Этаж
4
Этажность
Развернуть
Агент
+7 (915) 266-41-29
Начать чат с агентом

Офис в Москва ул. Большая Полянка, 2С2 (290 м)

Офисное помещение 289.9 кв. м в бизнес-центре Большая Полянка 2с2 .Округ: Центральный (ЦАО). Район: Якиманка. Ближайшие станции метро: Третьяковская, Полянка. Характеристики:- Класс: B+; - Арендопригодная площадь: 1800; - Код налоговой: 06; - Высота потолков: 3 м; - Интернет-провайдеры: Ростелеком. Арендная ставка: 79 299./кв. м в год. Финансовые условия: - В стоимость включено: OPEX, НДС; - Оплачивается отдельно: Интернет, Коммунальные услуги, Телефония, Уборка, Электроэнергия; - Налог: Включая НДС. Без комиссии и скрытых платежей для арендатора.Готовы оперативно организовать просмотр в удобное время, предоставить PDF-презентацию и план. Точное местоположение объекта можно найти по данным координатам: 55.741541,37.615461 ID = c_1791291

Читать полностью
    Позвонить Написать
    1 915 660 Р25 540 $ или 21 780
    Агент
    +7 (915) 266-41-29
    Начать чат с агентом
    Похожие предложения
    Офис в Москва Холодильный пер., 3 (423 м) - Фото 1
    Офис в Москва Холодильный пер., 3 (423 м) - Фото 2
    1-й этаж, всего 4 этажа

    Лот: 53368pd. Аренда офисного помещения с отдельной входной группой. Высота потолка 5 метров, светлый блок, качественный ремонт в стиле лофт, большие окна. Рассадка на 60+ сотрудников, помещение частично меблировано. Пешая доступность от метро Тульская....
    • 1/4 эт.
    1 938 750 Р
    Агент
    +7 (988) Показать номер
    Посмотреть контакты
    Офис в Москва бул. Энтузиастов, 2 (393 м) - Фото 1
    Офис в Москва бул. Энтузиастов, 2 (393 м) - Фото 2
    7-й этаж, всего 26 этажей

    Сдается в аренду офисное помещение на 7 этаже в БЦ Голден Гейт, А класса, который находится по адресу: бульвар Энтузиастов, д. 2. Без комиссии для Арендатора ЛОКАЦИЯ: Шаговая доступность от станций метро Площадь Ильича, Римская, Москва Товарная. Удобный...
    • 7/26 эт.
    1 801 250 Р
    Агент
    +7 (989) Показать номер
    Посмотреть контакты
    Офис в Москва Октябрьская ул., 80С3 (761 м) - Фото 1
    Офис в Москва Октябрьская ул., 80С3 (761 м) - Фото 2
    1-й этаж, всего 3 этажа

    ЛотПредложение от Собственника Аренда отдельно стоящего здание, 5 минут от метро и БКЛ Марьина роща:Общая площадь 761 м2Кабинетная планировка. (Возможна перепланировка)Потолок h= 3 метраВозможна аренда по этажамЕсть парковка, зона разгрузки/погрузки.Арендные...
    • 1/3 эт.
    1 902 500 Р
    Агент
    +7 (986) Показать номер
    Посмотреть контакты
    Офис в Москва Новодмитровская ул., 2Б (414 м) - Фото 1
    Офис в Москва Новодмитровская ул., 2Б (414 м) - Фото 2
    1-й этаж, всего 8 этажей

    Деловой центр ДЦ Дмитровский класса B+Площадь: 414,1 м2Арендная ставка: 55 000,. за м2 в год включая НДССтоимость площади в месяц:,. включая НДССистема налогообложения: НДСГотовность: готово к въездуЭтаж: 1Планировка: смешаннаяНаличие с/у: , ВнутриСтатус:...
    • 1/8 эт.
    1 897 958 Р
    Агент
    +7 (911) Показать номер
    Посмотреть контакты
    Офис в Москва бул. Энтузиастов, 2 (393 м) - Фото 1
    Офис в Москва бул. Энтузиастов, 2 (393 м) - Фото 2
    15-й этаж, всего 26 этажей

    Сдается в аренду офисное помещение на 15 этаже в БЦ Голден Гейт, А класса, который находится по адресу: бульвар Энтузиастов, д. 2. Без комиссии для Арендатора ЛОКАЦИЯ: Шаговая доступность от станций метро Площадь Ильича, Римская, Москва Товарная. Удобный...
    • 15/26 эт.
    1 801 250 Р
    Агент
    +7 (989) Показать номер
    Посмотреть контакты

    Не нашли подходящего объявления?

    Оставьте заявку, и наши риэлторы подберут офис в районе Москвы

    (0)