Россия, Москва, Воронцовский парк тер., 4
2 950 000 Р 39 210 $ или 33 380

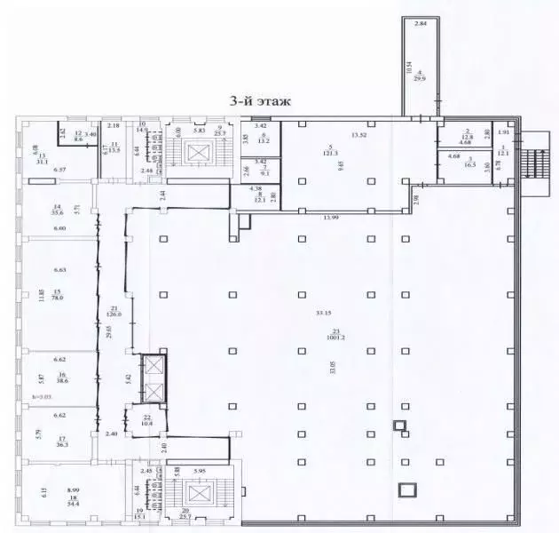
Информация о помещении и здании

1
Этаж
3
Этажность
Развернуть
Агент
+7 (989) 599-80-12
Начать чат с агентом

Офис в Москва Воронцовский парк тер., 4 (1000 м)

В аренду предлагается отдельно стоящее здание на 1 линии. Объект располагается со стороны перекрестка улиц Воронцовские пруды/Архитектора Власова. Площадь здания составляет 1000 кв.м. Объект имеет 3 этажа с коридорно-кабинетной планировкой, которую можно преобразовать под нужды ведения любого бизнеса. Высокие потолки, все коммуникации, выполнен качественный евроремонт помещений и фасада, установлены новые кондиционеры, мощность электроэнергии 150кВт На территории здания имеется 7 машиномест, доступ к помещению 24/7.Удобный подъезд к объекту со стороны ул. Профсоюзной и Ленинского проспекта. Хорошая видимость объекта. В пешей доступности 4 станции метро, в 100 метрах от здания остановка общественного транспорта. Напротив располагается ЖК бизнес класса Афи Парк Воронцовский. Интенсивный пешеходный трафик Звоните, что бы записаться на просмотр помещения

Читать полностью
    Позвонить Написать
    2 950 000 Р39 210 $ или 33 380
    Агент
    +7 (989) 599-80-12
    Начать чат с агентом
    Похожие предложения
    Офис в Москва Дмитровское ш., 98 (1742 м) - Фото 1
    Офис в Москва Дмитровское ш., 98 (1742 м) - Фото 2
    3-й этаж, всего 7 этажей

    ВАЖНО: БЕЗ КОММИССИ ДЛЯ АРЕНДАТОРОВ, ПРЯМАЯ АРЕНДА ОТ СОБСТВЕННИКАБизнес-центр B класса РТС Дмитровское расположен по адресу Москва, САО, район Восточное Дегунино, Дмитровское ш., 98, в пешей доступности от метро Яхромская (2 мин).Характеристики здания:...
    • 3/7 эт.
    3 048 500 Р
    Агент
    +7 (916) Показать номер
    Посмотреть контакты
    Офис (1056 м) - Фото 1
    Офис (1056 м) - Фото 2
    3-й этаж, всего 7 этажей

    Предлагаем в аренду офис на 88 - 234 сотрудников в бизнес-центре Верейская Плаза 3 .Разработаем планировку под вашу команду бесплатно с неограниченными правками.Площадь: 1 056 м.Состояние: готов к въезду.Арендная плата:/мес.Ставка:/м/год (включая эксплуатацию).Налогообложен...
    • 3/7 эт.
    2 923 000 Р
    Агент
    +7 (966) Показать номер
    Посмотреть контакты
    Офис (1072 м) - Фото 1
    Офис (1072 м) - Фото 2
    3-й этаж, всего 7 этажей

    Предлагаем в аренду офис на 90 - 238 сотрудников в бизнес-центре Верейская Плаза 3 .Разработаем планировку под вашу команду бесплатно с неограниченными правками.Площадь: 1 072 м.Состояние: готов к въезду.Арендная плата:/мес.Ставка:/м/год (включая эксплуатацию).Налогообложен...
    • 3/7 эт.
    2 999 666 Р
    Агент
    +7 (966) Показать номер
    Посмотреть контакты
    Офис (1077 м) - Фото 1
    Офис (1077 м) - Фото 2
    3-й этаж, всего 7 этажей

    Предлагаем в аренду офис на 90 - 239 сотрудников в бизнес-центре Верейская Плаза 3 .Разработаем планировку под вашу команду бесплатно с неограниченными правками.Площадь: 1 077 м.Состояние: готов к въезду.Арендная плата:/мес.Ставка:/м/год (включая эксплуатацию).Налогообложен...
    • 3/7 эт.
    3 013 000 Р
    Агент
    +7 (966) Показать номер
    Посмотреть контакты
    Офис (1057 м) - Фото 1
    Офис (1057 м) - Фото 2
    3-й этаж, всего 7 этажей

    Предлагаем в аренду офис на 89 - 234 сотрудников в бизнес-центре Верейская Плаза 3 .Разработаем планировку под вашу команду бесплатно с неограниченными правками.Площадь: 1 057 м.Состояние: готов к въезду.Арендная плата:/мес.Ставка:/м/год (включая эксплуатацию).Налогообложен...
    • 3/7 эт.
    2 925 666 Р
    Агент
    +7 (966) Показать номер
    Посмотреть контакты

    Не нашли подходящего объявления?

    Оставьте заявку, и наши риэлторы подберут офис в районе Москвы

    (0)