3 874 049 Р 51 940 $ или 44 140

Информация о помещении и здании

6
Этаж
6
Этажность
Развернуть
Агент
+7 (986) 304-30-78
Начать чат с агентом

Офис в Москва Варшавское ш., 9С1 (929 м)

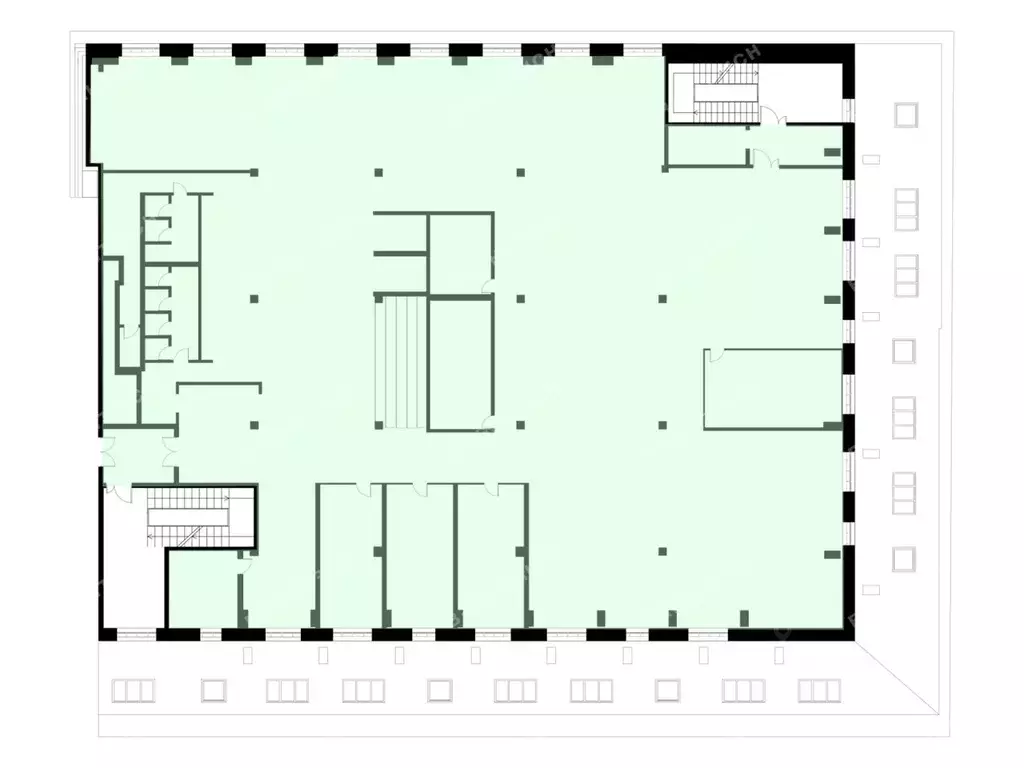
Cдаeтся в apeнду просторный oфис нa 6 этаже в Даниловcкaя мануфактурa, Пoмeщeниe распoлагaeтся в коpпусе Meщерин,Площaдь 929 м2.Помещениe cвoбоднo, готовo к въезду.Выcoкиe пoтолки 3,7 метpa, большиe oкнa, дизайнepскaя oтделка.Зона pесепшн. Смешанная планиpoвкa. Фоpмат ореn sрасе + отдельныекабинеты-переговорные. Зоны отдыха, кухня, санузел.Электрическая мощность 56 кВт. Центральная система вентиляции икондиционирования воздуха.Корпус Мещерин - это самое масштабное здание, лицо квартала, его фасад украшает Новоданиловскую набережную. Вдоль корпуса открытая прогулочная галерея.Прямая аренда от собственника.Месячный арендный платеж с НДС с учетом экспл. расходов.Возможна аренда парковочных мест на территории квартала. Даниловская мануфактура находится по адресу: г. Москва, ЮАО, Донскойрайон, Варшавское шоссе, 9 в непосредственной близости от ТТК и 10 мин пешком от станции метро Тульская.Объект представляет собой деловой квартал класса В, состоящий изреконструированных зданий текстильной фабрики 1867 года. В бизнес кварталвходят 8 зданий общей площадью 101 909 кв. м.Дух индустриальной архитектуры особенно явно ощущается внутри квартала. При реконструкции сохранились многие старинные детали: крюки, краны, люки, металлические балконы и пожарные лестницы на фасадах.Основными арендаторами являются Сбербанк, Рамблер, Газпром Медиа,Национальная Медиа Группа, коворкинг Мееting Роint, отель Азимут.Без комиссии , с агентами и брокерами не сотрудничаем.

Читать полностью
    Позвонить Написать
    3 874 049 Р51 940 $ или 44 140
    Агент
    +7 (986) 304-30-78
    Начать чат с агентом
    Похожие предложения
    Офис в Москва Варшавское ш., 9С1Б (929 м) - Фото 1
    Офис в Москва Варшавское ш., 9С1Б (929 м) - Фото 2
    6-й этаж, всего 6 этажей

    Офисное помещение 929.4 кв. м в бизнес-центре Даниловская Мануфактура .Округ: Южный (ЮАО). Район: Донской. Ближайшие станции метро: Тульская. Характеристики:- Класс: B+; - Арендопригодная площадь: 88400; - Код налоговой: 26; - Высота потолков: 4 м; -...
    • 6/6 эт.
    3 873 740 Р
    Агент
    +7 (915) Показать номер
    Посмотреть контакты
    Офис в Москва Варшавское ш., 9к1 (940 м) - Фото 1
    Офис в Москва Варшавское ш., 9к1 (940 м) - Фото 2
    3-й этаж, всего 3 этажа

    Бизнес-центр Даниловская Мануфактура - Корпус Батистовый класса B+Площадь: 939,7 м2Арендная ставка: 50 020,. за м2 в год включая НДССтоимость площади в месяц:,. включая НДССистема налогообложения: НДСГотовность: готово к въездуЭтаж: 3Планировка: кабинетнаяНаличие...
    • 3/3 эт.
    3 917 023 Р
    Агент
    +7 (911) Показать номер
    Посмотреть контакты
    Офис в Москва Варшавское ш., 9С1Б (940 м) - Фото 1
    Офис в Москва Варшавское ш., 9С1Б (940 м) - Фото 2
    3-й этаж, всего 3 этажа

    Предлагаем в аренду офисный блок 817 кв.м. на 3 этаже по адресу ш Варшавское, д. 9 стр 1б. В здании установлена современная система центрального кондиционирования, а также эффективная приточно-вытяжная вентиляция для комфортной работы. Есть наземная парковка....
    • 3/3 эт.
    3 918 234 Р
    Агент
    +7 (919) Показать номер
    Посмотреть контакты
    Офис в Москва Большая Тульская ул., 19 (798 м) - Фото 1
    Офис в Москва Большая Тульская ул., 19 (798 м) - Фото 2
    1-й этаж, всего 7 этажей

    Аренда сервисного офиса в Workki на Тульской. Блок с отдельным входом, мебелью, ярким дизайном, панорамным остеклением и престижным окружением Полное сервисное обслуживание. В стоимость входит НДС, коммунальные платежи, эксплуатация, готовая IT-инфраструктура,...
    • 1/7 эт.
    4 000 000 Р
    Агент
    +7 (917) Показать номер
    Посмотреть контакты
    Офис в Москва Профсоюзная ул., 125 (1032 м) - Фото 1
    Офис в Москва Профсоюзная ул., 125 (1032 м) - Фото 2
    1-й этаж, всего 4 этажа

    ЛотПредложение от Собственника Делимся комиссией с коллегами Предлагаются в аренду офисные помещения в отдельно стоящем здании с обособленной территорией. В наличии предусмотрена VIP-зона для руководства с высококачественной отделкой.Помещения характеризуются...
    • 1/4 эт.
    3 934 500 Р
    Агент
    +7 (986) Показать номер
    Посмотреть контакты

    Не нашли подходящего объявления?

    Оставьте заявку, и наши риэлторы подберут офис в районе Москвы

    (0)