2 047 333 Р 27 300 $ или 23 270

Информация о помещении и здании

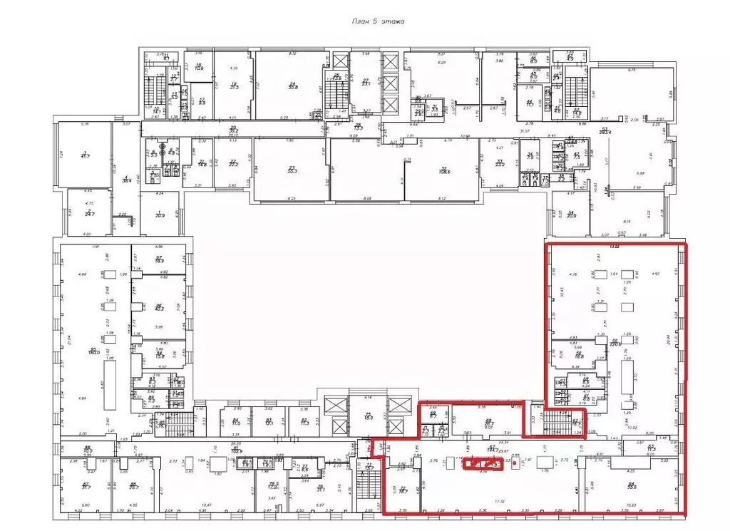
5
Этаж
10
Этажность
Развернуть
Агент
+7 (919) 729-55-15
Начать чат с агентом

Офис (614 м)

Бизнес-центр РАДЕЖ , кл. В+ на Юго-Западе Москвы.Общая площадь БЦ 20150 м2, 10 этажей.Лифты - 4. 5 этаж, отдельный блок 614,2 м2Планировка: смешанная планировка, окна на две стороны здания.Переговорные комнаты, серверная, подсобка, мини-кухня с оборудованием, санузлы в блоке. Состояние: с офисной отделкой. Готово к въезду.Приточно-вытяжная вентиляция, кондиционирование.Круглосуточная охрана. СКУД система.Парковка: подземный паркинг, наземная парковка.ID: L13603

Читать полностью
    Позвонить Написать
    2 047 333 Р27 300 $ или 23 270
    Агент
    +7 (919) 729-55-15
    Начать чат с агентом
    Похожие предложения
    Офис в Москва ул. Кржижановского, 14К3 (615 м) - Фото 1
    Офис в Москва ул. Кржижановского, 14К3 (615 м) - Фото 2
    5-й этаж, всего 10 этажей

    204903Современный офис в удобном ЮЗАО Москвы, в 3 минутах от метро Профсоюзная и рядом с Академической . Высококлассная инфраструктура: центральное кондиционирование, вентиляция, современные системы пожарной безопасности и бесперебойного питания, лифты,...
    • 5/10 эт.
    2 097 833 Р
    Агент
    +7 (917) Показать номер
    Посмотреть контакты
    5-й этаж, всего 10 этажей

    Бизнес-центр РАДЕЖ , кл. В+ на Юго-Западе Москвы.Общая площадь БЦ 20150 м2, 10 этажей.Лифты - 4. 5 этаж, отдельный блок 614,2 м2Планировка: смешанная планировка, окна на две стороны здания.Переговорные комнаты, серверная, подсобка, мини-кухня с оборудованием,...
    • 5/10 эт.
    2 047 334 Р
    Агент
    +7 (923) Показать номер
    Посмотреть контакты
    Офис в Москва ул. Кржижановского, 14К3 (615 м) - Фото 1
    Офис в Москва ул. Кржижановского, 14К3 (615 м) - Фото 2
    5-й этаж, всего 10 этажей

    ВАЖНО: БЕЗ КОММИССИ ДЛЯ АРЕНДАТОРОВ, ПРЯМАЯ АРЕНДА ОТ СОБСТВЕННИКАБизнес-центр B+ класса Ферро-Плаза расположен по адресу Москва, ЮЗАО, район Котловка, ул. Кржижановского, дом 14, строение 3, в пешей доступности от метро Профсоюзная (4 мин).Характеристики...
    • 5/10 эт.
    2 050 000 Р
    Агент
    +7 (916) Показать номер
    Посмотреть контакты
    Офис в Москва Холодильный пер., 3 (423 м) - Фото 1
    Офис в Москва Холодильный пер., 3 (423 м) - Фото 2
    1-й этаж, всего 4 этажа

    Лот: 53368pd. Аренда офисного помещения с отдельной входной группой. Высота потолка 5 метров, светлый блок, качественный ремонт в стиле лофт, большие окна. Рассадка на 60+ сотрудников, помещение частично меблировано. Пешая доступность от метро Тульская....
    • 1/4 эт.
    1 938 750 Р
    Агент
    +7 (988) Показать номер
    Посмотреть контакты
    Офис в Москва Октябрьская ул., 80С3 (761 м) - Фото 1
    Офис в Москва Октябрьская ул., 80С3 (761 м) - Фото 2
    1-й этаж, всего 3 этажа

    ЛотПредложение от Собственника Аренда отдельно стоящего здание, 5 минут от метро и БКЛ Марьина роща:Общая площадь 761 м2Кабинетная планировка. (Возможна перепланировка)Потолок h= 3 метраВозможна аренда по этажамЕсть парковка, зона разгрузки/погрузки.Арендные...
    • 1/3 эт.
    1 902 500 Р
    Агент
    +7 (986) Показать номер
    Посмотреть контакты

    Не нашли подходящего объявления?

    Оставьте заявку, и наши риэлторы подберут офис в районе Москвы

    (0)