2 161 078 Р 28 080 $ или 24 010

Информация о помещении и здании

5
Этаж
6
Этажность
Развернуть
Агент
+7 (985) 822-94-94
Начать чат с агентом

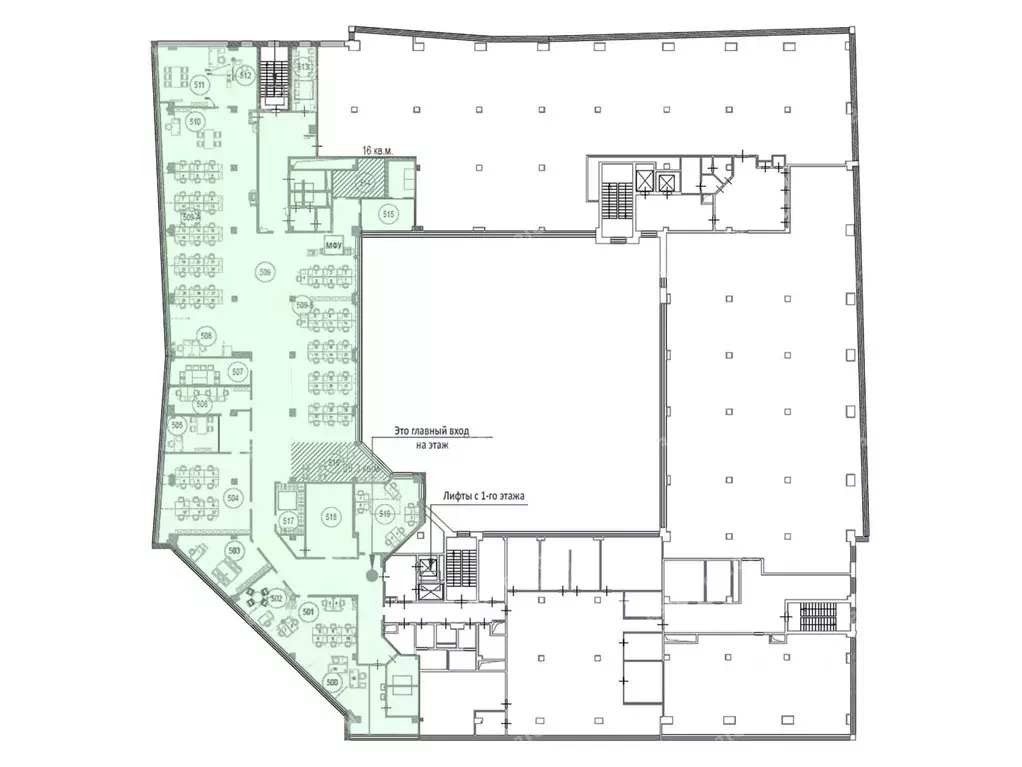
Офис в Москва Кировоградская ул., 23Ак1 (1149 м)

Уважаемый Арендатор, предлагаем Вам арендовать офис 1149.0 м на 5 этаже на выгодных условиях.Приточно-вытяжная вентиляция. Центральное кондиционирование. Электрическая мощность: 2822кВт. Интернет, телефония. Охрана. Видеонаблюдение. Система контроля доступа. Лифты: 2 шт. LG. Подземная парковка. Наземная парковка. ЮАО Москвы. В 7 минутах от м. Улица Академика ЯнгеляБыстро реагируем на обращения, организуем встречу на объекте в удобное для Вас время, направим план помещения и ответим на все возникшие вопросы Звоните сейчас и получите лучшие условия на рынке ID: o100214

Читать полностью
    Позвонить Написать
    2 161 078 Р28 080 $ или 24 010
    Агент
    +7 (985) 822-94-94
    Начать чат с агентом
    Похожие предложения
    Офис в Москва Кировоградская ул., 23Ак1 (1149 м) - Фото 1
    Офис в Москва Кировоградская ул., 23Ак1 (1149 м) - Фото 2
    5-й этаж, всего 6 этажей

    Офисное помещение 1 149 кв. м в бизнес-центре ART Gallery Business Park. Объект скоро освободится. Успейте забронировать на выгодных условиях. Готовность ко въезду уточняется по запросу. Округ: Южный (ЮАО). Район: Чертаново Южное. Ближайшие станции метро:...
    • 5/6 эт.
    2 161 269 Р
    Агент
    +7 (915) Показать номер
    Посмотреть контакты
    Офис (1149 м) - Фото 1
    Офис (1149 м) - Фото 2
    5-й этаж, всего 6 этажей

    АРЕНДА ОТ 11 МЕС. ТОЛЬКО ПОД ОФИС БЦ класса B+ «Art Gallery Business Park , первая линия домов. Сдаётся под офис блок с санузлом на 5-м этаже площадью 1149 кв.м. Стандартная офисная отделка. Центральное кондиционирование, вентиляция. Есть охрана.НДС...
    • 5/6 эт.
    2 161 078 Р
    Агент
    +7 (985) Показать номер
    Посмотреть контакты
    Офис (1149 м) - Фото 1
    Офис (1149 м) - Фото 2
    5-й этаж, всего 6 этажей

    Сдается в аренду офисное помещение на 5 этаже в БП Art Gallery Business Park, В+ класса, который находится по адресу: ул. Кировоградская, д. 23А, к. 1. Без комиссии для Арендатора ЛОКАЦИЯ:– Пешая доступность от станций метро Улица Академика Янгеля, Пражская,...
    • 5/6 эт.
    2 161 077 Р
    Агент
    +7 (901) Показать номер
    Посмотреть контакты
    Офис в Москва Каширское ш., 61К4С1 (1199 м) - Фото 1
    Офис в Москва Каширское ш., 61К4С1 (1199 м) - Фото 2
    3-й этаж, всего 4 этажа

    БЕЗ КОМИССИИ Бизнес-центр класса B. Сдаётся под офис 3-й этаж целиком площадью 1199 кв.м. Стандартная офисная отделка. Центральное кондиционирование, вентиляция. Есть охрана. 20 мест на парковке.НДС включен. Каширское шоссе, 61к4с1, 3 минуты пешком...
    • 3/4 эт.
    2 115 736 Р
    Агент
    +7 (917) Показать номер
    Посмотреть контакты
    Офис в Москва Киевское шоссе, 22-й км, 6с1 (638 м) - Фото 1
    Офис в Москва Киевское шоссе, 22-й км, 6с1 (638 м) - Фото 2
    4-й этаж, всего 9 этажей

    Предлагаем к аренде офисное помещение с отделкой 638 кв.м. на 4 этаже в бизнес-парке А-класса Comcity (Фаза Альфа). Смешанная планировка, высота потолков 3,9 м. Есть зона ресепшн, гардеробные, кабинеты руководителей, кухня и кофе-бар, опенспейс, переговорные,...
    • 4/9 эт.
    2 270 000 Р
    Агент
    +7 (915) Показать номер
    Посмотреть контакты

    Не нашли подходящего объявления?

    Оставьте заявку, и наши риэлторы подберут офис в районе Москвы

    (0)