Россия, Москва, 2-й Верхний Михайловский проезд, 9С5
1 109 014 Р 14 410 $ или 12 320

Информация о помещении и здании

5
Этаж
5
Этажность
Развернуть
Агент
+7 (938) 656-74-88
Начать чат с агентом

Офис в Москва 2-й Верхний Михайловский проезд, 9С5 (524 м)

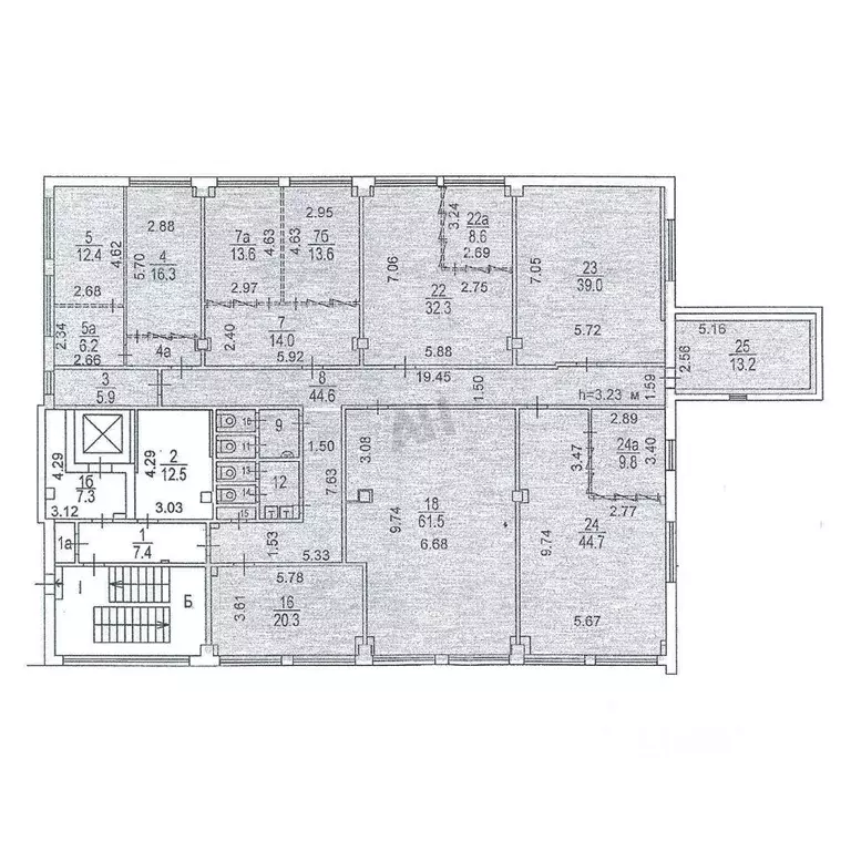
1017624. Предлагаем в аренду офисное помещение площадью 523,6 кв. м, расположенное в офисном центре Михайловский Преимущества объекта: - Бизнес-центр класса В- Шаговая доступность от станции метро Площадь Гагарина, Шаболовская (12-15 минут пешком)- Этаж: 5- Помещение предлагается с отделкой- Планировка кабинетная- Помещение свободно - На территории имеется охраняемая парковка- После завершения реконструкции в 2001 году, офисный комплекс получил современное новейшее инженерно-техническое оснащение и стильную качественную отделкуЭксплуатационные платежи включены в ставку, коммунальные платежи оплачиваются дополнительно. Оперативно организуем для Вас показ и ответим на все вопросы. Свяжитесь с нами для получения дополнительной информации

Читать полностью
    Позвонить Написать
    1 109 014 Р14 410 $ или 12 320
    Агент
    +7 (938) 656-74-88
    Начать чат с агентом
    Похожие предложения
    Офис в Москва 2-й Верхний Михайловский проезд, 9С5 (524 м) - Фото 1
    Офис в Москва 2-й Верхний Михайловский проезд, 9С5 (524 м) - Фото 2
    5-й этаж, всего 5 этажей

    Предлагаем в прямую аренду помещение под офис класса B общей площадью 524 кв. метров в историческом бизнес-центре.Москва, ЮАО, 2-й Верхний Михайловский проезд, 9 с5Удобная локация здания:- Автомобиль: близость транспортных магистралей, таких как Третье...
    • 5/5 эт.
    1 109 000 Р
    Агент
    +7 (985) Показать номер
    Посмотреть контакты
    Офис в Москва 2-й Верхний Михайловский проезд, 9С5 (524 м) - Фото 1
    Офис в Москва 2-й Верхний Михайловский проезд, 9С5 (524 м) - Фото 2
    5-й этаж, всего 5 этажей

    Предлагается в аренду офис во 5м строении. Предоставляется юридический адрес, помещение без мебели. свободной планировки. В помещении выполнена стандартная отделка. Санузел на этаже. Интернет, уборка оплачиваются отдельно.
    • 5/5 эт.
    1 108 985 Р
    Агент
    +7 (916) Показать номер
    Посмотреть контакты
    Офис в Москва 2-й Верхний Михайловский проезд, 9С5 (524 м) - Фото 1
    Офис в Москва 2-й Верхний Михайловский проезд, 9С5 (524 м) - Фото 2
    5-й этаж, всего 5 этажей

    Лот: 418236, бизнес-центр 2-й Верхний Михайловский 9 с5. БЕЗ КОМИССИИ Сдается в аренду офис площадью 523,6 м2 на 5 этаже в офисном здании класса B 2-й Верхний Михайловский 9 с5, расположенном в 10 минутах пешком от метро Ленинский проспект. Планировка:...
    • 5/5 эт.
    1 108 985 Р
    Агент
    +7 (915) Показать номер
    Посмотреть контакты
    Офис в Москва 5-й Донской проезд, 17 (438 м) - Фото 1
    Офис в Москва 5-й Донской проезд, 17 (438 м) - Фото 2
    8-й этаж, всего 9 этажей

    ПИШИТЕ И ЗВОНИТЕ) РАБОТАЕМ С АГЕНТАМИ. РЕНТАВИК— участник ассоциации КОКОН. Бизнес-центр Клевер расположен в Донском районе Москвы ЮАО, в шаговой доступности от станции МЦК Площадь Гагарина.Налоговая: 25. Лифты: Есть. Вентиляция: Приточно-вытяжная. Кондиционирование:...
    • 8/9 эт.
    1 076 750 Р
    Агент
    +7 (933) Показать номер
    Посмотреть контакты
    Офис в Москва ул. Орджоникидзе, 11С40 (372 м) - Фото 1
    Офис в Москва ул. Орджоникидзе, 11С40 (372 м) - Фото 2
    4-й этаж, всего 4 этажа

    ЛотПредложение от Собственника Предлагается в аренду офисный блок общей площадью 371.9 кв.м., расположенный на 4-м этаже 4-х этажного здания, в БЦ класса Б в 6ти минутах пешком от м. Ленинский проспект и МЦК Площадь Гагарина, на пересечении ТТК и ул.Вавилова....
    • 4/4 эт.
    1 084 709 Р
    Агент
    +7 (986) Показать номер
    Посмотреть контакты

    Не нашли подходящего объявления?

    Оставьте заявку, и наши риэлторы подберут офис в районе Москвы

    (0)