9 372 854 Р 121 800 $ или 104 100

Информация о помещении и здании

4
Этаж
27
Этажность
Развернуть
Агент
+7 (985) 822-94-94
Начать чат с агентом

Офис в Москва Павелецкая пл., 2С2 (1376 м)

Уважаемый Арендатор, предлагаем Вам арендовать офис 1376.0 м на 4 этаже на выгодных условиях.Планировка - смешанная. Приточно-вытяжная вентиляция. Центральное кондиционирование. Пожарная сигнализация. Интернет, телефония. Охрана. Видеонаблюдение. Система контроля доступа. Подземная парковка. ЦАО Москвы. В 5 минутах от м. ПавелецкаяБыстро реагируем на обращения, организуем встречу на объекте в удобное для Вас время, направим план помещения и ответим на все возникшие вопросы Звоните сейчас и получите лучшие условия на рынке ID: o100267

Читать полностью
    Позвонить Написать
    9 372 854 Р121 800 $ или 104 100
    Агент
    +7 (985) 822-94-94
    Начать чат с агентом
    Похожие предложения
    Офис в Москва Павелецкая пл., 2С2 (1376 м) - Фото 1
    Офис в Москва Павелецкая пл., 2С2 (1376 м) - Фото 2
    4-й этаж, всего 27 этажей

    Сдается в аренду офисное помещение на 4 этаже в БЦ Павелецкая Плаза, А класса, который находится по адресу: Павелецкая пл., д. 2, стр. 2. Без комиссии для Арендатора ЛОКАЦИЯ: Пешая доступность от станций метро Павелецкая, Серпуховская. Удобный выезд...
    • 4/27 эт.
    9 372 853 Р
    Агент
    +7 (989) Показать номер
    Посмотреть контакты
    Офис в Москва Павелецкая пл., 2С2 (1376 м) - Фото 1
    Офис в Москва Павелецкая пл., 2С2 (1376 м) - Фото 2
    4-й этаж, всего 27 этажей

    ПИШИТЕ И ЗВОНИТЕ) РАБОТАЕМ С АГЕНТАМИ. РЕНТАВИК— участник ассоциации КОКОН. Бизнес-центр представляет собой центральную композиционную 27-этажную восьмигранную доминанту многофункционального комплекса Павелецкая Плаза. Архитектурный облик дома близок...
    • 4/27 эт.
    9 372 853 Р
    Агент
    +7 (933) Показать номер
    Посмотреть контакты
    Офис (1376 м) - Фото 1
    Офис (1376 м) - Фото 2
    4-й этаж, всего 26 этажей

    АРЕНДА ОТ 11 МЕС. ТОЛЬКО ПОД ОФИС БЦ класса A «Павелецкая-Плаза , первая линия домов, рядом с метро. Сдаётся под офис блок с санузлом на 4-м этаже площадью 1376 кв.м. Стандартная офисная отделка. Центральное кондиционирование. Есть охрана.НДС включен....
    • 4/26 эт.
    9 372 853 Р
    Агент
    +7 (985) Показать номер
    Посмотреть контакты
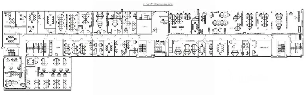
    Офис в Москва Кожевническая ул., 14С3 (2327 м) - Фото 1
    Офис в Москва Кожевническая ул., 14С3 (2327 м) - Фото 2
    3-й этаж, всего 10 этажей

    Предлагаем респектабельный офис Бизнес-центр Black and White (класс А)300+ рабочих местПотолки h-3.7VIP-зона, с приемной и комнатой отдыхаПланировка смешаннаяОРЕХ включенКоммунальные расходы по счётчикамПаркинг подземныйПаркинг наземныйГостевой наземный...
    • 3/10 эт.
    9 308 000 Р
    Агент
    +7 (985) Показать номер
    Посмотреть контакты
    Офис в Москва Варшавское ш., 9к1 (2266 м) - Фото 1
    Офис в Москва Варшавское ш., 9к1 (2266 м) - Фото 2
    3-й этаж, всего 6 этажей

    АРЕНДА ОТ СОБСТВЕННИКАКорпус Мещерин (Основной), Москва, ш Варшавское, 9 корп 1Звоните и пишите прямо сейчас — не упустите возможность арендовать идеальный офис для Вашего бизнеса в отличном месте Сотрудничаем с агентами.- Удобная транспортная доступность...
    • 3/6 эт.
    9 445 444 Р
    Агент
    +7 (915) Показать номер
    Посмотреть контакты

    Не нашли подходящего объявления?

    Оставьте заявку, и наши риэлторы подберут офис в районе Москвы

    (0)