7 600 000 Р 101 000 $ или 85 650

Информация о помещении и здании

2
Этаж
3
Этажность
Развернуть
Агент
+7 (980) 120-68-55
Начать чат с агентом

Офис в Москва Холодильный пер., 3 (1175 м)

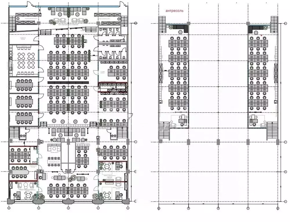
Уважаемые арендаторы Брокерам, представителям арендатора мы мы выплачиваем комиссию 3 000 Собственником сдается: 2 этаж, Площадь - 1175,2 м2 Количество рм - 200 Стоимость за рм -уб (уб в месяц) Срок договора - 3 года В стоимость включено: 1. Аренда помещения (доступ 24/7) 2. Коммунальные расходы (отопление, электроснабжение, ГВС и ХВС) 3. Эксплуатационные расходы 4. Интернет 5. Круглосуточное обслуживание и поддержание офиса собственной службой эксплуатации 6. Полностью оборудованная кухня (мебель, техника, расходные материалы, чай-кофе, сахар, вода) 7. Оборудованные рабочие места (столы, стулья) в необходимом для арендатора количестве 8. МФУ - 1 шт на офисный блок, бумага А4 9. Клининг ежедневный и поддерживающий в течение дня 10. Расходные материалы для кухни и собственного с/у (таблетки для посудомоечной машины, освежитель воздуха, туалетная бумага, мыло, жидкость для мытья посуды, губки для посуды, салфетки)

Читать полностью
    Позвонить Написать
    7 600 000 Р101 000 $ или 85 650
    Агент
    +7 (980) 120-68-55
    Начать чат с агентом
    Похожие предложения
    Офис в Москва Холодильный пер., 3 (1200 м) - Фото 1
    Офис в Москва Холодильный пер., 3 (1200 м) - Фото 2
    3-й этаж, всего 3 этажа

    Предлагаются в аренду офисы от 62,5 до 1200 кв.м в Бизнес-парке Товарищество Рябовской мануфактуры (строение Гончар ) класса В+ по адресу Холодильный переулок, 3.Во всех офисах выполнена отделкаТип планировки - смешаннаяВход - 1 этаж отдельный со двора,...
    • 3/3 эт.
    7 599 987 Р
    Агент
    +7 (915) Показать номер
    Посмотреть контакты
    Офис в Москва Холодильный пер., 3 (1175 м) - Фото 1
    Офис в Москва Холодильный пер., 3 (1175 м) - Фото 2
    2-й этаж, всего 4 этажа

    Не просто офис — среда для роста вашего бизнеса Устали от затрат на ремонт, закупку мебели и организацию инфраструктуры? Мы взяли всё на себя — чтобы вы могли сосредоточиться на главном.Мы предлагаем сервисные офисы нового поколения:Готовность к работе...
    • 2/4 эт.
    7 600 000 Р
    Агент
    +7 (985) Показать номер
    Посмотреть контакты
    Офис в Москва ул. Сущевский Вал, 2 (1500 м) - Фото 1
    2-й этаж, всего 8 этажей

    ВАЖНО: БЕЗ КОММИССИ ДЛЯ АРЕНДАТОРОВ, ПРЯМАЯ АРЕНДА ОТ СОБСТВЕННИКАБизнес-центр B+ класса Сущевский Валасположен по адресу Москва, ЦАО, район Тверской, ул. Сущёвский Вал, 2, в пешей доступности от метро Савёловская (3 мин), метро Менделеевская (15 мин).Характеристики...
    • 2/8 эт.
    7 500 000 Р
    Агент
    +7 (916) Показать номер
    Посмотреть контакты
    Офис в Москва Космодамианская наб., 52С3 (1346 м) - Фото 1
    Офис в Москва Космодамианская наб., 52С3 (1346 м) - Фото 2
    5-й этаж, всего 9 этажей

    Уважаемый Арендатор, предлагаем Вам арендовать офис 1346.0 м на 5 этаже на выгодных условиях.Планировка - смешанная. Приточно-вытяжная вентиляция. Центральное кондиционирование. Пожарная сигнализация. Электрическая мощность: 70Вт/м. Интернет, телефония....
    • 5/9 эт.
    7 663 227 Р
    Агент
    +7 (985) Показать номер
    Посмотреть контакты
    Офис в Москва Космодамианская наб., 52С3 (1346 м) - Фото 1
    Офис в Москва Космодамианская наб., 52С3 (1346 м) - Фото 2
    5-й этаж, всего 9 этажей

    *Сдаётся офисный блок в аренду в БЦ Риверсайд Тауэрс * Площадь 1346 кв.метров, 5 этаж.- Многофункциональный комплекс класса А в центре Москвы- Уникальная локация на первой линии Космодамианской набережной, внутри Садового кольца- Современные конференц-залы...
    • 5/9 эт.
    7 663 227 Р
    Агент
    +7 (910) Показать номер
    Посмотреть контакты

    Не нашли подходящего объявления?

    Оставьте заявку, и наши риэлторы подберут офис в районе Москвы

    (0)