5 847 456 Р 77 720 $ или 65 900

Информация о помещении и здании

4
Этаж
6
Этажность
Развернуть
Агент
+7 (966) 117-77-29
Начать чат с агентом

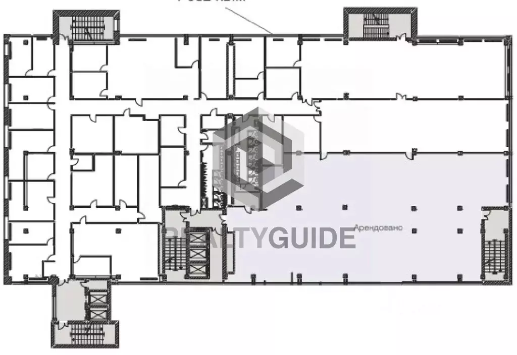
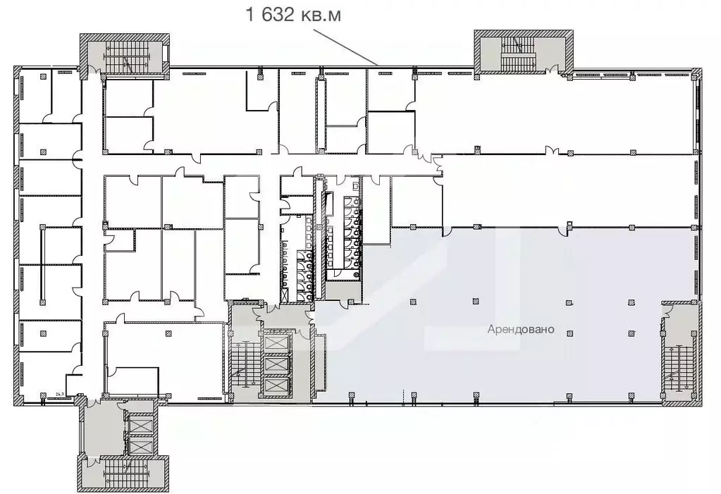
Офис (1632 м)

Сдается в прямую аренду офисное помещение общей площадью 1632 кв.м. на 4 этаже в бизнес-центре Квадрат , расположенном по адресу Москва, улица Верейская, 11, в 37 минутах пешком от метро Кунцевская. Арендная ставка составляет за кв.м./год, с учетом НДС. Эксплуатационные расходы включены в ставку аренды, коммунальные расходы оплачиваются по факту. Планировка смешанная.Состояние помещения: Готово к въезду.Вентиляция: Приточно-вытяжная.Кондиционирование: Сплит-системы.Охрана: Система управления контроля доступа.Провайдеры связи: Коммерческие провайдеры.Парковочные места предоставляются. Показ ежедневно с 9 до 23, без выходных. Позвоните, есть подробная презентация объекта, в электронном виде.

Читать полностью
    Позвонить Написать
    5 847 456 Р77 720 $ или 65 900
    Агент
    +7 (966) 117-77-29
    Начать чат с агентом
    Похожие предложения в Москве
    Офис в Москва Верейская ул., 11 (1632 м) - Фото 1
    Офис в Москва Верейская ул., 11 (1632 м) - Фото 2
    4-й этаж, всего 6 этажей

    Предлагаем в аренду офис на 136 - 362 сотрудников в бизнес-центре Квадрат .Разработаем планировку под вашу команду бесплатно с неограниченными правками.Площадь: 1 632 м.Состояние: готов к въезду с 01.07.2026.Арендная плата:/мес.Ставка:/м/год (включая...
    • 4/6 эт.
    5 848 000 Р
    Агент
    +7 (980) Показать номер
    Посмотреть контакты
    Офис в Москва Верейская ул., 11 (1632 м) - Фото 1
    Офис в Москва Верейская ул., 11 (1632 м) - Фото 2
    4-й этаж, всего 6 этажей

    1160486. Предлагаем в аренду офисное помещение площадью 1632 кв. м, расположенное в бизнес-центре Квадрат Преимущества объекта: - Бизнес-центр класса В+- Шаговая доступность от станции метро Давыдково (12 минут пешком)- Шаттл-бас от станций метро Кунцевская...
    • 4/6 эт.
    5 848 000 Р
    Агент
    +7 (938) Показать номер
    Посмотреть контакты
    Офис в Москва Верейская ул., 11 (1632 м) - Фото 1
    Офис в Москва Верейская ул., 11 (1632 м) - Фото 2
    4-й этаж, всего 6 этажей

    Предлагается в аренду офис 1632 кв.м. Состояние отделки — готово к въезду.Помещение доступно для аренды с 01.07.2026.Подписание договора аренды напрямую с владельцем помещения. Работаем без комиссии, процентов и надбавок.В арендную ставку включено: -...
    • 4/6 эт.
    5 848 000 Р
    Агент
    +7 (932) Показать номер
    Посмотреть контакты
    Офис в Москва Верейская ул., 11 (1632 м) - Фото 1
    Офис в Москва Верейская ул., 11 (1632 м) - Фото 2
    4-й этаж, всего 6 этажей

    Бизнес-центр Квадрат класса AПлощадь: 1 632 м2Арендная ставка: 43 000,. за м2 в год включая НДССтоимость площади в месяц:,. включая НДССистема налогообложения: НДСГотовность: готово к въездуЭтаж: 4Планировка: смешаннаяНаличие с/у: , ЕстьСтатус: свободенХарактеристики...
    • 4/6 эт.
    5 848 000 Р
    Агент
    +7 (911) Показать номер
    Посмотреть контакты
    Офис в Москва Верейская ул., 11 (1632 м) - Фото 1
    Офис в Москва Верейская ул., 11 (1632 м) - Фото 2
    4-й этаж, всего 6 этажей

    Сдается в аренду офисное помещение на 4 этаже в БЦ Квадрат, В+ класса, который находится по адресу: ул. Верейская, д. 11. Без комиссии для Арендатора ЛОКАЦИЯ: Пешая доступность от станции метро Давыдково. Удобный выезд на ТТК.ПОМЕЩЕНИЕ: В помещении стандартная...
    • 4/6 эт.
    5 848 000 Р
    Агент
    +7 (989) Показать номер
    Посмотреть контакты

    Не нашли подходящего объявления?

    Оставьте заявку, и наши риэлторы подберут офис в районе Москвы

    (0)