26 611 860 Р 353 700 $ или 299 900

Информация о помещении и здании

1
Этаж
5
Этажность
Развернуть
Агент
+7 (901) 622-47-44
Начать чат с агентом

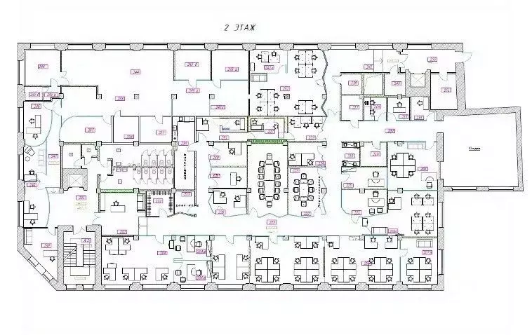
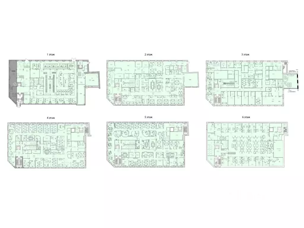
Офис (7271 м)

Сдается в аренду 6- этажный корпус Гастелло делового квартала Даниловская Мануфактура, В+ класса, который находится по адресу: Варшавское шоссе, д. 9, стр. 1А. Без комиссии для Арендатора ЛОКАЦИЯ:–Пешая доступность от станций метро Тульская, Верхние Котлы, ЗИЛ.–Удобный выезд на Третье транспортное кольцо, Варшавское шоссе, Новоданиловскую набережную.ПОМЕЩЕНИЕ:–Офисный блок с качественной отделкой, смешанная планировка (open space + отдельные кабинеты-переговорные).– На каждом этаже своя кухня и санузел.–Реконструированное здание сохранило черты бывшей фабрики: бережно отреставрированы стены и перекрытия, старинные лестницы и балконы. Интерьеры в стиле лофт создают максимум открытого пространства.–Центральная система кондиционирования, приточно-вытяжная система вентиляции.–В наличии наземная парковка ( в месяц за м/место).–Арендные каникулы и ставка подлежат обсуждению.Звоните, отвечаем по будням с 09:00 до 18:00, а в другое время передадим Ваш контакт нашему менеджеру

Читать полностью
    Позвонить Написать
    26 611 860 Р353 700 $ или 299 900
    Агент
    +7 (901) 622-47-44
    Начать чат с агентом
    Похожие предложения
    Офис в Москва Варшавское ш., 9 (7271 м) - Фото 1
    Офис в Москва Варшавское ш., 9 (7271 м) - Фото 2
    1-й этаж, всего 5 этажей

    ВАЖНО: БЕЗ КОММИССИ ДЛЯ АРЕНДАТОРОВ, ПРЯМАЯ АРЕНДА ОТ СОБСТВЕННИКАБизнес-центр B+ класса Даниловская Мануфактура расположен по адресу Москва, ЮАО, район Донской, Варшавское ш., дом 9, в пешей доступности от метро Тульская (12 мин).Характеристики здания:...
    • 1/5 эт.
    26 611 860 Р
    Агент
    +7 (916) Показать номер
    Посмотреть контакты
    Офис в Москва Варшавское ш., 9С1Б (7271 м) - Фото 1
    Офис в Москва Варшавское ш., 9С1Б (7271 м) - Фото 2
    1-й этаж, всего 5 этажей

    Офисное помещение 7 271 кв. м в бизнес-центре Даниловская Мануфактура . Объект скоро освободится. Успейте забронировать на выгодных условиях. Готовность ко въезду уточняется по запросу. Округ: Южный (ЮАО). Район: Донской. Ближайшие станции метро: Тульская....
    • 1/5 эт.
    26 611 860 Р
    Агент
    +7 (915) Показать номер
    Посмотреть контакты
    Офис в Москва Варшавское ш., 9С1Б (7271 м) - Фото 1
    Офис в Москва Варшавское ш., 9С1Б (7271 м) - Фото 2
    1-й этаж, всего 6 этажей

    Аренда офисных помещений в деловом квартале класса В+Даниловская Мануфактура — это самый масштабный лофт-проект Москвы — в прошлом ткацкая фабрика.ПРЕИМУЩЕСТВА:• отличная транспортная и пешеходная доступность, выезд на Варшавское шоссе, 10 минут пешком...
    • 1/6 эт.
    26 611 860 Р
    Агент
    +7 (985) Показать номер
    Посмотреть контакты
    Офис в Москва Варшавское ш., 9С1а (7271 м) - Фото 1
    Офис в Москва Варшавское ш., 9С1а (7271 м) - Фото 2
    1-й этаж, всего 5 этажей

    Сдается в аренду 6- этажный корпус Гастелло делового квартала Даниловская Мануфактура, В+ класса, который находится по адресу: Варшавское шоссе, д. 9, стр. 1А. Без комиссии для Арендатора ЛОКАЦИЯ:Пешая доступность от станций метро Тульская, Верхние Котлы,...
    • 1/5 эт.
    26 611 860 Р
    Агент
    +7 (989) Показать номер
    Посмотреть контакты
    Офис в Москва Варшавское ш., 9С1а (7271 м) - Фото 1
    Офис в Москва Варшавское ш., 9С1а (7271 м) - Фото 2
    6-й этаж, всего 6 этажей

    В аренду предлагается отдельный корпус целиком от собственника в БЦ Даниловская Мануфактура (корпус Гастелло).Высокие потолки, большие окна, дизайнерский ремонт.Просторное лобби с зоной приема гостей. Формат open space + отдельные кабинеты-переговорные.Звукоизолированные...
    • 6/6 эт.
    26 611 860 Р
    Агент
    +7 (985) Показать номер
    Посмотреть контакты

    Не нашли подходящего объявления?

    Оставьте заявку, и наши риэлторы подберут офис в районе Москвы

    (0)