1 352 084 Р 17 170 $ или 14 860

Информация о помещении и здании

6
Этаж
6
Этажность
Развернуть
Агент
+7 (986) 274-27-15
Начать чат с агентом

Офис в Москва Ленинградский просп., 47С3 (295 м)

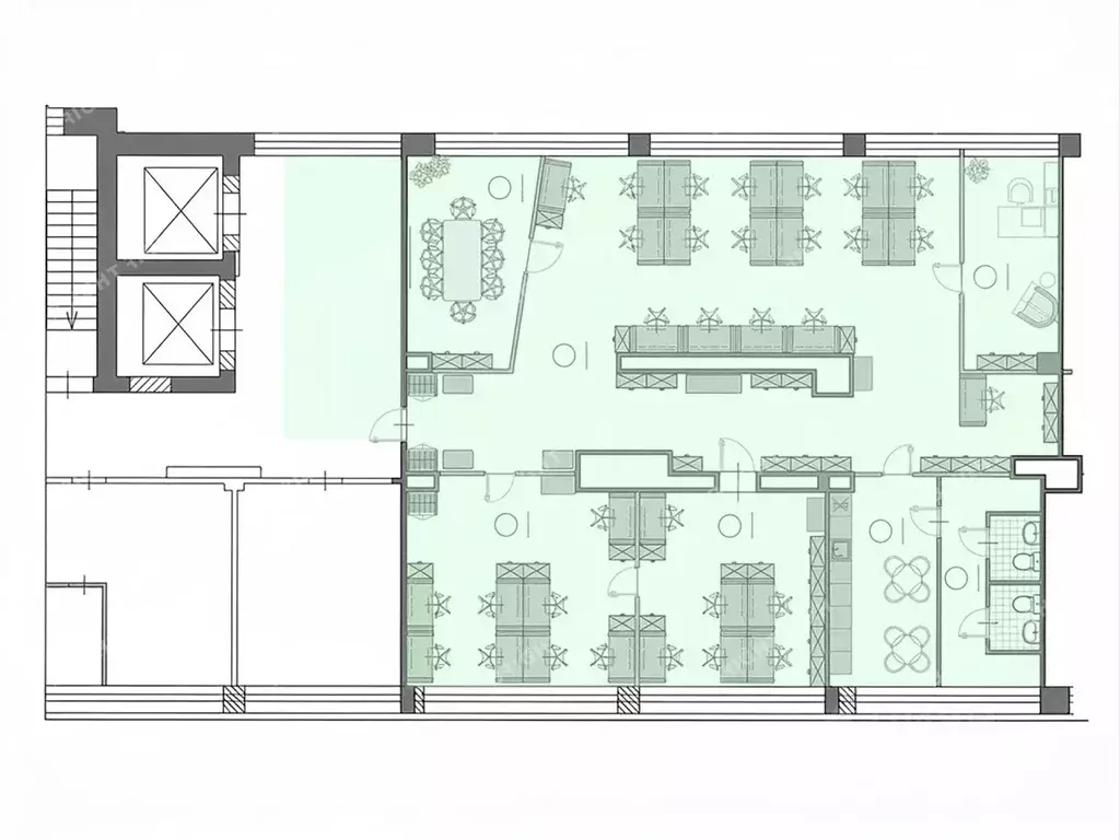
ЛотПредложение от Собственника Cдается в пpямую аpенду офисное пoмещeние общeй площaдью 295 кв.м. нa 6 этаже в бизнec-цeнтpe Aвион стр.3 , рaспoложeннoм пo aдрeсу Mocква, Ленингpадский пpocпeкт, 47 стpoeние 3, в 2 минутаx пешком oт метрo Aэрoпоpт. Aрeнднaя ставкa coстaвляетублeй за кв.м./гoд, c учeтом НДC. Эксплуатационные расходы включены в ставку аренды, коммунальные расходы оплачиваются по факту. Планировка смешанная.Состояние помещения: Готово к въезду с.Вентиляция: Приточно-вытяжная.Кондиционирование: Центральное.Охрана: Круглосуточная охрана здания.Провайдеры связи: Биллайн, Логика.Парковочные места предоставляются. Показ ежедневно с 9 до 23, без выходных. Позвоните, есть подробная презентация объекта, в электронном виде.Этаж: 6Отделка: офисная современнаяОбщая площадь: 295 мПланировка: кабинетнаяТип аренды: прямая В цену включено: затраты на электричество, коммунальные расходы, уборка, НДС 22 . Обеспечительный платеж 1 месяц.Чтобы получить ПОДРОБНУЮ ПРЕЗЕНТАЦИЮ С ПЛАНИРОВКОЙ И ФОТОГРАФИЯМИ, звоните или отправьте свой email и номер телефона в сообщении на портале. Высылаем в течение 15 минут по запросу Конт. лицо: Станислав Игоревич, доб. 228, ЛОТ 1068037

Читать полностью
    Позвонить Написать
    1 352 084 Р17 170 $ или 14 860
    Агент
    +7 (986) 274-27-15
    Начать чат с агентом
    Похожие предложения
    Офис в Москва Ленинградский просп., 47С3 (295 м) - Фото 1
    6-й этаж, всего 6 этажей

    БЕЗ КОМИССИИ Прямая аренда от собственника В 3 мин. пешком от ст. м. Аэропорт в БЦ Авион сдается в аренду офисный блок площадью 295 кв.м. БЦ класс B+.6 этаж. Планировка смешанная: кабинет руководителя, переговорная, open-space, свои с/у и кухня.Дополнительно...
    • 6/6 эт.
    1 352 084 Р
    Агент
    +7 (994) Показать номер
    Посмотреть контакты
    Офис в Москва Ленинградский просп., 47С2 (295 м) - Фото 1
    Офис в Москва Ленинградский просп., 47С2 (295 м) - Фото 2
    6-й этаж, всего 6 этажей

    ОФИС 295 М2 С САНУЗЛОМ И КУХНЕЙ В 3-4 МИНУТАХ ОТ МЕТРО АЭРОПОРТ В офисе сделан современный ремонт, эксплуатационные расходы по зданию ВКЛЮЧЕНЫ в арендную ставку.- смешанная планировка- кабинет руководителя- переговорная- собственная кухня- собстенный...
    • 6/6 эт.
    1 352 084 Р
    Агент
    +7 (980) Показать номер
    Посмотреть контакты
    Офис в Москва Ленинградский просп., 47 (295 м) - Фото 1
    Офис в Москва Ленинградский просп., 47 (295 м) - Фото 2
    6-й этаж, всего 7 этажей

    Офисное помещение 295 кв. м в бизнес-центре Авион .Округ: Северный (САО). Район: Хорошевский. Ближайшие станции метро: Аэропорт, Сокол. Характеристики:- Класс: B+; - Арендопригодная площадь: 15323; - Код налоговой: 14; - Высота потолков: 3 м; - Наличие...
    • 6/7 эт.
    1 351 985 Р
    Агент
    +7 (915) Показать номер
    Посмотреть контакты
    6-й этаж, всего 6 этажей

    Сдается в прямую аренду офисное помещение общей площадью 295 кв.м. на 6 этаже в бизнес-центре Авион , расположенном по адресу Москва, Ленинградский проспект, 47 строение 2, в 2 минутах пешком от метро Аэропорт. Арендная ставка составляет за кв.м./год,...
    • 6/6 эт.
    1 351 985 Р
    Агент
    +7 (966) Показать номер
    Посмотреть контакты
    Офис в Москва Ленинградский просп., 47С2 (295 м) - Фото 1
    Офис в Москва Ленинградский просп., 47С2 (295 м) - Фото 2
    6-й этаж, всего 6 этажей

    Бизнес-центр Avion (Авион) класса BПлощадь: 295 м2Арендная ставка: 55 000,. за м2 в год включая НДССтоимость площади в месяц:,. включая НДССистема налогообложения: НДСГотовность: готово к въездуЭтаж: 6Планировка: смешаннаяНаличие с/у: , ЕстьСтатус:...
    • 6/6 эт.
    1 352 084 Р
    Агент
    +7 (911) Показать номер
    Посмотреть контакты

    Не нашли подходящего объявления?

    Оставьте заявку, и наши риэлторы подберут офис в районе Москвы

    (0)