2 375 000 Р 30 170 $ или 26 100

Информация о помещении и здании

6
Этаж
8
Этажность
Развернуть
Агент
+7 (911) 147-09-38
Начать чат с агентом

Офис в Москва ул. Шумкина, 14с3 (1000 м)

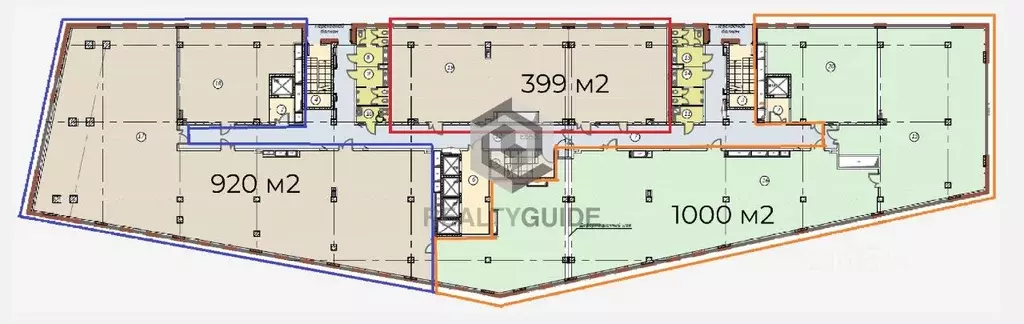
Бизнес-центр Деловой Дуэт (стр.3) класса AПлощадь: 1 000 м2Арендная ставка: 28 500,. за м2 в год включая НДССтоимость площади в месяц:,. включая НДССистема налогообложения: НДСГотовность: готово к въездуЭтаж: 6Статус: свободенВысота потолков, h: 4.00мПарковка: 137м/м, подземнаяХарактеристики зданияАдрес: улица Шумкина, 14с3, МоскваОкруг: Восточный административный округКласс: AПлощадь здания: 21 166 м2Полезная площадь: 21 166 м2Этажность: 8Налоговая: 18Год постройки: 2024Безопасность: Охрана, Контрольно-пропускной пункт, Сигнализация, Видеонаблюдение, СКУД (электронные пропуска)Парковка: 142м/м, Платная открытая, На прилегающей территории, Подземная

Читать полностью
    Позвонить Написать
    2 375 000 Р30 170 $ или 26 100
    Агент
    +7 (911) 147-09-38
    Начать чат с агентом
    Похожие предложения
    Офис в Москва ул. Шумкина, 14с3 (1000 м) - Фото 1
    Офис в Москва ул. Шумкина, 14с3 (1000 м) - Фото 2
    5-й этаж, всего 8 этажей

    Бизнес-центр Деловой Дуэт (стр.3) класса AПлощадь: 1 000 м2Арендная ставка: 28 500,. за м2 в год включая НДССтоимость площади в месяц:,. включая НДССистема налогообложения: НДСГотовность: готово к въездуЭтаж: 5Статус: свободенВысота потолков, h: 4.00мПарковка:...
    • 5/8 эт.
    2 375 000 Р
    Агент
    +7 (911) Показать номер
    Посмотреть контакты
    Офис в Москва ул. Шумкина, 14с3 (920 м) - Фото 1
    Офис в Москва ул. Шумкина, 14с3 (920 м) - Фото 2
    8-й этаж, всего 8 этажей

    Бизнес-центр Деловой Дуэт (стр.3) класса AПлощадь: 920 м2Арендная ставка:. за м2 в год включая НДССтоимость площади в месяц:,. включая НДССистема налогообложения: НДСГотовность: готово к въездуЭтаж: 8Статус: свободенВысота потолков, h: 4.00мПарковка:...
    • 8/8 эт.
    2 338 333 Р
    Агент
    +7 (911) Показать номер
    Посмотреть контакты
    Офис в Москва ул. Шумкина, 14с3 (920 м) - Фото 1
    Офис в Москва ул. Шумкина, 14с3 (920 м) - Фото 2
    7-й этаж, всего 8 этажей

    Бизнес-центр Деловой Дуэт (стр.3) класса AПлощадь: 920 м2Арендная ставка:. за м2 в год включая НДССтоимость площади в месяц:,. включая НДССистема налогообложения: НДСГотовность: готово к въездуЭтаж: 7Статус: свободенВысота потолков, h: 4.00мПарковка:...
    • 7/8 эт.
    2 338 333 Р
    Агент
    +7 (911) Показать номер
    Посмотреть контакты
    Офис в Москва 3-я Рыбинская ул., 18С2 (693 м) - Фото 1
    Офис в Москва 3-я Рыбинская ул., 18С2 (693 м) - Фото 2
    2-й этаж, всего 6 этажей

    Предлагаем в долгосрочную прямую аренду офисное помещение класса B+ общей площадью 693 квадр. метров в недавно отреконструированном бизнес-центре Буревестник .Москва, ВАО, 3-я Рыбинская улица, 18 с2Характеристики местоположения:- Автомобиль: близость...
    • 2/6 эт.
    2 356 380 Р
    Агент
    +7 (916) Показать номер
    Посмотреть контакты
    Офис в Москва Подкопаевский пер., 4 (328 м) - Фото 1
    Офис в Москва Подкопаевский пер., 4 (328 м) - Фото 2
    2-й этаж, всего 4 этажа

    Офис площадью 328 м расположен на втором этаже в корпусе В строения 4 в бизнес-центре Ивановская Горка . В помещении с отделкой проведены современные системы приточно-вытяжной вентиляции и кондиционирования. Вход осуществляется через общее лобби в здании...
    • 2/4 эт.
    2 320 000 Р
    Агент
    +7 (915) Показать номер
    Посмотреть контакты

    Не нашли подходящего объявления?

    Оставьте заявку, и наши риэлторы подберут офис в районе Москвы

    (0)