1 038 856 Р 12 790 $ или 11 140

Информация о помещении и здании

10
Этаж
20
Этажность
Развернуть
Агент
+7 (495) 410-88-57
Начать чат с агентом

Офис (182 м)

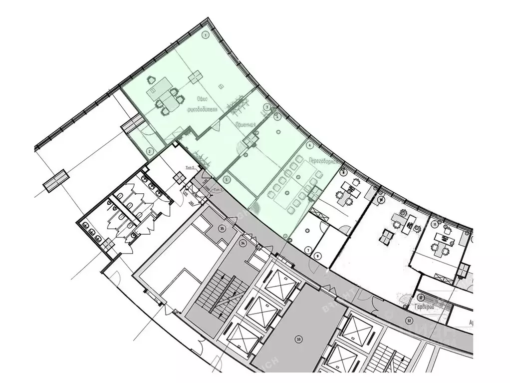
Лот №1067576 Напишите нам в Ватсап, чтобы получить ПОДРОБНУЮ ПРЕЗЕНТАЦИЮ С ПЛАНИРОВКОЙ И ФОТОГРАФИЯМИ Предлагается к сдаче в аренду офисный блок общей площадью 182 кв. м, расположенный в бизнес-центре класса А+ «Лотос . Помещение находится на десятом этаже в автономной части башни «С и обладает панорамным видом на город.Офисный блок включает основное помещение в стиле OpenSpace, а также ряд обособленных пространств: кабинет руководителя с приемной и санузлом, несколько кабинетов площадью от 10 до 20 кв. м, большую переговорную комнату, гардеробную и помещение архива. В каждом кабинете предусмотрены панорамные окна. Помещение оснащено собственными санузлами и кофе-поинтом. Ядро этажа выполнено из противопожарного шпона. Возможно деление на звукоизолированные блоки с отдельным входом, климат-контролем, освещением и автономным учетом электроэнергии.Бизнес-центр общей площадью 152 000 кв. м обладает развитой инфраструктурой, включая четыре уровня подземной и наземную парковку. На территории расположена торговая галерея с зоной отдыха, магазинами, кафе и столовой. Локация отличается удобной транспортной доступностью: расстояние до станции метро «Нахимовский проспект составляет не более пяти минут пешком. Стоимость аренды:уб/м2/год (уб в месяц) В цену включено: эксплуатационные расходы, НДС 22 . В цену не включено: коммунальные расходы, уборка.Чтобы получить ПОДРОБНУЮ ПРЕЗЕНТАЦИЮ С ПЛАНИРОВКОЙ И ФОТОГРАФИЯМИ, напишите нам в Ватсап. Высылаем в течение 15 минут по запросу Конт. лицо: Егор Викторович, доб. 221, ЛОТ №1067576

Читать полностью
    Позвонить Написать
    1 038 856 Р12 790 $ или 11 140
    Агент
    +7 (495) 410-88-57
    Начать чат с агентом
    Похожие предложения
    Офис в Москва Одесская ул., 2кА (182 м) - Фото 1
    Офис в Москва Одесская ул., 2кА (182 м) - Фото 2
    10-й этаж, всего 21 этаж

    Офисное помещение 182 кв. м в бизнес-центре Лотос .Округ: Юго-Западный (ЮЗАО). Район: Зюзино. Ближайшие станции метро: Нахимовский проспект, Каховская. Характеристики:- Класс: A; - Код налоговой: 27; - Размер типового этажа: 1400; - Арендопригодная площадь:...
    • 10/21 эт.
    1 038 856 Р
    Агент
    +7 (915) Показать номер
    Посмотреть контакты
    Офис в Москва Одесская ул., 2кС (182 м) - Фото 1
    Офис в Москва Одесская ул., 2кС (182 м) - Фото 2
    10-й этаж, всего 21 этаж

    Бизнес-центр Лотос (Корпус С) класса AПлощадь: 182 м2Арендная ставка: 68 500,. за м2 в год включая НДССтоимость площади в месяц:,. включая НДССистема налогообложения: НДСГотовность: готово к въездуЭтаж: 10Планировка: открытаяНаличие с/у: , ЕстьСтатус:...
    • 10/21 эт.
    1 038 916 Р
    Агент
    +7 (911) Показать номер
    Посмотреть контакты
    Офис в Москва Одесская ул., 2кВ (182 м) - Фото 1
    Офис в Москва Одесская ул., 2кВ (182 м) - Фото 2
    10-й этаж, всего 19 этажей

    Предлагается в аренду офисное помещение общей площадью 182 кв.м, расположенное на 10 этаже. Офис с ремонтом, open space ,без мебели, панорамное остекление. В цену включена эксплуатация .
    • 10/19 эт.
    1 038 000 Р
    Агент
    +7 (985) Показать номер
    Посмотреть контакты
    Офис в Москва Одесская ул., 2кА (286 м) - Фото 1
    Офис в Москва Одесская ул., 2кА (286 м) - Фото 2
    5-й этаж, всего 21 этаж

    Офисное помещение 285.5 кв. м в бизнес-центре Лотос .Округ: Юго-Западный (ЮЗАО). Район: Зюзино. Ближайшие станции метро: Нахимовский проспект, Каховская. Характеристики:- Класс: A; - Код налоговой: 27; - Размер типового этажа: 1400; - Арендопригодная...
    • 5/21 эт.
    999 250 Р
    Агент
    +7 (915) Показать номер
    Посмотреть контакты
    Офис (491 м) - Фото 1
    Офис (491 м) - Фото 2
    6-й этаж, всего 9 этажей

    Предлагается в долгосрочную прямую аренду офисное помещение класса B площадью 491 кв. метров в бизнес-центре.Москва, ЮЗАО, Азовская улица, 6 к3Удобное расположение здания для всех видов транспорта:- Автомобиль: близость транспортных магистралей, таких...
    • 6/9 эт.
    923 100 Р
    Агент
    +7 (925) Показать номер
    Посмотреть контакты

    Не нашли подходящего объявления?

    Оставьте заявку, и наши риэлторы подберут офис в районе Москвы

    (0)