4 890 980 Р 60 280 $ или 52 350

Информация о помещении и здании

4
Этаж
12
Этажность
Развернуть
Агент
+7 (919) 108-81-47
Начать чат с агентом

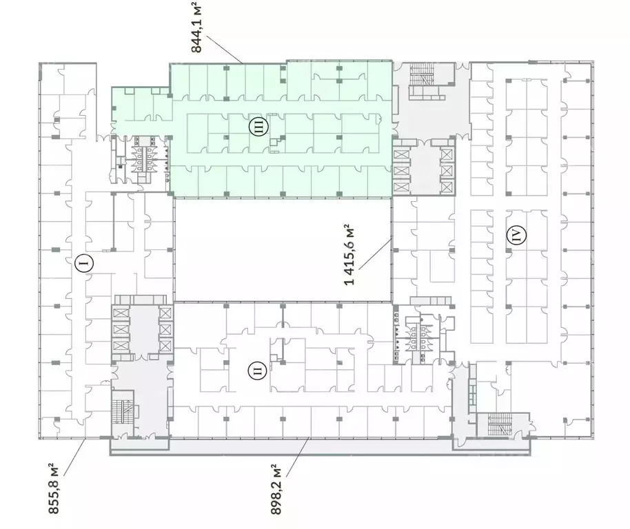
Офис в Москва ул. Земляной Вал, 9 (844 м)

Предлагаем в аренду офисный блок 844 кв.м. на 4 этаже по адресу ул Земляной Вал, д. 9. В здании установлена современная система центрального кондиционирования, а также эффективная приточно-вытяжная вентиляция для комфортной работы. До метро Курская несколько минут пешком. Есть подземная парковка. Договор с собственником помещения. Без комиссии. Возможен торг и предоставление арендных каникул. По всем вопросам звоните с 9:30 до 21:00. Оперативно организуем просмотр, при необходимости, бесплатно подготовим план рассадки ваших сотрудников. 990

Читать полностью
    Позвонить Написать
    4 890 980 Р60 280 $ или 52 350
    Агент
    +7 (919) 108-81-47
    Начать чат с агентом
    Похожие предложения в Москве
    Офис в Москва ул. Земляной Вал, 9 (844 м) - Фото 1
    Офис в Москва ул. Земляной Вал, 9 (844 м) - Фото 2
    4-й этаж, всего 13 этажей

    Офисное помещение 844.1 кв. м в бизнес-центре Ситидел .Округ: Центральный (ЦАО). Район: Басманный. Ближайшие станции метро: Курская, Чкаловская. Характеристики:- Класс: A; - Арендопригодная площадь: 54310; - Код налоговой: 09; - Размер типового этажа:...
    • 4/13 эт.
    4 891 560 Р
    Агент
    +7 (915) Показать номер
    Посмотреть контакты
    Офис в Москва ул. Земляной Вал, 9 (844 м) - Фото 1
    Офис в Москва ул. Земляной Вал, 9 (844 м) - Фото 2
    4-й этаж, всего 13 этажей

    Предложение в аренду 62611.Парковка: подземная 22800р/мес.Предлагаем в аренду офис в бизнес-центре класса А вБасманном районе. До м.Курская 6-7 минут пешком.. Офисные блоки расположены на 4-м этаже, кабинетная планировка, стандартная офисная отделка,...
    • 4/13 эт.
    4 891 560 Р
    Агент
    +7 (989) Показать номер
    Посмотреть контакты
    Офис в Москва ул. Земляной Вал, 9 (844 м) - Фото 1
    Офис в Москва ул. Земляной Вал, 9 (844 м) - Фото 2
    4-й этаж, всего 14 этажей

    ВАЖНО: БЕЗ КОММИССИ ДЛЯ АРЕНДАТОРОВ, ПРЯМАЯ АРЕНДА ОТ СОБСТВЕННИКАБизнес-центр A класса Ситидел расположен по адресу Москва, ЦАО, район Басманный, ул. Земляной Вал, дом 9, в пешей доступности от метро Курская (5 мин).Характеристики здания: 14 этажей,...
    • 4/14 эт.
    4 890 980 Р
    Агент
    +7 (916) Показать номер
    Посмотреть контакты
    Офис (844.1 м) - Фото 1
    Офис (844.1 м) - Фото 2
    4-й этаж, всего 13 этажей

    Офисное помещение 844.1 кв. м в бизнес-центре «Ситидел .Округ: Центральный (ЦАО). Район: Басманный. Ближайшие станции метро: Курская, Чкаловская. Характеристики:- Класс: A; - Арендопригодная площадь: 54310; - Код налоговой: 09; - Размер типового этажа:...
    • 4/13 эт.
    4 891 559 Р
    Агент
    +7 (925) Показать номер
    Посмотреть контакты
    Офис в Москва ул. Земляной Вал, 9 (844 м) - Фото 1
    Офис в Москва ул. Земляной Вал, 9 (844 м) - Фото 2
    4-й этаж, всего 12 этажей

    Офис площадью 844 м в Басманном районе. Объект с кабинетной планировкой расположен на 4 этаже в бизнес-центре Ситидел . В помещении выполнена отделка в офисном стиле, спланирована кухня. Установлены системы приточно-вытяжной вентиляции и центрального...
    • 4/12 эт.
    4 810 000 Р
    Агент
    +7 (923) Показать номер
    Посмотреть контакты

    Не нашли подходящего объявления?

    Оставьте заявку, и наши риэлторы подберут офис в районе Москвы

    (0)