784 380 Р 9 670 $ или 8 400

Информация о помещении и здании

2
Этаж
8
Этажность
Развернуть
Агент
+7 (932) 720-03-65
Начать чат с агентом

Офис в Москва ул. Сущевский Вал, 2 (187 м)

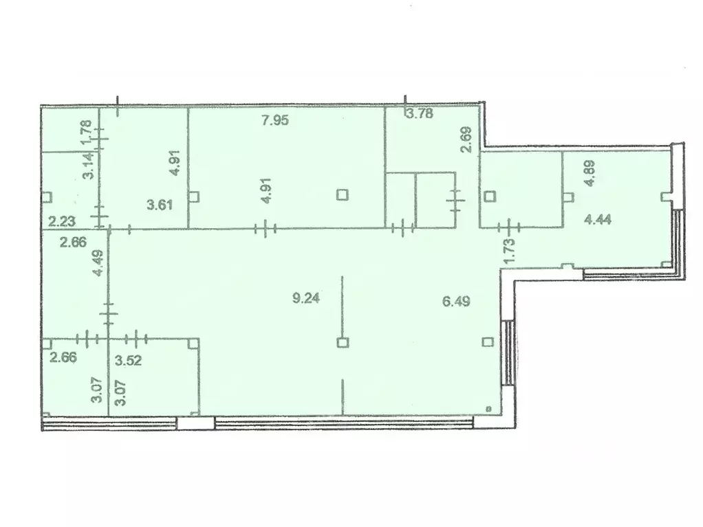
Сдается в аренду просторный офис 186.6 кв.м недалеко от метро.Договор аренды заключаете с собственником помещения. Без надбавки к итоговой стоимости аренды.В арендную ставку включено: - НДС,- коммунальные услуги, не включая электроэнергию,- эксплуат.расходы.В арендную ставку не входит: электроэнергия, уборка офиса, уборка общих мест, интернет.• планировка в офисе: кабинетная;• кол-во кабинетов: 3;• сан. узел в офисе: есть;• условия договора: 11 месяцев, предоплата 1 месяц, обеспечительный 2 месяц;• налогообложение: НДС;• вход в здание: для арендаторов по документу, для клиентов по документу;• интернет провайдеры: СДМ-телеком;• парковка: на территории БЦ;• здание работает: 7.00...21.00, кроме выходных;Покажем офис, ответив на все ваши вопросы.Получите подробную информацию об офисе. Отправим ее на почту или по Whatsapp.Для организации просмотра и для получения консультации по условиям аренды звоните.Для вас наши услуги бесплатны, их оплачивает БЦ.Описание бизнес-центра:В районе развита инфраструктура: рядом расположены кафе, рестораны, гостиницы, банки, аптеки, магазины и тренажёрные залы. На территории БЦ Сущевский вал есть небольшая собственная парковка, однако есть и городской паркинг прямо напротив здания. В стоимость аренды включены коммунальные и эксплуатационные услуги, остальные платежи вносятся отдельно.

Читать полностью
    Позвонить Написать
    784 380 Р9 670 $ или 8 400
    Агент
    +7 (932) 720-03-65
    Начать чат с агентом
    Похожие предложения
    Офис в Москва ул. Сущевский Вал, 2 (183 м) - Фото 1
    Офис в Москва ул. Сущевский Вал, 2 (183 м) - Фото 2
    3-й этаж, всего 8 этажей

    Сдается от собственника офис 183.2 кв.м недалеко от метро.Договор аренды заключаете с собственником помещения. Без надбавки к итоговой стоимости аренды.В арендную ставку включено: - НДС,- коммунальные услуги, не включая электроэнергию,- эксплуат.расходы.В...
    • 3/8 эт.
    787 760 Р
    Агент
    +7 (932) Показать номер
    Посмотреть контакты
    Офис в Москва ул. Генерала Тюленева, 4АС3 (289 м) - Фото 1
    Офис в Москва ул. Генерала Тюленева, 4АС3 (289 м) - Фото 2
    3-й этаж, всего 3 этажа

    Офисное помещение 289 кв. м в бизнес-центре Теплый Стан .Округ: Юго-Западный (ЮЗАО). Район: Тёплый Стан. Ближайшие станции метро: Тёплый стан, Генерала Тюленева. Характеристики:- Класс: B+; - Код налоговой: 28; - Арендопригодная площадь: 5100; - Высота...
    • 3/3 эт.
    784 635 Р
    Агент
    +7 (915) Показать номер
    Посмотреть контакты
    Офис в Москва Минская ул., 2Гк1 (158 м) - Фото 1
    Офис в Москва Минская ул., 2Гк1 (158 м) - Фото 2
    4-й этаж, всего 6 этажей

    ВАЖНО: БЕЗ КОММИССИ ДЛЯ АРЕНДАТОРОВ, ПРЯМАЯ АРЕНДА ОТ СОБСТВЕННИКАБизнес-центр B+ класса Кутузов Холл расположен по адресу Москва, ЗАО, район Раменки, Минская ул., дом 2Гк1, в пешей доступности от метро Славянский бульвар (29 мин), метро Ломоносовский...
    • 4/6 эт.
    790 000 Р
    Агент
    +7 (916) Показать номер
    Посмотреть контакты
    Офис (358 м) - Фото 1
    Офис (358 м) - Фото 2
    всего 2 этажа

    Сдается в аренду 2-этажное здание особняка В класса, который находится по адресу: Ленинградский проспект, д. 24, стр. 3.ЛОКАЦИЯ:- Пешая доступность от м. Белорусская, Динамо.- Вблизи пролегают Ленинградский проспект и Третье транспортное кольцо.ПОМЕЩЕНИЕ:-...
    • 2 этажа
    787 600 Р
    Агент
    +7 (901) Показать номер
    Посмотреть контакты
    Офис (184 м) - Фото 1
    Офис (184 м) - Фото 2
    14-й этаж, всего 15 этажей

    Сдается в аренду 184 кв.м. Подписание договора аренды напрямую с владельцем помещения. Работаем без комиссии, процентов и надбавок. В арендную ставку включено: - коммунальные услуги, включая электроэнергию, - эксплуат.расходы. В арендную ставку не входит:...
    • 14/15 эт.
    780 000 Р
    Агент
    +7 (926) Показать номер
    Посмотреть контакты

    Не нашли подходящего объявления?

    Оставьте заявку, и наши риэлторы подберут офис в районе Москвы

    (0)