37 258 758 Р 473 100 $ или 409 300

Информация о помещении и здании

3
Этаж
7
Этажность
Развернуть
Агент
+7 (915) 439-37-34
Начать чат с агентом

Офис в Москва ул. Арбат, 10 (3217 м)

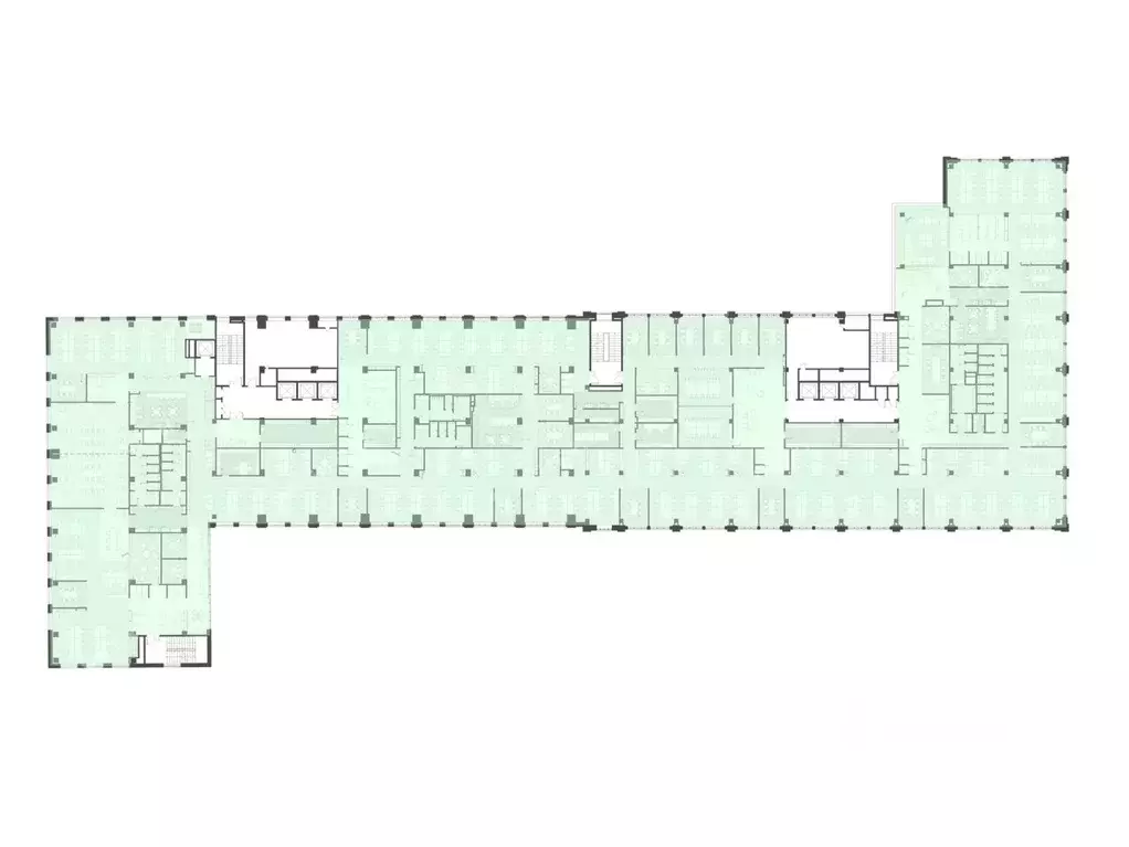
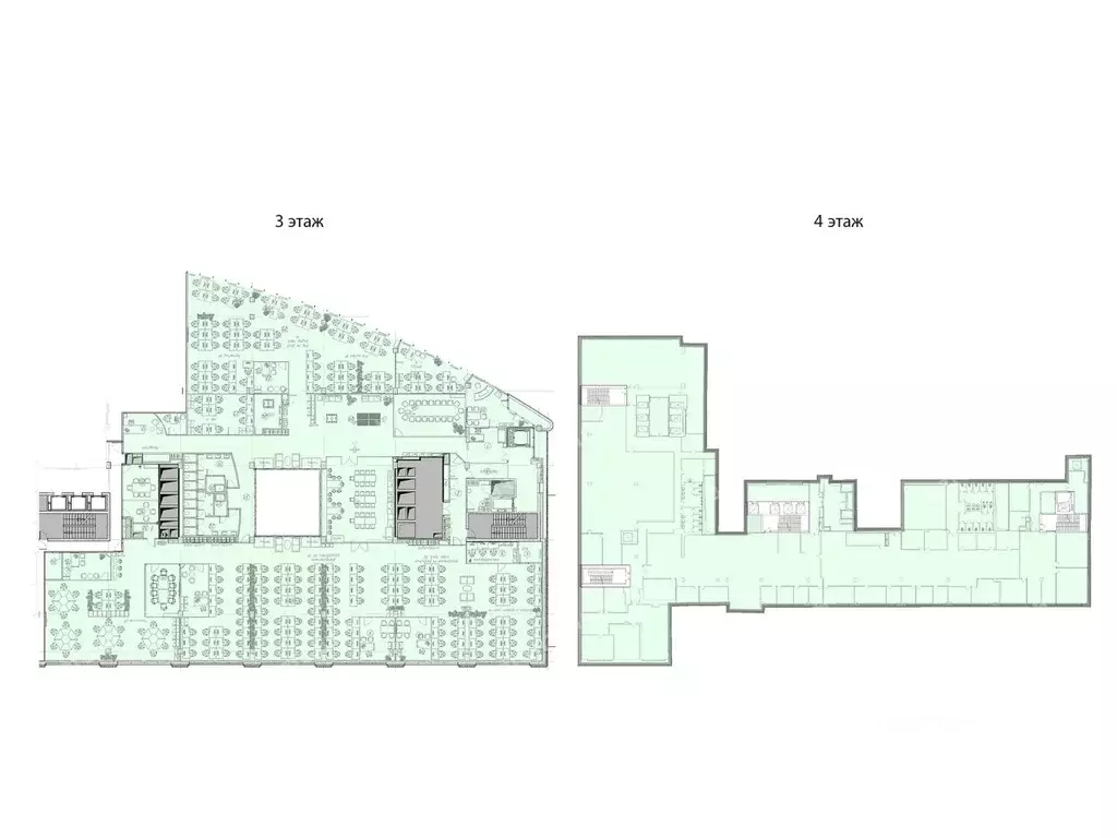
Сдаются помещения с сервисами для арендаторов (коворкинги) от 305 кв.м в бизнес-центре Midland Plaza (Мидланд Плаза) (класс B+)Этажи в наличии: 3,6Отделка - с отделкойНаличие мебели - с мебельюТип планировки - смешаннаяВход - общий с улицыМокрые точки - даСан. узлы - в блокеНаличие кухни - даНазначение: ОфисПолная ставка аренды от за кв. м/год. НДС включен, эксплуатация включенаКоммунальные расходы - ВключеныБизнес-центр Midland Plaza (Мидланд Плаза) находится по адресу: Москва, улица Арбат, 10.Район: Арбат Год постройки здания: 2003Налоговая: 4Наличие паркинга: подземный, стоимость месяц (1 м/м)Вентиляция: приточно-вытяжнаяПожарная система: СпринклернаяБлижайшие станции метро: Арбатская (6 минут пешком)Инфраструктура: Бар, Кафе, Ресторан, Столовая, Банк, Банкомат, Ремонт одежды, Салон красоты, Срочное фото, Турагентство, Химчистка, Супермаркет, Цветочный салон, Ремонт обуви, Магазин, Студия йоги, Фитнес-клубКол-во лифтов: 7Юридический адрес: предоставляетсяПозвоните и мы ответим на все Ваши вопросы, направим презентацию с планировками и оперативно организуем показ. Наши услуги для Вас бесплатны

Читать полностью
    Позвонить Написать
    37 258 758 Р473 100 $ или 409 300
    Агент
    +7 (915) 439-37-34
    Начать чат с агентом
    Похожие предложения
    Офис в Москва пер. Романов, 4 (4107 м) - Фото 1
    Офис в Москва пер. Романов, 4 (4107 м) - Фото 2
    3-й этаж, всего 7 этажей

    Офисное помещение 4 107 кв. м в бизнес-центре Романов Двор . Объект скоро освободится. Успейте забронировать на выгодных условиях. Готовность ко въезду уточняется по запросу. Округ: Центральный (ЦАО). Район: Арбат. Ближайшие станции метро: Охотный Ряд,...
    • 3/7 эт.
    37 579 050 Р
    Агент
    +7 (915) Показать номер
    Посмотреть контакты
    Офис в Москва Ленинградский просп., 15С10 (3563 м) - Фото 1
    Офис в Москва Ленинградский просп., 15С10 (3563 м) - Фото 2
    2-й этаж, всего 5 этажей

    Уважаемый Арендатор, предлагаем Вам арендовать в БЦ Большевик офис 3563.0 м на 2 этаже на выгодных условиях.С мебелью. Приточно-вытяжная вентиляция. Центральное кондиционирование. Интернет, телефония. Охрана. Лифты: 6 грузо-пассажирских лифта KONE....
    • 2/5 эт.
    36 953 655 Р
    Агент
    +7 (985) Показать номер
    Посмотреть контакты
    Офис в Москва ул. Академика Королева, 12 (13172 м) - Фото 1
    Офис в Москва ул. Академика Королева, 12 (13172 м) - Фото 2
    3-й этаж, всего 5 этажей

    ЛотПредложение от Собственника Предлагаются в аренду помещения в Телецентре ОСТАНКИНО по адресу: г. Москва, ул. Академика Королёва, д. 12. В наличии офисные блоки и технологические помещения. Ставка аренды за офисные помещения включает эксплуатационные...
    • 3/5 эт.
    37 869 500 Р
    Агент
    +7 (986) Показать номер
    Посмотреть контакты
    Офис (3563 м) - Фото 1
    Офис (3563 м) - Фото 2
    2-й этаж, всего 15 этажей

    АРЕНДА ОТ 11 МЕС. ТОЛЬКО ПОД ОФИС БЦ класса A «ARCUS III . Сдаётся под офис 2-й этаж целиком площадью 3563 кв.м. Высококачественная офисная отделка. Центральное кондиционирование, вентиляция. Есть охрана.НДС и эксплуатационные расходы включены. Лот №...
    • 2/15 эт.
    36 953 952 Р
    Агент
    +7 (985) Показать номер
    Посмотреть контакты
    Офис в Москва Ленинградский просп., 15С1 (3563 м) - Фото 1
    Офис в Москва Ленинградский просп., 15С1 (3563 м) - Фото 2
    2-й этаж, всего 4 этажа

    Офисное помещение 3 563 кв. м в бизнес-центре Большевик Фаза 2 . Объект скоро освободится. Успейте забронировать на выгодных условиях. Готовность ко въезду уточняется по запросу. Округ: Северный (САО). Район: Беговой. Ближайшие станции метро: Белорусская,...
    • 2/4 эт.
    36 955 436 Р
    Агент
    +7 (915) Показать номер
    Посмотреть контакты

    Не нашли подходящего объявления?

    Оставьте заявку, и наши риэлторы подберут офис в районе Москвы

    (0)