Россия, Москва, Трёхпрудный переулок, 4с1
1 287 000 Р 15 720 $ или 13 590

Информация о помещении и здании

3
Этаж
6
Этажность
Развернуть
Агент
+7 (926) 670-09-27
Начать чат с агентом

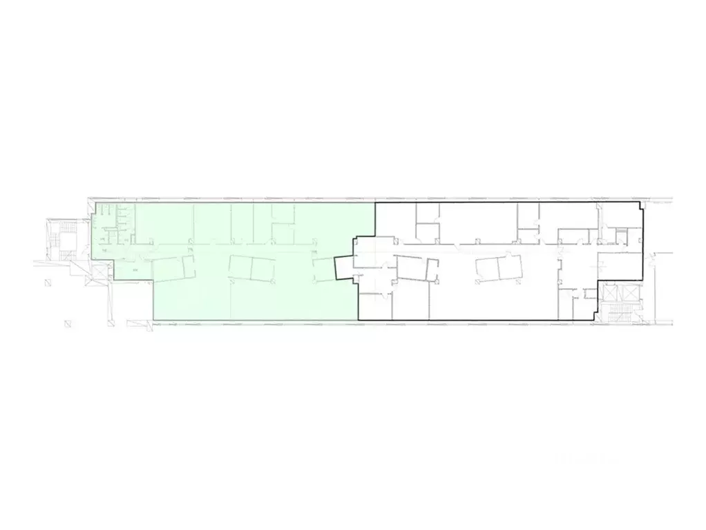
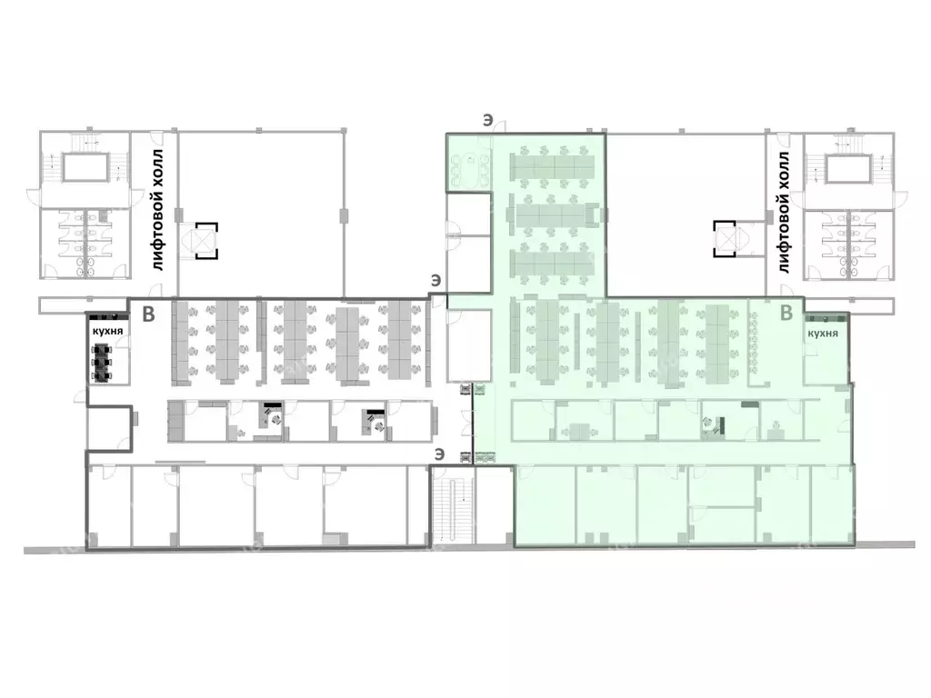
Офис (308.8 м)

Аренда офисного блока 308.8 кв.м недалеко от метро. Состояние отделки — готово к въезду. Договор аренды заключаете с собственником помещения. Без надбавки к итоговой стоимости аренды. В арендную ставку включено: - НДС. В арендную ставку не входит: коммунальные услуги, электроэнергия, эксплуат.расходы, уборка офиса, уборка общих мест, вывоз мусора, интернет, охрана здания. • планировка в офисе: openspace; • кондиционер: в каждом офисе; • вентиляция: нет; • сан. узел в офисе: нет; • условия договора: 11 мес. предоплата за первый и последний месяц; • налогообложение: НДС; • вход в здание: для арендаторов по документу, для клиентов по документу; • интернет провайдеры: Любой провайдер; • парковка: на территории БЦ; • здание работает: 9.00...22.00; Покажем офис, ответив на все ваши вопросы. Получите подробную информацию об офисе. Отправим ее на почту или по Whatsapp. Для организации просмотра и для получения консультации по условиям аренды звоните. Для вас наши услуги бесплатны, их оплачивает БЦ.

Читать полностью
    Позвонить Написать
    1 287 000 Р15 720 $ или 13 590
    Агент
    +7 (926) 670-09-27
    Начать чат с агентом
    Похожие предложения
    Офис (308.8 м) - Фото 1
    Офис (308.8 м) - Фото 2
    3-й этаж, всего 6 этажей

    Сдается в аренду 308.8 кв.м недалеко от метро. Состояние отделки — готово к въезду. Договор аренды заключаете с собственником помещения. Без надбавки к итоговой стоимости аренды. В арендную ставку включено: - НДС. В арендную ставку не входит: коммунальные...
    • 3/6 эт.
    1 287 000 Р
    Агент
    +7 (926) Показать номер
    Посмотреть контакты
    Офис в Москва Петровский бул., 5С1 (335 м) - Фото 1
    Офис в Москва Петровский бул., 5С1 (335 м) - Фото 2
    3-й этаж, всего 4 этажа

    Предлагаем в долгосрочную аренду помещение под офис класса B площадью 335 кв.м в бизнес-центре.Москва, ЦАО, Петровский бульвар, 5 с1Удобное расположение в пределах Садового кольца:- Возможность аренды парковочных мест.- Ближайшее метро: от метро Пушкинская...
    • 3/4 эт.
    1 256 300 Р
    Агент
    +7 (985) Показать номер
    Посмотреть контакты
    Офис в Москва Большая Новодмитровская ул., 36С4 (394 м) - Фото 1
    Офис в Москва Большая Новодмитровская ул., 36С4 (394 м) - Фото 2
    1-й этаж, всего 5 этажей

    Предлагаем в долгосрочную аренду офисный блок класса B общей площадью 335 кв. метров в бизнес-центре Флакон .Москва, СВАО, Большая Новодмитровская улица, 36 Удобная локация здания:- Автомобиль: близость транспортных магистралей, таких как Бутырская улица,...
    • 1/5 эт.
    1 230 500 Р
    Агент
    +7 (916) Показать номер
    Посмотреть контакты
    Офис в Москва Полковая ул., 3 (600 м) - Фото 1
    Офис в Москва Полковая ул., 3 (600 м) - Фото 2
    3-й этаж, всего 6 этажей

    Офисное помещение 600 кв. м в бизнес-центре Шереметьевский . Объект скоро освободится. Успейте забронировать на выгодных условиях. Готовность ко въезду уточняется по запросу. Округ: Северо-Восточный (СВАО). Район: Марьина Роща. Ближайшие станции метро:...
    • 3/6 эт.
    1 300 200 Р
    Агент
    +7 (915) Показать номер
    Посмотреть контакты
    Офис в Москва Складочная ул., 3С1 (556 м) - Фото 1
    Офис в Москва Складочная ул., 3С1 (556 м) - Фото 2
    4-й этаж, всего 4 этажа

    Офисное помещение 555.9 кв. м в бизнес-центре Технопарк Горизонт .Округ: Северо-Восточный (СВАО). Район: Бутырский. Ближайшие станции метро: Савёловская, Дмитровская. Характеристики:- Класс: B+; - Арендопригодная площадь: 22505; - Код налоговой: 15;...
    • 4/4 эт.
    1 343 611 Р
    Агент
    +7 (915) Показать номер
    Посмотреть контакты

    Не нашли подходящего объявления?

    Оставьте заявку, и наши риэлторы подберут офис в районе Москвы

    (0)